Wednesday, October 18th, 2023 AT 5:54 AM
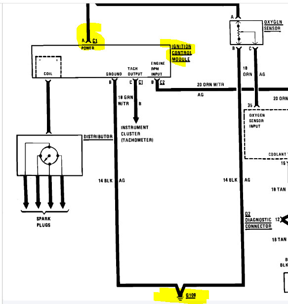
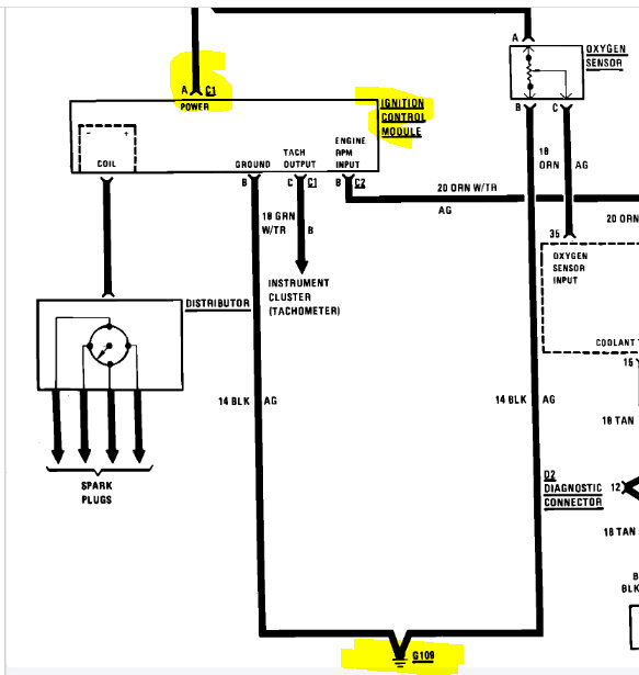
Only getting spark in the cranking position, no spark when letting off the key in the run position. Replaced the crank sensor. Also replaced the coil unit off a known good one.





