Thursday, October 31st, 2019 AT 5:49 AM
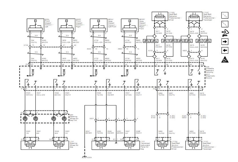
I have read the code and it is B0074-03 which is passenger seat belt tension seat circuit- low voltage. Is this the seat belt mechanism in the door? This is an extended cab so the seat belt is located in the extended cab door. I checked the wiring in the rubber boot for the door but nothing obvious was found. All help will be appreciated. Thanks!




