Friday, June 29th, 2018 AT 12:04 PM
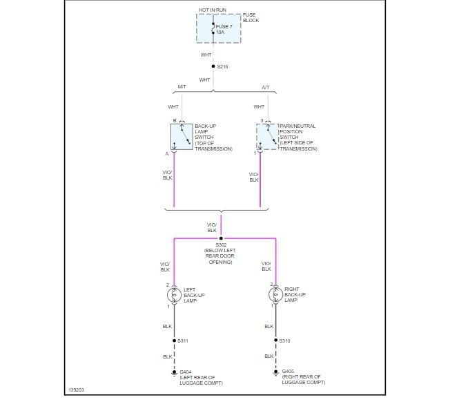
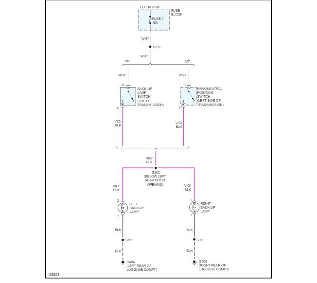
Bought three reverse switches, and and still cannot get electric to it. I can cross over and get electric, I cannot get electric to switch. Switch will not put any current back there.


