Monday, May 7th, 2018 AT 6:28 PM
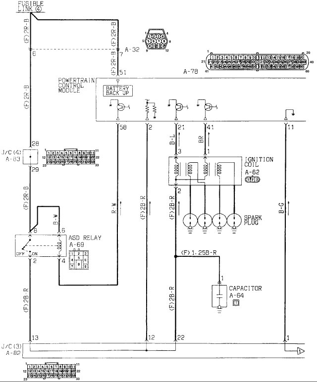
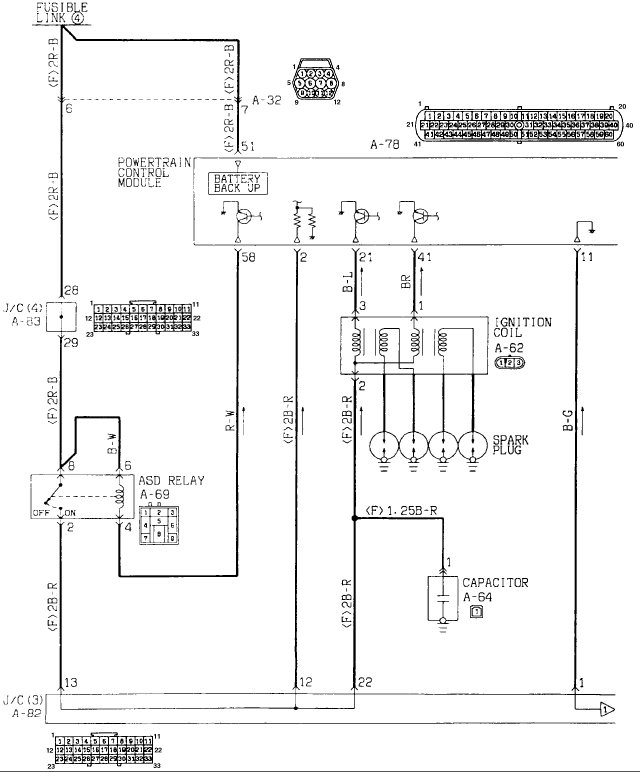
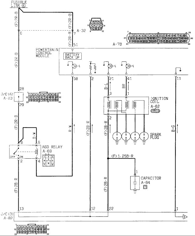
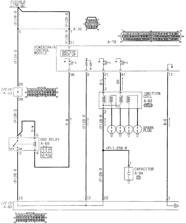
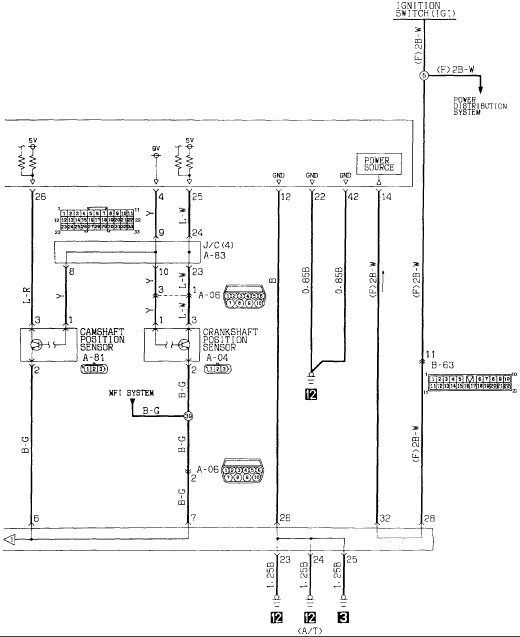
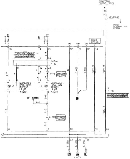
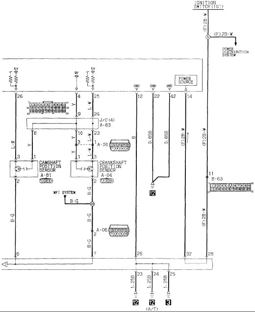
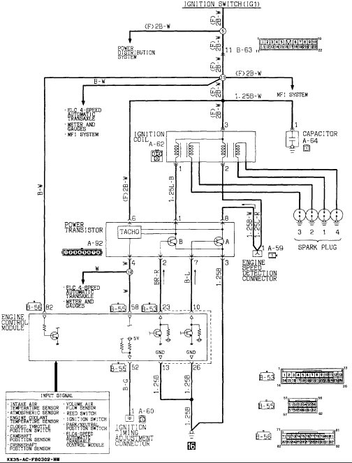
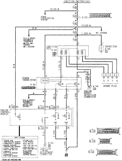
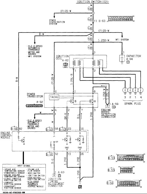
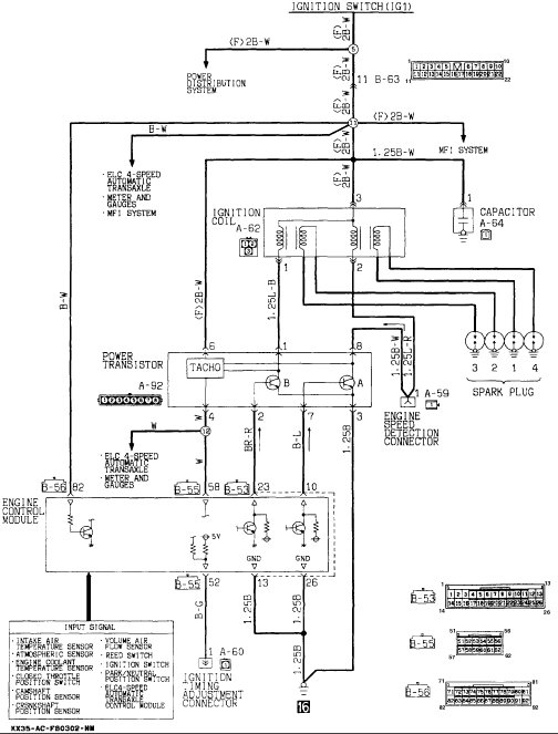
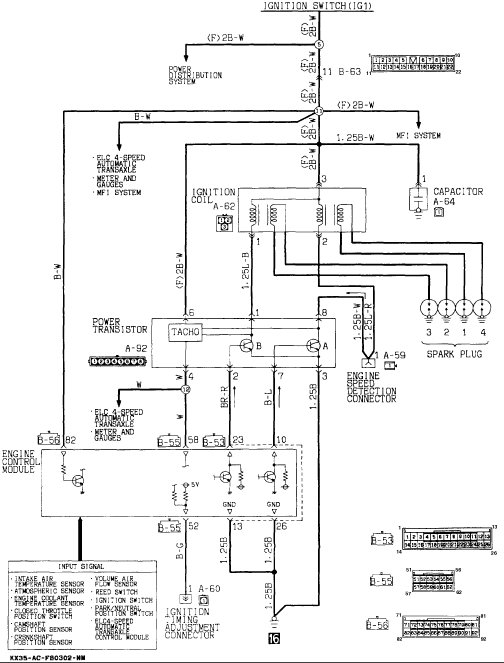
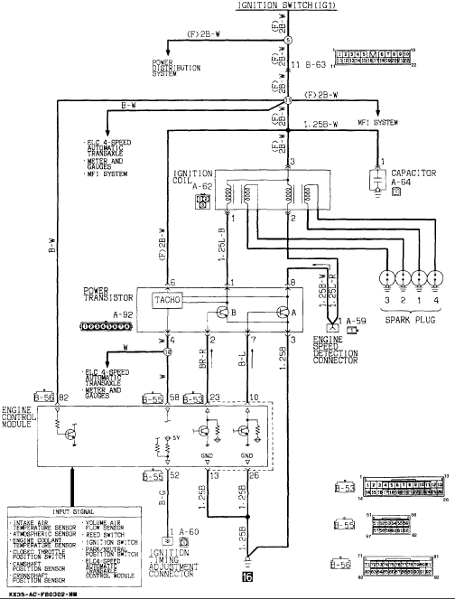
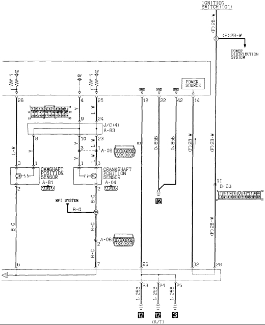
I could really use a wire diagram for my car listed above it is the GS model with a five speed transmission. For the cam and crank sensors. And potentially the ignition coil. Please help me ASAP.
















