HOME
ASK A QUESTION
REPAIR GUIDES
BECOME A MEMBER
LOG IN
Login with Facebook
OR
Remember me
NOT A MEMBER?
FORGOT PASSWORD?
CONTACT US
PRIVACY POLICY
TERMS AND CONDITIONS
☰
Home
Ford
Freestar
Interior
Seat
Not Moving
Power seat not working
LEE PEGUES
MEMBER
2004 FORD FREESTAR
2,240,100 MILES
My driver side power seat stop working.
Tuesday, July 24th, 2018 AT 4:08 PM
1 Reply
ASEMASTER6371
MECHANIC
52,796 POSTS
Good evening.
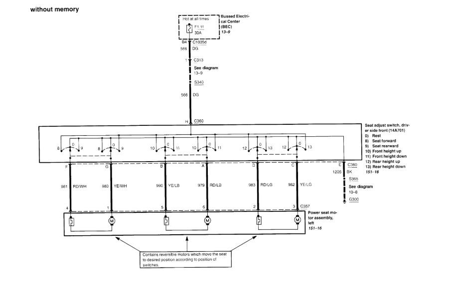
I attached a diagram of the seat circuit. Check the fuse listed for power on both sides.
If that is good, you will need a test light or voltmeter to do some checks at the switch that controls the movement of the seat.
Roy
Image (Click to make bigger)
Was this
answer
helpful?
Yes
No
-1
Tuesday, July 24th, 2018 AT 4:48 PM
Please
login
or
register
to post a reply.
Related Seat Not Moving Content
Can The Second Row Seat (bench) Be Changed For...
Hi Everyone ! I'm Dimas And I'm The New Owner Of A 2005 Freestar With 70,000 Miles And In Great Shape. My Question Is: It Has A Small Bench...
Asked by
dimasp28
·
3 ANSWERS
2005
FORD FREESTAR
Cd Code Entry
I Recently Disconnected The Battery On My Ford Freestar 2004. After Connecting It Back After Several Hours. I Have A 6 Cd Player In Dash...
Asked by
cstrath
·
4 ANSWERS
2004
FORD FREESTAR
Water Sound Under Dash
Water Sound Under Dash
Asked by
Anonymous
·
2 ANSWERS
2004
FORD FREESTAR
Freestar Message Center Dim Problem
2005 Ford Freestar Message Center Is Dim. Dimmer Is On Max. Can't See It In Bright Sun. Readable At Night. Dimmer Switch Adjusts The...
Asked by
thewolfes
·
2 ANSWERS
2005
FORD FREESTAR
Cruise Control Will Not Set
Six Cylinder Front Wheel Drive Automatic 113,000 Miles. When Trying To Set Cruise Control, It Will Not Engage And The Light Will Not...
Asked by
tln2006freestar
·
1 ANSWER
2006
FORD FREESTAR
VIEW MORE
Ask a Car Question. It's Free!
Seat Switch Replacement
Seat Switch Replacement
How to Use a Test Light