Odometer does not light up or quit working?

Tiny
JLGARRE1
  • MEMBER
  • 1998 PONTIAC SUNFIRE
  • 4 CYL
  • 2WD
  • MANUAL
  • 186,000 MILES
The odometer is digital, I think, and it doesn't light up or quit working. Can it be fixed and will it show the miles driven since it stopped working?
Friday, September 24th, 2010 AT 9:19 PM

1 Reply

Tiny
SQM
  • MECHANIC
  • 6,383 POSTS
Hello,

It sounds like you might have a wiring issue for the odometer display not to show the information.
You will have to check the wiring that is for the odometer. It can also have a burnt circuit for the display.

Since it is just the display that is not operational, the vehicle will keep track of the mileage as you drive it, and will show the correct mileage when you get the display to work again.

https://youtu.be/_HEC44xENxw

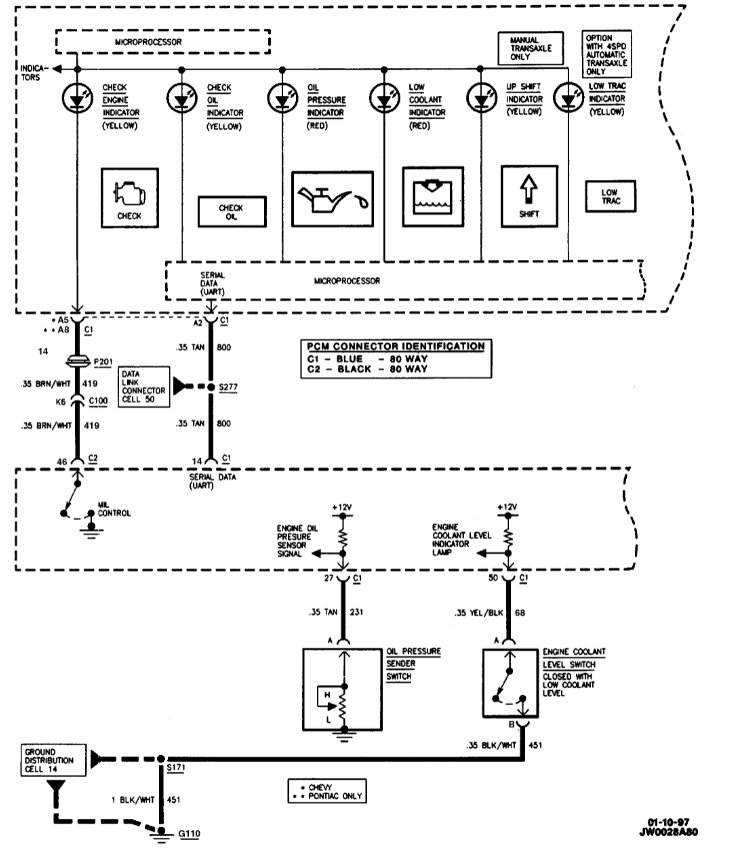
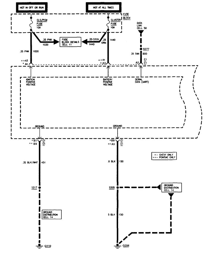
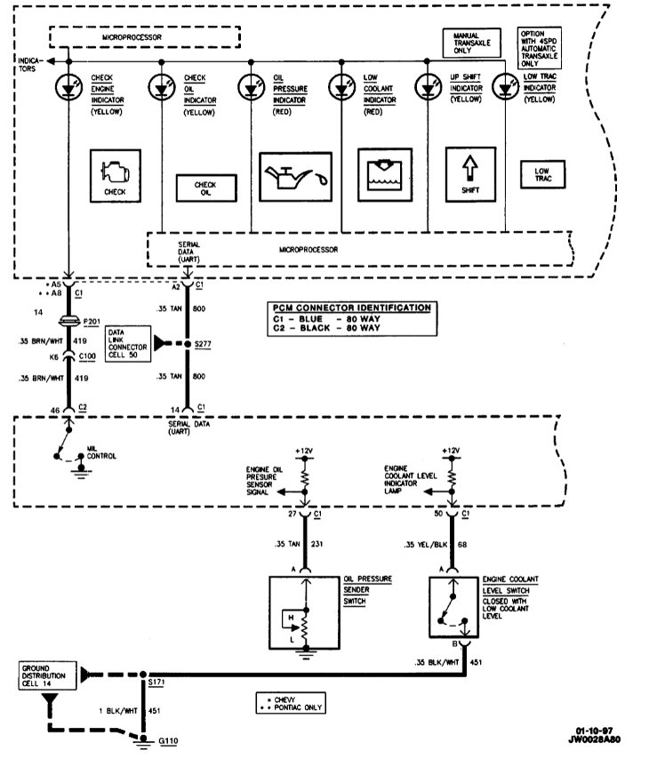
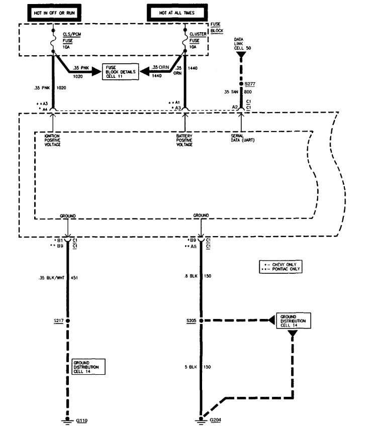
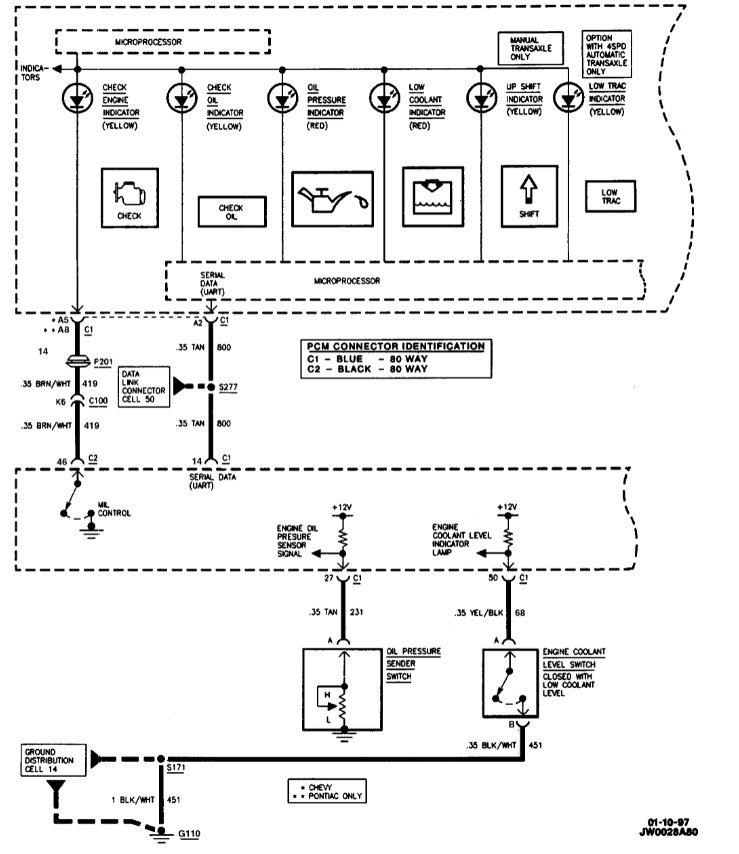
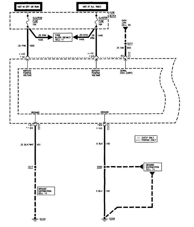
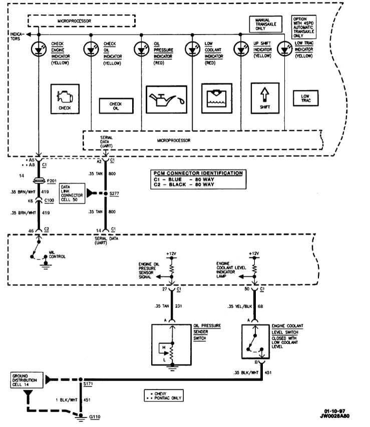
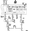
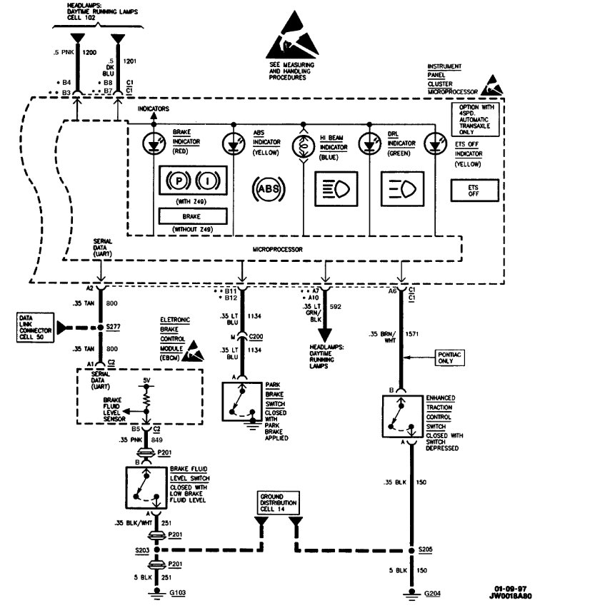
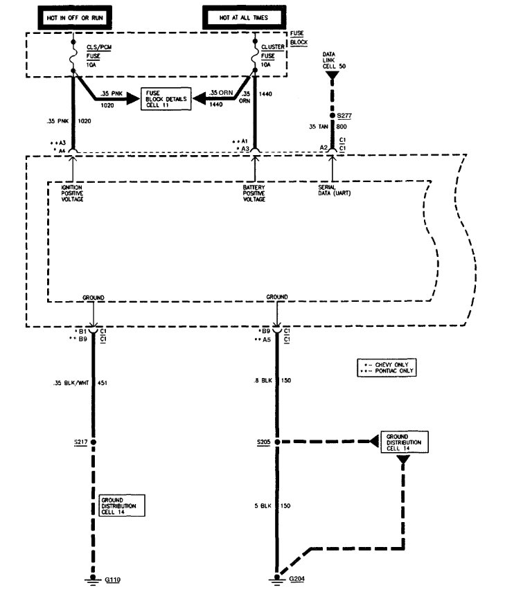
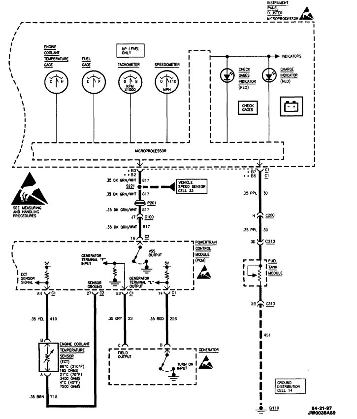
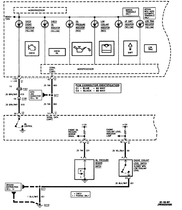
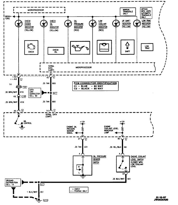
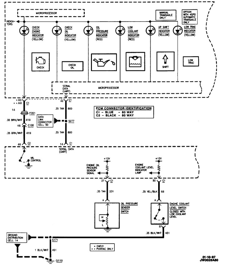
I have attached complete wiring diagrams for the gauge cluster.

Please let me know of any questions.

Thank you.
Was this
answer
helpful?
Yes
No
Wednesday, August 18th, 2021 AT 9:40 PM

Please login or register to post a reply.