Code P0976?

2011 CHEVROLET SILVERADO
170,000 MILES • 4.8L • V8 • 4WD • AUTOMATIC
Avatar
ANDREW VINCENT WILLIAM THOMAS
  • MEMBER
  • 2 POSTS
Can you please send me the wiring for the truck listed above, 2-3 shift solenoid valve control. I got the code P0976; what my truck is doing is not shifting into third. so, I can't go over 40 MPH because my RPMs get high from not shifting.
Apr 24, 2023 at 7:03 AM
Advertisement
Repair Safety Notice: This information is for general instructional purposes only. Vehicle repair can be dangerous. Verify all information, follow manufacturer service procedures, use proper tools and safety equipment, and consult a qualified repair shop when needed.
Avatar
AL514
  • AUTOMOTIVE REPAIR CONTRIBUTOR
  • 5,477 POSTS
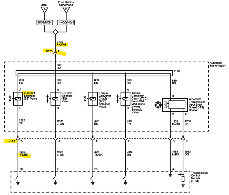
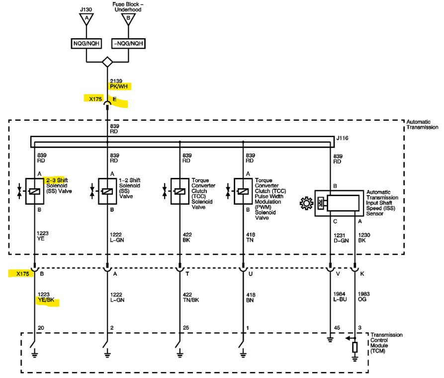
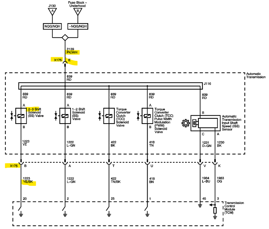
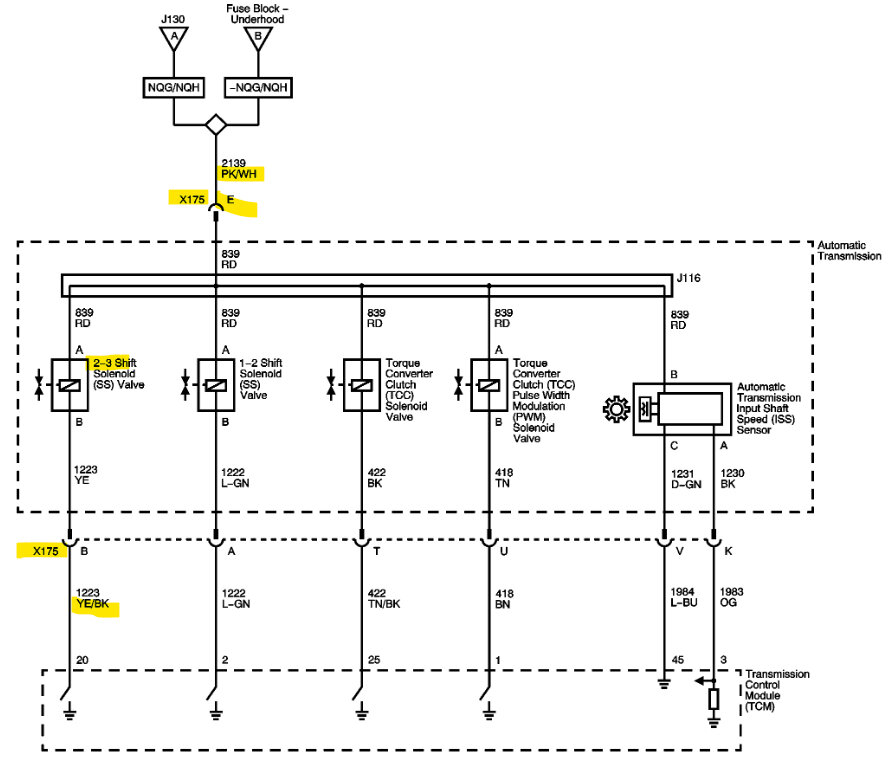
Hello, there's a couple transmissions listed for this vehicle, is the code you're getting P0976 actually say 2-3 shift solenoid? I'll post the diagrams for that setup. and the connector for testing, the code criteria states "Open circuit", so it might be the solenoid is open internally. But testing should be pretty easy. When testing this solenoid, with the Key On engine Off, you should be able to read battery voltage (12v) on the yellow/black wire coming back through the solenoid. The Battery feed is the Pink/White wire, but at just Key On, the circuit won't be pulled to ground yet, so there should be that 12volts coming through the solenoid on the control wire (yellow/black). Or you can unplug the connector and check the resistance for an open circuit inside the solenoid. But check for power is a faster way to verify the entire circuit, at least all the way to the control wire. You could even go so far as to verify it at the TCM if the resistance test is okay.
The 4th diagram shows all the transmissions listed for this vehicle. but the diagram I posted had the 2-3 shift solenoid.
The 5th diagram is the OEM for the 4L60-E/ 4L65-E/ 4L70-E transmissions. The others list only Solenoid 2, not 2-3 Shift Solenoid Valve, so I believe these are the correct diagrams of the code is a 2-3 shift solenoid code.
You don't have any other codes listed, correct? Nothing that would keep the vehicle in Limp/Low Power Mode.


https://www.2carpros.com/articles/how-to-use-a-voltmeter
Apr 24, 2023 at 2:35 PM
Avatar
ANDREW VINCENT WILLIAM THOMAS
  • MEMBER
  • 2 POSTS
Thank you for the reply. My truck isn't in limp mode. It will keep picking up speed. But it won't shift up to 3rd . It had p0700 code also.
Apr 24, 2023 at 8:06 PM
Advertisement
Avatar
AL514
  • AUTOMOTIVE REPAIR CONTRIBUTOR
  • 5,477 POSTS
Are the diagrams I posted the correct ones for the transmission in your truck? The P0700 is just a data command from the transmission control module to the ECM to turn on the Check engine light. Was your scan tool giving a code definition along with the P0976? I just want to be sure you have the correct diagrams to check that shift solenoid.
Apr 25, 2023 at 2:28 PM