No power to the front suspension compressor

Tiny
WRENCHLADY
  • MEMBER
  • 2006 LINCOLN NAVIGATOR
  • 5.4L
  • V8
  • 2WD
  • AUTOMATIC
  • 160,000 MILES
2006 Navigator Ultimate, I changed front airbag struts factory complete. New compressor, will not start. Where to check for reasons why? Does anyone know where the compressor relay on this SUV? Possible other help. Also, it seems that Expeditions and Lincolns were swapped out with many parts that really different from each other.
I have a dropped front and back is fine.
Thank you very much.
Thursday, December 6th, 2018 AT 7:49 PM

13 Replies

Tiny
ASEMASTER6371
  • MECHANIC
  • 52,796 POSTS
Good afternoon,

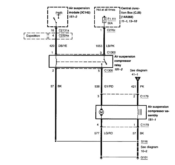
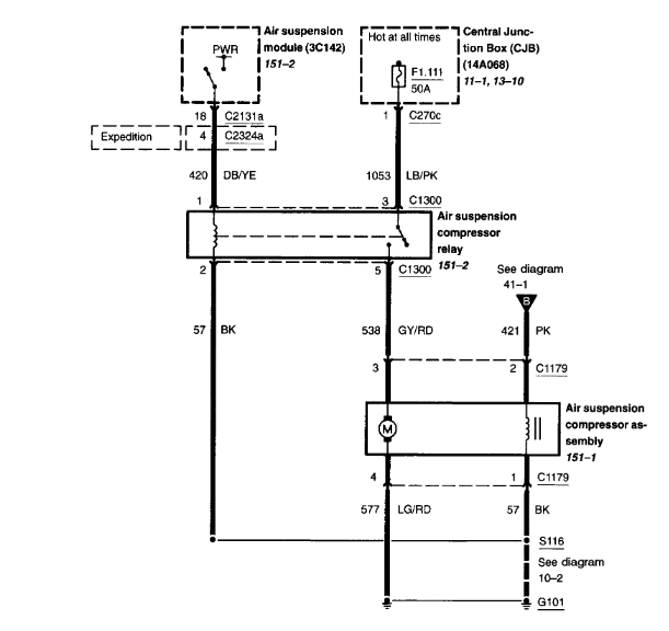
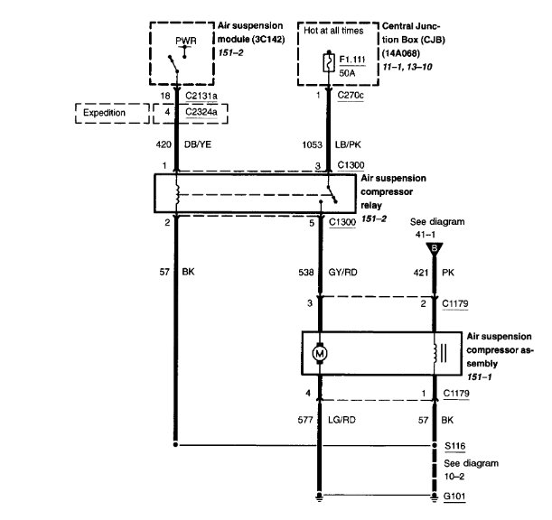
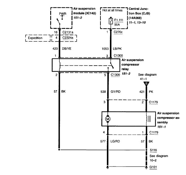
The relay is by the compressor. I attached a picture of the location.

There are some that are bolted on the frame rail, on the right front.

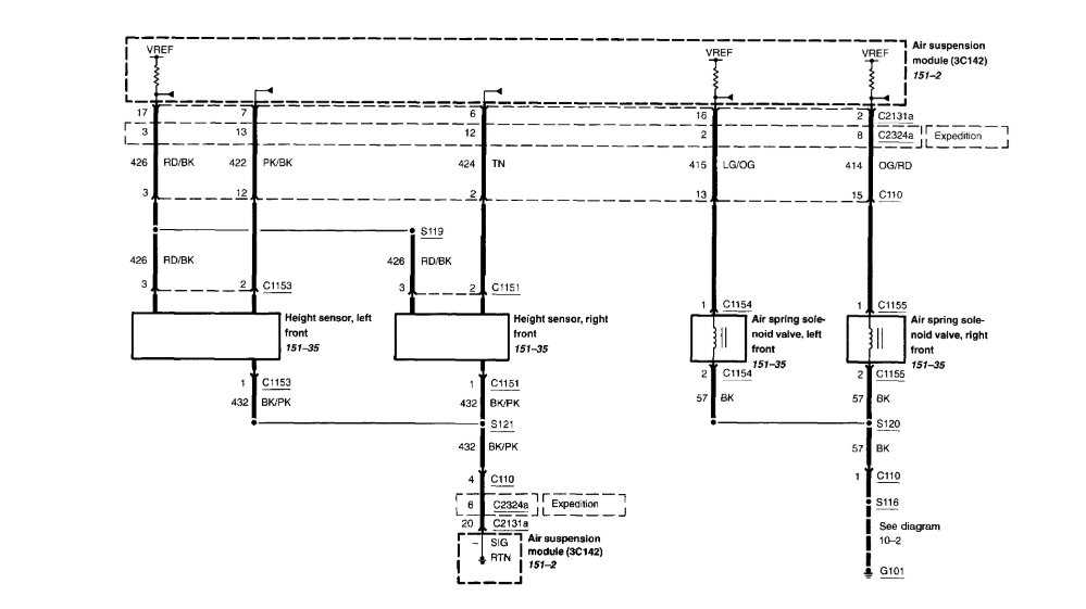
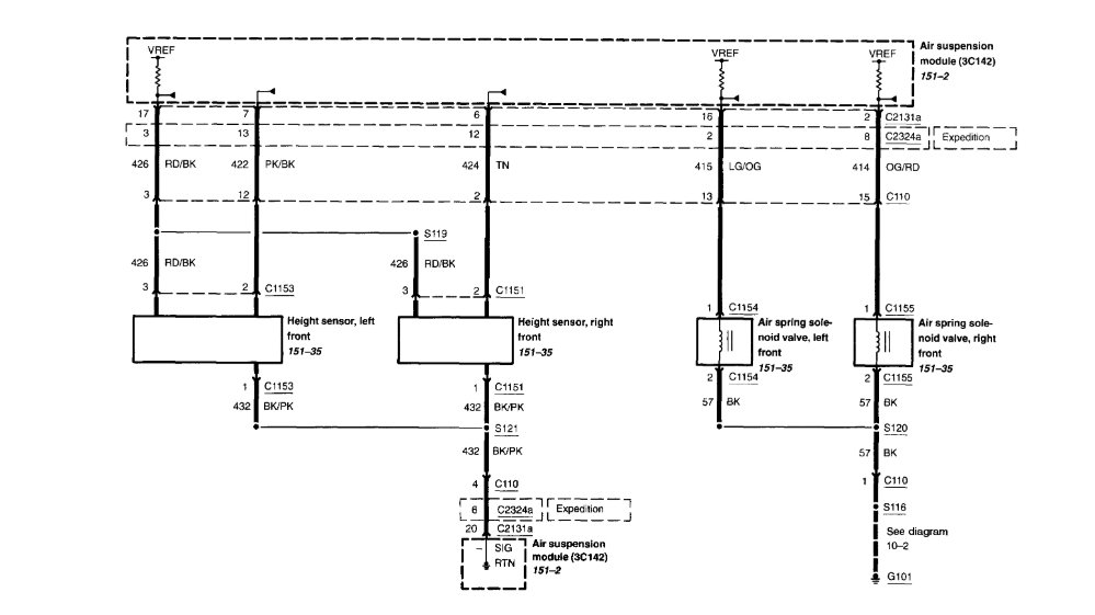
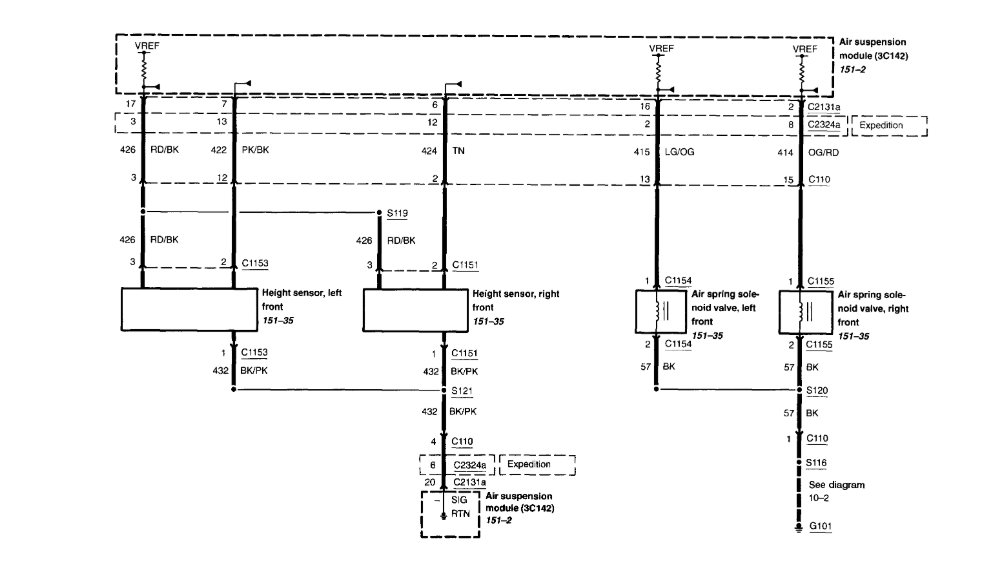
When you turn on the key, the compressor should come on for about ten seconds as a test for the system. If it does not then you need to check the fuses listed in the diagrams for power on both sides. It may be the suspension module itself.

Roy
Was this
answer
helpful?
Yes
No
+2
Friday, December 7th, 2018 AT 11:29 AM
Tiny
WRENCHLADY
  • MEMBER
  • 12 POSTS
Thank you for this information, This is a great place to get help. Can anyone offer donations for your help?
I would like to know where the suspension module and is there a way to test it, to see if it is ok? I also saw a guy who had a few issues like mine and was told my a mechanic that these SUV and expeditions are bad for leaking water through the windshield which I could see. I put sealant around my window, and even the air leak went away. Could there be anything on the left side kick panel? I wonder if the junction board had shorts if it rains in there.
Was this
answer
helpful?
Yes
No
+1
Friday, January 4th, 2019 AT 6:14 PM
Tiny
ASEMASTER6371
  • MECHANIC
  • 52,796 POSTS
You are welcome.

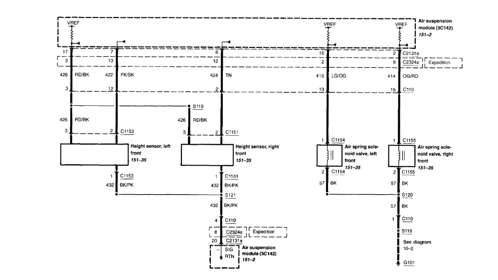
Note: The air suspension control module is mounted to the lower left side of the dash above the parking brake control.

In order to test it, you will need an advanced scan tool to monitor the system and see if it is sending signals to the relay and the compressor for pumping up the bags.

I would verify power to the module to be sure it has power.

Roy
Was this
answer
helpful?
Yes
No
Friday, January 4th, 2019 AT 6:24 PM
Tiny
WRENCHLADY
  • MEMBER
  • 12 POSTS
I Just sent another letter as I never noticed the factory box and mine look different, as I have an extra relay that is not factory and on the left side it appears that someone has cut or fixed a few wires and left them wide open. I will add the pictures. Factory box and if you look where the blank relay is empty, I have a relay fuse in mine. I have no clue if I don't have a stock SUV. Please help.
The wires on the left kick are a brown, green, pink and red.
Was this
answer
helpful?
Yes
No
Saturday, January 12th, 2019 AT 4:11 PM
Tiny
ASEMASTER6371
  • MECHANIC
  • 52,796 POSTS
Hard to say what the relay is for but whoever did that wire job did a butcher job.

Those wires should be solder and shrink wrapped.

Roy
Was this
answer
helpful?
Yes
No
+1
Saturday, January 12th, 2019 AT 5:16 PM
Tiny
WRENCHLADY
  • MEMBER
  • 12 POSTS
Thank you for the prompt reply.

You are correct, I think the ladies son might be the culprit to whom I bought it. I learned one thing for sure! Ask to drive it and tear it apart before you sink ten grand in one. Don't get me wrong in the west where it's hot no rain, it was great. Now, for the other purpose of this link is, there are some fuse boxes on eBay and some state for 2003 - 2006 and when I look at mine it shows I should not have the extra relay in mine as I do. I found out that all Lincoln is not 2003-2006. It is crazy Ford.
I also read today that the top left wire set the goes through the firewall has had issues as well. Some boxes have them with the sell and some not. What is your opinion on this? I would love my air shocks to rise again. I love the beautiful ride it gives.
One more great question, what is the difference between an ultimate and luxury style? I have the longest one they made it has Limited on the back right side. The pictured one is on eBay and states it belongs in my SUV.
Was this
answer
helpful?
Yes
No
Saturday, January 12th, 2019 AT 5:39 PM
Tiny
WRENCHLADY
  • MEMBER
  • 12 POSTS
Hey Roy, How do we donate to your site? I have seen others say the same thing nowhere to donate. You have helped me out a lot, at least with possibilities and photos. I have learned a lot about wire graphs. Lol, I am a teacher for Barbering, who'd think I would be working on my electrical. It sure keeps the brain engaged at 60.
Was this
answer
helpful?
Yes
No
Saturday, January 12th, 2019 AT 5:44 PM
Tiny
ASEMASTER6371
  • MECHANIC
  • 52,796 POSTS
The difference is most likely accessories.

I would call the dealer and get the correct part number from Ford. Then compare it to the one you have.

Roy
Was this
answer
helpful?
Yes
No
+1
Saturday, January 12th, 2019 AT 5:45 PM
Tiny
WRENCHLADY
  • MEMBER
  • 12 POSTS
Hello Roy, I am asking a much more challenging question now. I did a parasitic draw test and 1 10 amp fuse showed drag, then I waited a bit longer and all fuses are okay. I found my suspension module and want to know, if there is anyway possible to test it? I watched a man trace his to the blue dot plug that also runs the wire cluster to the lower back of the junction box (fuse box). He said he tested, but does not give a way to test the module.
I did figure out how to omit the rear switch for anyone who is concerned.
I put my Lincoln to sleep for about 1.5 hours (turn switch off) then I did the parasitic draw test. After this is completed unlatch all doors and hood back to normal. Turn the key one and this will tell you all items that are low or not working. I seen the suspension off switch show me it needed to be turned back on. I just stumbled upon this way to test. I hope it helps someone. Here is my module for the suspension under the drivers side towards the left. It is on the firewall. FYI
Is the vent cuts where the moisture can get in? I know they are expensive as well. Also l feel around for air drafts and find them. Then cover them up somehow to keep rain water or car wash water from getting inside.
Thank you very much.
Was this
answer
helpful?
Yes
No
Saturday, January 19th, 2019 AT 7:01 PM
Tiny
ASEMASTER6371
  • MECHANIC
  • 52,796 POSTS
How many amps was the draw?

Roy
Was this
answer
helpful?
Yes
No
Saturday, January 19th, 2019 AT 8:36 PM
Tiny
WRENCHLADY
  • MEMBER
  • 12 POSTS
There is no amp as the draw went away after a second recheck.
Was this
answer
helpful?
Yes
No
Sunday, January 20th, 2019 AT 10:30 AM
Tiny
WRENCHLADY
  • MEMBER
  • 12 POSTS
I want to know if there is a way to test the suspension module. It looks like I will need to make a ground to remove it as it is grounded on the firewall wall.
Was this
answer
helpful?
Yes
No
Sunday, January 20th, 2019 AT 10:34 AM
Tiny
ASEMASTER6371
  • MECHANIC
  • 52,796 POSTS
No, not without special equipment. Most shops cannot as well. We used to send them out to rebuilders and have them check them for us.

Roy
Was this
answer
helpful?
Yes
No
Sunday, January 20th, 2019 AT 10:39 AM

Please login or register to post a reply.