Sunday, September 22nd, 2019 AT 10:03 AM
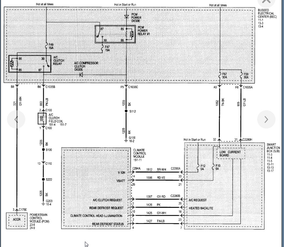
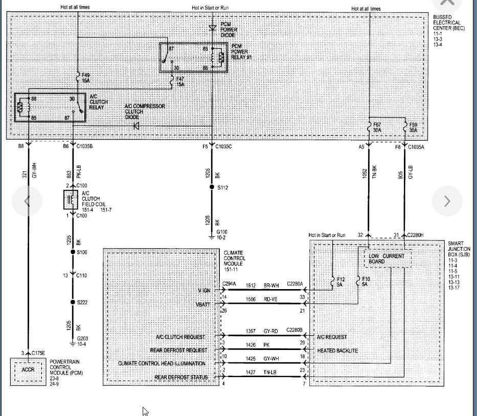
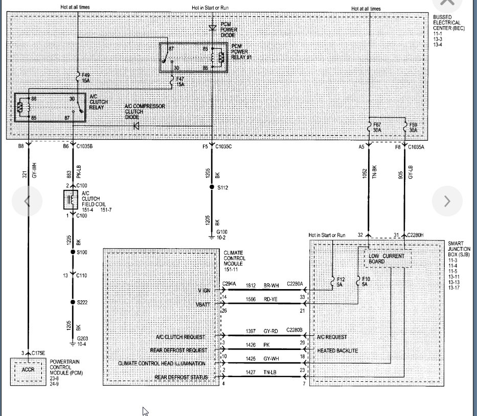
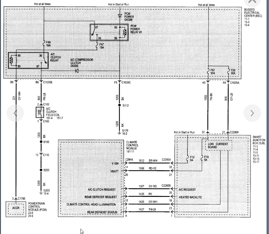
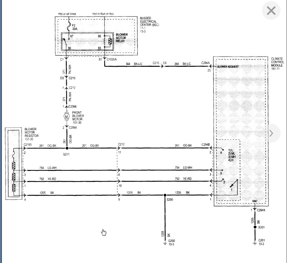
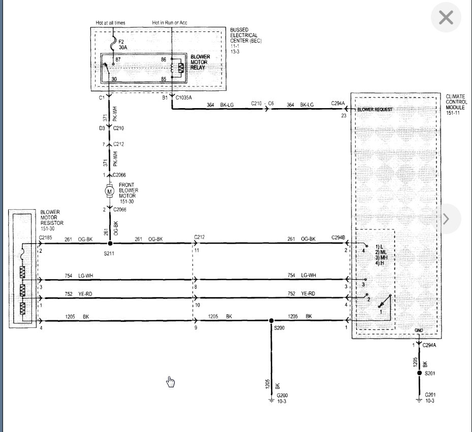
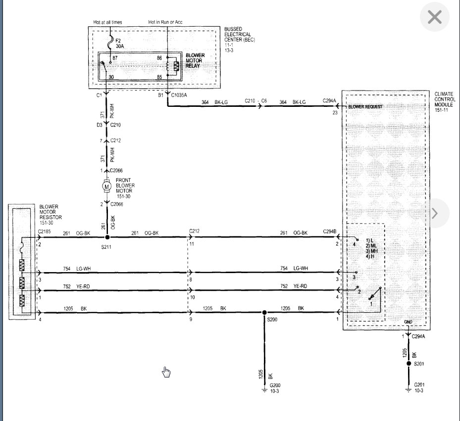
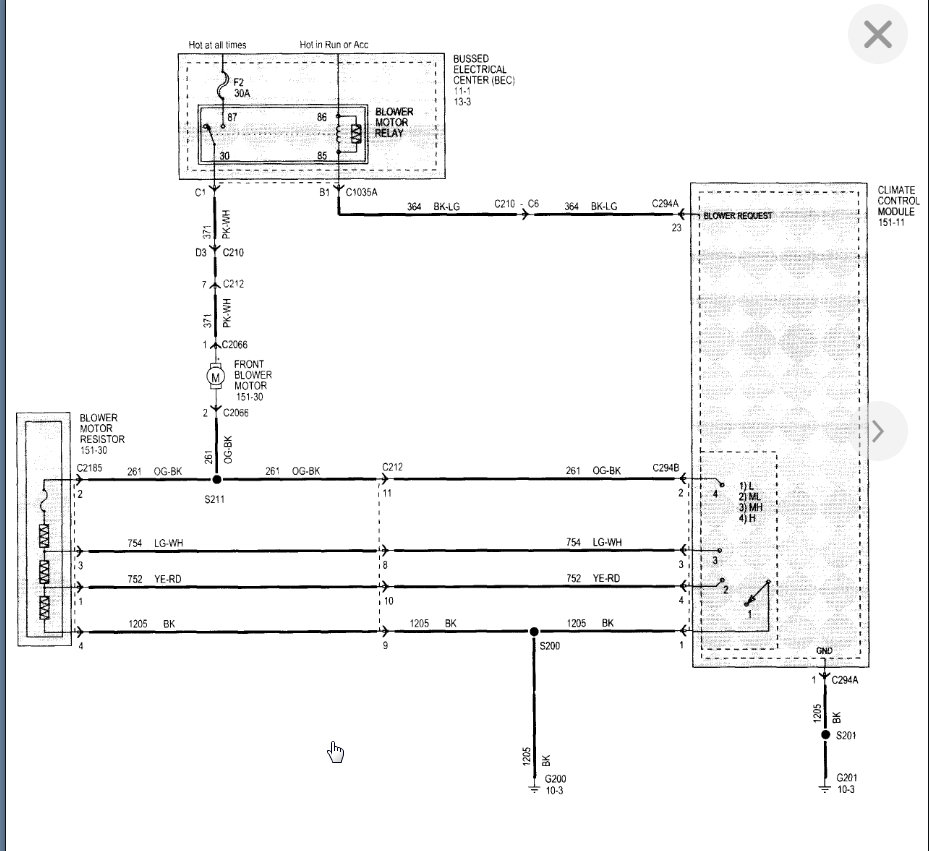
On my lower panel A/C switch, rear window switch, middle air direction switch, don’t light up. None of them work. No fan blower pulled plug off no power to fan control. Checked all fuses all good have no A/C. No fan for heat etc. I’m lost.




