Saturday, January 16th, 2021 AT 3:15 PM
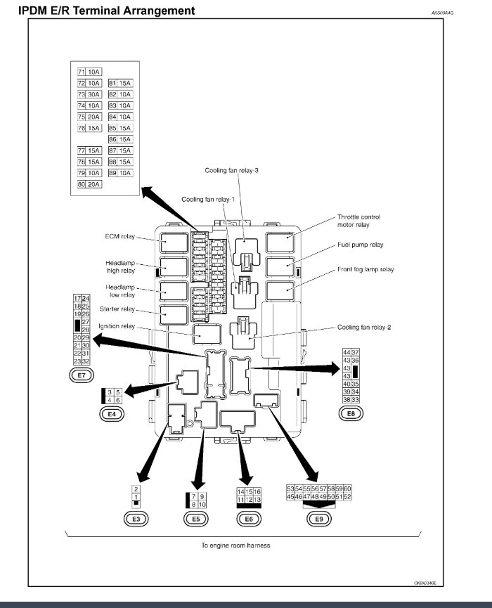
I just like to know the difference in this two models of Murano 2005 SL and 2005 SE. Do both use the same engine fuse box, or the is a difference in the Part numbers? This is very confusing, I have check and realize that I got no 12 volt coming to the ECU Harness F101, on M80 I got just one 12 volt coming. So I felt my problem could be with the fuse box in the engine compartment. What actually happen with this car, the battery terminals were reverse to the opposite direction, which got the ECU/TCM/ main fuse box/ and few other modules fried up, but I have replaced all, BCM is still okay. But no check engine light and P on the instrument Panel.










