Blower motor not working

Tiny
RADCLOSER
  • MEMBER
  • 1991 MERCEDES BENZ 300E
Six cylinder two wheel drive automatic 120,000 miles.

I have checked fuses in fuse box with a voltage tester. All appear good. Cannot get air conditioning, heater or blower motor to work.
Thursday, August 6th, 2009 AT 2:04 PM

9 Replies

Tiny
INJECTORS
  • MEMBER
  • 4 POSTS
You mentioned that you checked the fuses in the fuse box. But there is also a " fuse link safety fuse " located on top of the driver side front shock strut ( under the hood. ). Mine has failed twice. They cost perhaps a dollar or two. And it takes sixty seconds to change out. It is located on my car in a black plastic rectangular shaped box about the size of a large key. Just pop it open with a flat screw driver and ( after disconnecting the battery ) just unscrew it and clean it. Pay particular attention to where the washers go. It is a hassle to disconnect the battery which I do not do when changing this fuse link but It is possible it could short the fuse if it is mishandled. Hope this helps and good luck.
Was this
answer
helpful?
Yes
No
+5
Monday, August 24th, 2009 AT 8:25 PM
Tiny
LVLYBRNTTE
  • MEMBER
  • 1 POST
  • 1989 MERCEDES BENZ 300E
  • 6 CYL
  • 2WD
  • AUTOMATIC
  • 174,000 MILES
Six cylinder two wheel drive automatic 174,000 miles.

I have heard to do several things can you tell me is there a specific fuse for the heater blower? Mine does not blow anymore actually the whole thing does not work. If I turn the temperature gauge to cool temperature the cool air does come through chilled and only by delivery of the vent not through the blower.
Was this
answer
helpful?
Yes
No
Friday, December 8th, 2017 AT 5:02 PM (Merged)
Tiny
DAVE H
  • MECHANIC
  • 13,384 POSTS
Hello, thanks for the donation much appreciated.

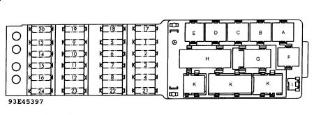
Check fuse's 7, 8 and 12. It could be the actual bushes inside the blower motor are worn away and the motor need repairing or replacing.


https://www.2carpros.com/forum/automotive_pictures/266999_merc_5.jpg

Was this
answer
helpful?
Yes
No
Friday, December 8th, 2017 AT 5:02 PM (Merged)
Tiny
RANJO7
  • MEMBER
  • 2 POSTS
  • 1986 MERCEDES BENZ 300E
  • 6 CYL
  • 2WD
  • AUTOMATIC
  • 200,000 MILES
Six cylinder two wheel drive automatic 200,000 miles.

Hi 2carpros,
The heater fan is not working. Once in a blue moon, it will come on. Which leaves me to think that it is just an electrical problem, maybe a short somewhere. I will look to here from you. Thanks!
Was this
answer
helpful?
Yes
No
+1
Friday, December 8th, 2017 AT 5:02 PM (Merged)
Tiny
RASMATAZ
  • MECHANIC
  • 75,992 POSTS
Check the blower motor connector if okay proceed to the blower motor relay and blower switch.
Was this
answer
helpful?
Yes
No
+1
Friday, December 8th, 2017 AT 5:02 PM (Merged)
Tiny
RANJO7
  • MEMBER
  • 2 POSTS
Where is the blower motor located on this vehicle? Please keep in mind, that I am a novice. Thanks
Was this
answer
helpful?
Yes
No
+1
Friday, December 8th, 2017 AT 5:02 PM (Merged)
Tiny
DWIGHT'S GARAGE
  • MEMBER
  • 9 POSTS
  • 1987 MERCEDES BENZ 300E
Six cylinder two wheel drive automatic.

I have found the case but I know there is an easier way to replace the blower motor. Can you help?
Can we go through the cowl in front by the wiper motor or do we need to go under/behind the dash?
Was this
answer
helpful?
Yes
No
Friday, December 8th, 2017 AT 5:02 PM (Merged)
Tiny
BUDDYCRAIGG
  • MECHANIC
  • 2,262 POSTS
I have changed two of them on Mercedes, but I do not recall what models they were.

I got to the motor on both of them from under the hood.
Was this
answer
helpful?
Yes
No
Friday, December 8th, 2017 AT 5:02 PM (Merged)
Tiny
INJECTORS
  • MEMBER
  • 4 POSTS
I have replaced the blower motor on a 1990 300e. It is not difficult. The Mercedes mechanic wanted to charge me $1,000.17 to replace the blower motor. After having done it once, ( I put the motor in backwards!) I redid it and it took seventeen minutes to expose the blower motor. I now no longer use this mechanic. You access the blower motor by taking the windshield wiper motor off completely. Remember where every bolt goes. Take the windshield wiper armature off intact. It helps to always place the parts on the same side of the car when you take them off and in the same orientation. There are silver clips that hold the blower motor housing on that need to be pushed off and they must go back on or the fan will always have a rattle/buzz. Ask me how I know that). Before buttoning it up, it is a good idea to turn the A/C on and test the fan. Make sure the squirrel cages are spinning in the correct direction. I tested mine before closing things up and attributed the lesser air-flow to the fact that I had not yet put the top of the blower fan housing on. I was wrong. The silver clips I spoke about earlier are located all along the front and sides as well as two hidden ones on the back that you really will not know about unless you have done this before. Also, put a towel in the bottom of the plastic deck just below the windshield wiper. You will lose a screw or two down that bottomless air ducting if you do not. (Ask me how I know that as well) also, I used only hand tools. Nothing electric or air powered. A real mechanic with those tools could most likely replace that motor in thirty minutes or even less. And careful with the windshield wiper blade armature. I think it would be fairly easy to crack a windshield. Hope this helps and good luck.
Was this
answer
helpful?
Yes
No
+1
Friday, December 8th, 2017 AT 5:02 PM (Merged)

Please login or register to post a reply.