Ly6 Swap- ECU/Manual Transmission

1993 CHEVROLET 1500
100,000 MILES • 6.0L • V8 • 2WD • MANUAL
Avatar
DUSTYROGERS665
  • MEMBER
  • 9 POSTS
I'm doing an LY6 swap out of 2008 Silverado 2500hd, and was wondering what computer I'll need to run a tr-6060 manual transmission.
Dec 4, 2021 at 11:22 PM
Repair Safety Notice: This information is for general instructional purposes only. Vehicle repair can be dangerous. Verify all information, follow manufacturer service procedures, use proper tools and safety equipment, and consult a qualified repair shop when needed.
Advertisement
Avatar
KASEKENNY
  • CAR REPAIR CONTRIBUTOR
  • 18,907 POSTS
This is a bit of a difficult one only because I don't think you are going to need anything to run the manual transmission in the 1993 truck because that truck doesn't look at anything except maybe a speed sensor for the speedometer.

You will need to make sure the 1993 truck is seeing the clutch position to allow the engine to start but that will not be part of the transmission so that should all stay the same.

The 2008 is going to be the same way. The actual operation of the transmission does not require the ECM but all the things that the ECM uses to run other systems is going to be needed.

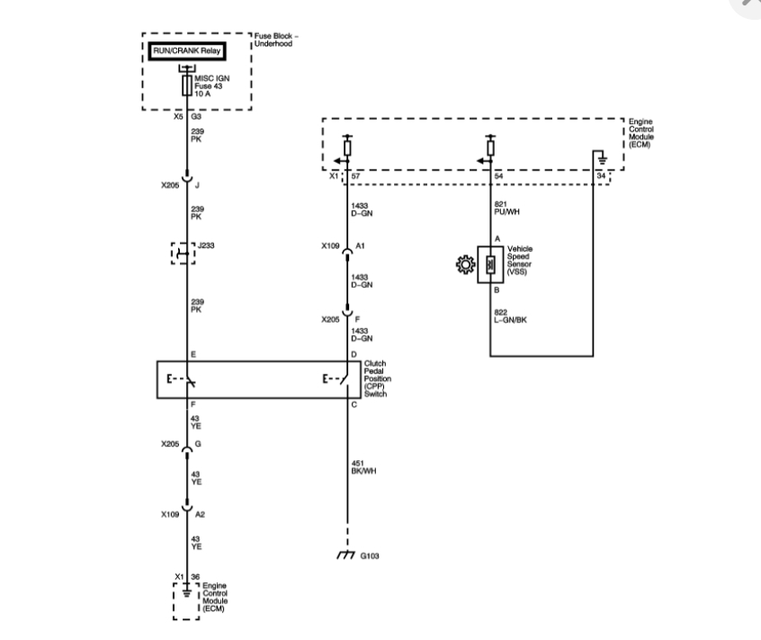
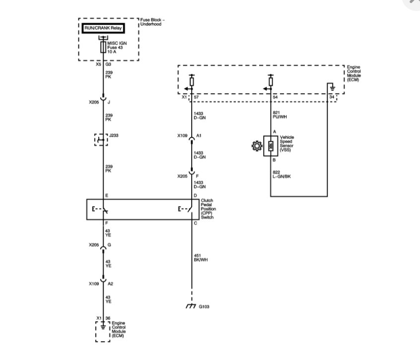
So, I am attaching the wiring diagram below of the 2008 manual transmission and as you will see there is not much to it.

Basically, you are going to have get the speed sensor on the 2008 to work on the 1993 but I don't think that is going to prevent you from getting the vehicle to run and drive.

Let me know if you are looking for other things and we can go from there. Thanks
Dec 5, 2021 at 7:17 AM
Advertisement
Avatar
DUSTYROGERS665
  • MEMBER
  • 9 POSTS
My 1993 has a DIY installed Manual Transmission from the previous owner and it doesn't have a clutch "safety" or what I'm assuming is the Clutch Position Sensor. The old clutch (5.7 clutch system) has to be replaced anyway for the (6.0 clutch system) Tremec. So, if I crank the engine with the Transmission in gear, it will lurch forward. So ultimately is that Clutch Sensor required with the new clutch before startup?

As far as ECM, will the E38 be compatible with a manual, if not what will I need?

The TR-6060 will be a Magnum 6-Speed by Tremec (listed as an aftermarket TR-6060), and they have mech/elec. Speedometer hookups.



Dec 5, 2021 at 7:52 AM
Avatar
KASEKENNY
  • CAR REPAIR CONTRIBUTOR
  • 18,907 POSTS
Okay. So, the transmission itself is not what you need the clutch position sensor. That is part of the truck and not the transmission.

So, if you try to start it in gear then it just needs a clutch. Have you thought about just replacing the clutch as it is going to be much easier if there are no issues with the actual gears?

Meaning if the transmission shifts between gears, then I would just replace the clutch.

https://www.2carpros.com/articles/how-to-replace-a-clutch

You can get a clutch kit for this vehicle for less than $100.

https://www.rockauto.com/en/catalog/chevrolet,1993,c1500+pickup,5.7l+v8,1031331,transmission-manual,clutch+kit,1993

Basically, I am sure you can get the other transmission to work but it is going to be trial and error to find out what is needed once it is installed.

Going from this older truck to a modern transmission, there are going to be issues, but I am not sure what they are at this point. All I can see would be the speed sensor but that will not prevent the transmission from operating.
Dec 5, 2021 at 9:08 AM