Low idle speed even in park, accessories lowing it further

Tiny
KIWASABI1
  • MEMBER
  • 2001 MITSUBISHI ECLIPSE
  • 2.4L
  • 4 CYL
  • 2WD
  • AUTOMATIC
  • 215,000 MILES
Hello everyone,

I recently thought I fixed all my issues by replacing the throttle body, fuel pump, TPS, MAP, MAF, air filter, crank position sensor, and timing belt, but had this issue crop back up.

When the mechanic first put in the new throttle body, the idle was a bit high in park, 1,500 or so, but dropped back down to 1,100-1,200. Idle in drive was normal around 800 RPM.

Now today after I started it with it very cold covered in snow, it was idling at only 600 RPM's while in park. I noticed if I turned the defroster/blower off, it raised it back up a bit. But now when I'm driving it, it idles at 600 RPM's at most, and will drop to 500 or 400 sometimes, especially with A/C turned on or defogger on, even when the windows are rolling down.

I've got 3 different IACs that I've tried switching between them. All are giving me similar results, so I don't think it's the IAC.

My mechanic said it could be a misfire caused by dirty spark plugs, but I've already cleaned them and put them back in.

Anyway, what can cause this low idle while even in park, that doesn't seem to raise when you go from drive to park? Or if it does raise, it'll go from 600 to 700 or 800, not up to 1,000+ like normal.

Also, accessories shouldn't bog down the idle RPM's so badly either. My understanding is generally if you turn on A/C or defogger and it drops RPM's significantly, it means your IAC isn't compensating properly. I'm pretty sure I've ruled it out though.

One last thing is I got a code for a MAP/MDP sensor and TPS sensors. I had replaced the MAP/MDP sensor to a new one, which it obviously didn't like, so I put the old one back in. We also calibrated the TPS so that it was between 535 and 735 MV while at idle, as the service manual says to do. It was bouncing around a lot though which was weird since it was just idling and nobody was pressing on the throttle. It was bouncing around from 600-724 MV or something.

Any ideas?
Friday, April 17th, 2020 AT 4:36 PM

38 Replies

Tiny
KIWASABI1
  • MEMBER
  • 202 POSTS
I should mention that there are no codes now. I cleared the Manifold Differential Pressure sensor code by putting back in the old one. And cleared P0121 TPS out of range by properly calibrating it between 535 and 735 MV at idle with a scan tool.
Was this
answer
helpful?
Yes
No
Friday, April 17th, 2020 AT 4:39 PM
Tiny
KIWASABI1
  • MEMBER
  • 202 POSTS
I took a quick picture of the values on the mechanic's scan tool. Keep in mind the idle is consistently much lower now. And we adjusted the TPS to between.535-.735. It was bouncing around between.600-.725 V after calibration while idling.

Is it an option to adjust the Base Idle Screw or Speed Adjustment Screw to get the idle up so it doesn't stall on me? Some people were talking about using weather stripping or zipties to pull the throttle cable a bit. But that's way too hacky for me.

RPM: 1301
TPS (V):.918
TPS%: 12.9
IAC Steps: 37
ECT Sensor (Fahrenheit): 210 F
IAT Sensor (Fahrenheit): 98 F
Vaf Sensor (Hz) 44
Baro (InHg): 24.09
Was this
answer
helpful?
Yes
No
Friday, April 17th, 2020 AT 5:22 PM
Tiny
JACOBANDNICKOLAS
  • MECHANIC
  • 110,192 POSTS
Looking at the readings, I have to ask. You said there was snow on the vehicle. The IAT indicates intake air at 98°F. Is that correct? If there was snow on the ground, I would have thought that would be a lower temp. Is it possible for you to tell me what the short term fuel trims are?

Also, as far as idle speed, I'm quite happy to hear you say no to the ziptie. LOL You mentioned that you switched the IAC. However, we need to check it. The idle speed is controlled by that and not adjustable. When you place a load on the engine (electrical, AC, PS) and so on, the IAC should maintain the idle speed. Actually, the spec is 700 RPM in neutral.

When you removed the IAC, did you check to make sure there was nothing blocking where it mounts such as carbon? Take a look through this link. You may find it helpful.

https://www.2carpros.com/articles/idle-air-control-valve-service

Next, here are the directions for testing the IAC. The attached pics correlate with the directions.
_______________________________________________________

2001 Mitsubishi Eclipse GS L4-2350cc 2.4L SOHC MFI
Component Tests and General Diagnostics
Vehicle Powertrain Management Fuel Delivery and Air Induction Idle Speed/Throttle Actuator - Electronic Testing and Inspection Component Tests and General Diagnostics
COMPONENT TESTS AND GENERAL DIAGNOSTICS
IDLE AIR CONTROL MOTOR (STEPPER MOTOR) CHECK

Required Special Tool:
MB991709: Test Harness Set

Checking the Operation Sound
1. Check that the engine coolant temperature is 20 °C (68 °F)

NOTE: If necessary, you can disconnect the engine coolant temperature sensor connector and connect the harness-side of the connector to another engine coolant temperature sensor that is at 20 °C (68 °F) or below.

2. Check that the operation sound of the stepper motor can be heard after the ignition is switched ON (but without starting the motor).
3. If the operation sound cannot be heard, check the stepper motor's activation circuit. If the circuit is normal, it is probable that there is a malfunction of the stepper motor or engine control module (ECM) or powertrain control module (PCM) .

pic 1

Checking the Coil Resistance
1. Disconnect the idle air control motor connector.
2. Measure resistance between terminal 2 and either terminal 1 or terminal 3 of the connector at the idle air control motor side.
Standard value: 28 - 33 ohm [at 20 °C (68 °F)]

3. If resistance is not within the standard value, replace the IAC motor.
4. Measure the resistance between terminal 5 and either terminal 6 or terminal 4 of the connector at the idle air control motor side.
Standard value: 28 - 33 ohm [at 20 °C (68 °F)]

5. If resistance is not within the standard value, replace the IAC motor.

pic 2

1. Remove the throttle body.
2. Remove the idle air control motor.
3. Connect special tool MB991709 to the idle air control motor connector.
4. Connect the positive (+) terminal of a power supply (approximately 6 V) to terminal 2 and the terminal 5.
5. Connect the negative (-) terminal of the power supply to each clip as described in the following steps. Then check whether or not the stepper motor vibrates slightly as it operates.
1. Connect the negative terminal of the power supply to terminal 1 and terminal 4.
2. Connect the negative terminal of the power supply to terminal 3 and terminal 4.
3. Connect the negative terminal of the power supply to terminal 3 and terminal 6.
4. Connect the negative terminal of the power supply to terminal 1 and terminal 6.
5. Connect the negative terminal of the power supply to terminal 1 and terminal 4.
6. Repeat the tests in sequence from (5) to (1) to test opposite movement of the IAC.

pic 3

6. If vibration is detected during the test, the stepper motor can be considered to be normal.

________________________________________________

Let me know if any of this helps or if you have other questions.

Take care,
Joe
Was this
answer
helpful?
Yes
No
+1
Friday, April 17th, 2020 AT 9:52 PM
Tiny
KIWASABI1
  • MEMBER
  • 202 POSTS
So after I put back the original IAC today and reset the ECU by disconnecting the battery and placing both the positive and negative together for quite a while, and let the engine get fully cold again. It has been idling and running a lot more normal. Drive/Reverse are sitting at about 800 RPM's without any AC/defrost on, and 700 RPM's with them on. Park and Neutral are both sitting around 1,200-1,400 without any AC or defrost on, and drop substantially about 300-400 RPM's to about 900-1000 RPM's with anything on. This is bizarre because it happens even if I have defrost on blower setting 1 out of 4, and only drops slightly more when increased all the way to 4.

Is the IAC for sure the only thing that can be at fault for that? Or perhaps it's happening further up the chain and something isn't telling the IAC to open?

"Looking at the readings, I have to ask. You said there was snow on the vehicle. The IAT indicates intake air at 98 F. Is that correct? If there was snow on the ground, I would have thought that would be a lower temp. Is it possible for you to tell me what the short term fuel trims are?"

It had been cold and snowed the previous day about 5". When the readings were taken, it was more like 50 degrees outside. And the car had been fully warmed up 15 minutes or so and driven another 5 or 10 minutes. But I suppose the IAT should have been closer to 50 degrees? I know in these cars the IAT is integrated with the MAF which I recently replaced with a refurbished one.

As for the fuel trims, sorry but I don't own this scan tool. I just took a picture of the screen when it was hooked up at the mechanic.

"Also, as far as idle speed, I'm quite happy to hear you say no to the ziptie. LOL You mentioned that you switched the IAC. However, we need to check it. The idle speed is controlled by that and not adjustable. When you place a load on the engine (electrical, AC, PS) and so on, the IAC should maintain the idle speed. Actually, the spec is 700 RPM in neutral."

Drive/Reverse currently are at about 700-800 RPM's. Park and Neutral are identical at about 1200-1400 without anything on, or about 1000 RPM's with AC or defroster on. That's what it's doing right now at least, this morning was totally different, as talked about in my original post.

"When you removed the IAC, did you check to make sure there was nothing blocking where it mounts such as carbon? Take a look through this link. You may find it helpful."

I blew some condensed air in the opening where the IAC mounts. I looked inside and it didn't look very dirty. Keep in mind we recently replaced the throttle body too, although it's used, it's quite a clean unit. Tomorrow I could open it up again though. I cleaned the IAC itself with some MAF sensor cleaner and condensed air as well. It is a relatively new sensor, pretty sure I only just put this one in for the first time a month or two ago.

To be honest, I don't have the tools and capability to fully test the IAC as you've pasted below. If it's absolutely the IAC that causes the problems with the RPMs not compensating for extra load, I can definitely try buying another one for $15.00 on eBay. The thing is that I've replaced these things multiple times over the years, and have battled lots of idle problems on this car. At one point a friend / hack mechanic adjusted the Base Idle Speed Screw for me which was set quite high evidently. And it sounds like that may have been part of what did in my throttle body. Although I also had a TPS in there that wasn't properly calibrated for years, which may have also contributed.

Anyway, I considered it being a temperature sensor as well, being as how it didn't properly adjust for it being extra cold this morning. But with a 200 degree ECT sensor reading that seems unlikely. For the IAT I could always try putting back in my old MAF. Although when I had similar issues before, changing between the two did nothing.

One final thing, it's very subtle, but I think my dash lights dim ever so slightly when I put the extra load on with AC/defroster. See attached video and let me know if you notice this as well. This can be indicative of a weak alternator. Although the mechanic testing the battery and got 14.2 Volts which he said rules out the alternator. Again if you think I should just try a brand new IAC, I'd be happy to risk $15 on it. But I'm wondering if it could be a problem further up the chain since this IAC is pretty much new itself.

https://www.2carpros.com/articles/idle-air-control-valve-service

Next, here are the directions for testing the IAC. The attached pics correlate with the directions.
Was this
answer
helpful?
Yes
No
Friday, April 17th, 2020 AT 10:39 PM
Tiny
KIWASABI1
  • MEMBER
  • 202 POSTS
If you watch around the 6,000-8,000 area of the RPMs when I turn on the defroster, you can notice the subtle dimming of the dash lights.
Was this
answer
helpful?
Yes
No
Friday, April 17th, 2020 AT 10:41 PM
Tiny
KIWASABI1
  • MEMBER
  • 202 POSTS
Regarding the AC/Defroster dragging down the RPM's, could it be the AC compressor? I read that the AC Compressor is also used for defrosting, which would explain why just using the heat or fan don't cause the dip in RPM's. As for the overall low RPM's I was experiencing earlier today, I can only hope that it's an ECU learning problem that I'll be able to overcome by reteaching it. This has been such a frustrating experience and I hope to fix this soon.

https://www.youtube.com/watch?v=qdJM9vYw75Q
Was this
answer
helpful?
Yes
No
Friday, April 17th, 2020 AT 11:28 PM
Tiny
KIWASABI1
  • MEMBER
  • 202 POSTS
Okay so today I had the car stall multiple times in a row while driving. It was fine for quite a long time, drove it about 15-20 minutes after idling 15 minutes, then drove another 20 minutes after idling about 15 minutes to get home. Then when I started to slow for a stop light, I was going about 20-30 mph, and it stalled. I had to keep the throttle pressed in order to keep it from stalling because it was dropping as low as 200-300 RPM's at lower speeds and at idle.

The nice thing is I did get a code. P0507 Idle Air Control System RPM Higher Than Expected. But could all three of my IACs really bad? I admit I've used cheap eBay parts for this. I do have one OEM one that I got off a used throttle body but it was pretty dirty and may not work right. I guess I should try a higher grade part, possibly refurbished OEM? Or is it possible something is going on higher up the chain?

From reading it could also be a bad or failing Power Steering Pressure Switch. But it sounds like that causes the stalling more while turning the wheel. I was having the stalling happen just by going straight. Although I may have noticed the wheel is getting a little harder to turn as well.
Was this
answer
helpful?
Yes
No
Saturday, April 18th, 2020 AT 4:55 PM
Tiny
KIWASABI1
  • MEMBER
  • 202 POSTS
Just got P0506 Idle Air Control RPM's Lower Than Expected code as well. So the ECU clearly does not agree with the IAC right now. It's weird though as it's both saying it is stuck open, and stuck closed. I guess I'll need a multi-meter and do the proper voltage checks. I just don't get how I could possibly have three bad IAC's. I've cleaned them all too.

By the way. The IAC connector was stuck on at one point due to heat. I used a hair dryer to heat it up slightly to get it apart. It doesn't appear I damaged the connector or wires at all but it makes me wonder. Of course I've battled these issues with the car for 6-8 years now. Throwing new IAC's at it never seemed to fully fix the issue, which was why at one point we adjusted the Base Idle Speed Screw higher to get it to stop stalling. I may have to do that as a temporary hack to make it safe to drive.

Sounds like a possible vacuum leak from my research, although I do not hear any of the typical hissing or whistling sounds. Guess I can try a smoke test tomorrow.
Was this
answer
helpful?
Yes
No
Saturday, April 18th, 2020 AT 6:30 PM
Tiny
JACOBANDNICKOLAS
  • MECHANIC
  • 110,192 POSTS
Hi,

First, yes an engine vacuum leak can cause a stall. Here is a link that explains how to locate one:

https://www.2carpros.com/articles/how-to-use-an-engine-vacuum-gauge

Now, just from experience, I have learned that a lot of the low price electrical components people purchase do not work properly. Since you have an OEM one, clean it up and try it. If it is bad, chances are it will cause the problem to get worse. Or, I would get one from a local parts store where you can get a brand name part.

I can't guarantee the IAC is bad, but to be honest, I have replaced a lot of eBay and low price internet parts that had failed or never worked. It's just a thought.

The next issues is the IAT sensor. I don't know how it could have shown to be that warm when it was cold outside. That doesn't seem right. Did that part also come from online?

Let me know and don't worry. We'll figure it out together.

Take care,
Joe
Was this
answer
helpful?
Yes
No
Saturday, April 18th, 2020 AT 8:19 PM
Tiny
KIWASABI1
  • MEMBER
  • 202 POSTS
Hi Joe,

Thanks for the response.

"First, yes an engine vacuum leak can cause a stall. Here is a link that explains how to locate one."

I've visually checked the vacuum hoses and listened for any hissing or whistling sounds but haven't found any. I've also tried spraying throttle body cleaner around to get a change in RPMs to no luck. Next thing to try would be a smoke test.

"Now, just from experience, I have learned that a lot of the low price electrical components people purchase do not work properly. Since you have an OEM one, clean it up and try it. If it is bad, chances are it will cause the problem to get worse. Or, I would get one from a local parts store where you can get a brand name part.I can't guarantee the IAC is bad, but to be honest, I have replaced a lot of ebay and low price internet parts that had failed or never worked. It's just a thought."

I've cleaned all three IACs and tested them. The OEM one I've got looks pretty different from the others, and came off a different Mitsubishi, a Diamante or something. It still fits on my throttle body though. I didn't get any different behavior when trying the OEM IAC from the others. I can try cleaning it again and try it again. I also cleaned out the hole that it mounts into, and it's pretty clean. There's the smaller hole that leads back inside the throttle body which I couldn't reach too far inside of.

BTW a brand new name brand IAC is $200+. Too rich for me right now. Looks like I could try another used OEM one from ebay though for $30, says it's tested working. For now I'll try recleaning the OEM one I have and putting it back in.

I will say that the AC/defroster pushing down the RPMs seems to be a clear indicator of a faulty IAC. And of course, I just got both IAC RPMs too low, and IAC RPMs too high codes tonight after stalling while driving. I've never heard of an IAC causing a car to stall while driving though, have you? Man this is so hard to pin down.

"The next issues is the IAT sensor. I don't know how it could have shown to be that warm when it was cold outside. That doesn't seem right. Did that part also come from online?"

IAT on Mitsubishi Eclipse is integrated with MAF. I have my original MAF and a refurbished OEM one I bought recently. I've switched between them with no real difference in behavior. From reading online about the IAT reading as 98 degrees with it being 50 degrees out, apparently it's pretty normal for the IAT to read as 30-50 degrees above the actual air temperature when fully warmed up. This is because heat comes off the engine block and gets sucked in through the air intake, which results in a slightly skewed reading. Apparently the only time an IAT can reliably show the actual outside air temperature is from a cold start, since it isn't getting any extra heat from the engine. Anyway, I think the MAF/IAT is completely ruled out. A thread I was reading where people showed their readings showed an average of 30-50 degrees above actual air temperature, which is where mine is at, although a bit on the high end there.

Any chance a PCV or EGR valve could be a culprit? I haven't researched EGR valves much yet. But I read a thread about similar issues caused by a bad PCV valve.

BTW I've come across a couple pages detailing recalls for non-Mitsubishi cars where they need to reflash the ECU with an updated ROM/BIOS to fix similar issues. It's possible there's a defect in the ECU ROM that could be fixed with a newer version. I find it very weird that when I reset the computer by disconnecting the battery leads and touching them together, that my idle returns to perfectly normal for a while. Then it seems the ECU is pushing it back down again to a bad level.

"Ford has also issued a recall (04S13) for 2001-2003 Ford Escape sport utility vehicles with 3.0L V6 engines for an intermittent stalling problem. The stalling typically occurs while decelerating at speeds below 40 miles per hour. The problem is caused by the calibration of the idle air control valve and evaporative emissions system. The fix here is to reflash the PCM with updated information."
Was this
answer
helpful?
Yes
No
Saturday, April 18th, 2020 AT 9:51 PM
Tiny
JACOBANDNICKOLAS
  • MECHANIC
  • 110,192 POSTS
I want you to look at something I just found. I never payed attention to it, but the last post you indicated someone played with the base / curb idle speed. Take a look through this and let me know if it is something you can do. The attached pics correlate with the directions. Pay special attention to the second "Note" in the directions.

_____________________________________________________________________

2001 Mitsubishi Eclipse GS L4-2350cc 2.4L SOHC MFI
Adjustments
Vehicle Powertrain Management Fuel Delivery and Air Induction Idle Speed Adjustments
ADJUSTMENTS
BASIC IDLE SPEED ADJUSTMENT

Required Special Tool:
MB991502: Scan Tool (MUT-II)

NOTE: The standard idle speed has been adjusted with the speed adjusting screw (SAS), by the manufacturer, and there should be no need for readjustment.

NOTE: If the adjustment has been changed by mistake, the idle speed may become too high or the idle speed may drop too low when loads A/C, defogger, etc. Are placed on the engine. If this occurs, adjust by the following procedure.

NOTE: The adjustment, if made, should be made after first confirming that the spark plugs, the injectors, the idle air control motor, compression, etc, are all normal.

Pic 1

1. The vehicle should be prepared as follows before the inspection and adjustment.
- Engine coolant temperature: 80 - 95 °C (176 - 203 °F)
- Lights, electric cooling fan and accessories: OFF
- Transaxle: Neutral (A/T for "P" range)

CAUTION: To prevent damage to scan tool MB991502, always turn the ignition switch to the "LOCK" (OFF) position before connecting or disconnecting scan tool MB991502.

2. Connect scan tool MB991502 to the data link connector (16-pin).

NOTE: When scan tool MB991502 is connected, the diagnostic test mode control terminal should be grounded.

3. Start the engine and run at idle.
4. Select the item number 30 of the scan tool Actuator test.

NOTE: Use the scan tool to hold the IAC motor at the basic step to adjust the basic idle speed.

5. Check the idle speed.
Standard value: 700 ± 50 r/min

NOTE: The engine speed may be 20 to 100 r/min lower than indicated above for a new vehicle [driven approximately 500 km (300 mile) or less], but no adjustment is necessary.

NOTE: If the engine stalls or the engine speed is low even though the vehicle has been driven approximately 500 km (300 mile) or more, it is probable that deposits are adhered to the throttle valve, so clean it.

Pic 2

6. If not within the standard value range, turn the speed adjusting screw (SAS) to make the necessary adjustment.
7. Press the scan tool clear key, and release the IAC motor Actuator test mode.
8. Turn the ignition switch to the "LOCK" (OFF) position.

NOTE: Unless the IAC motor is released, the Actuator test mode will continue for 27 minutes.

9. Disconnect scan tool MB991502.
10. Start the engine again and let it idle for about 10 minutes.
Check that the idling condition is normal.

________________________________________________________________

This just clicked with me when I was trying to research. Normally, the curb idle speed is never adjusted other than by the manufacturer when the vehicle is new. However, since it was changed by your friend, this may be the entire problem.

Let me know.
Joe
Was this
answer
helpful?
Yes
No
Saturday, April 18th, 2020 AT 10:28 PM
Tiny
KIWASABI1
  • MEMBER
  • 202 POSTS
"I want you to look at something I just found. I never payed attention to it, but the last post you indicated someone played with the base / curb idle speed. Take a look through this and let me know if it is something you can do. The attached pics correlate with the directions. Pay special attention to the second "Note" in the directions.

This just clicked with me when I was trying to research. Normally, the curb idle speed is never adjusted other than by the manufacturer when the vehicle is new. However, since it was changed by your friend, this may be the entire problem."

To be clear, the Base Idle Speed Screw / Speed Adjustment Screw was adjusted on my old throttle body. Last week we replaced the throttle body, which did clear up major problems (mainly the throttle plate would rapidly open and close, causing RPMs to jump around by 500 RPMs or so). The mechanic mentioned that the screw on the old throttle had been adjusted very high, and could have been part of what killed the throttle.

Anyway, I was considering resetting this BISS/SAS screw to the stock position (1.5 turns) and seeing what it does. I was also considering adjusting it in order to get my idle up, so I at least can drive it again safely while I figure out the real culprit. I don't have the scan tool necessary to properly lock the IAC in the middle position. I've heard this may be doable in other ways, by grounding the IAC out or something. When my friend adjusted the screw on my old throttle body, I'm pretty sure we didn't do any of that, I just sat in the seat while he'd turn it a half turn or so, and see if that helped. When you do it this way, my understanding is the ECU will compensate to remove any changes you make anyway, which is why the scan tool is necessary.
Was this
answer
helpful?
Yes
No
Saturday, April 18th, 2020 AT 10:37 PM
Tiny
KIWASABI1
  • MEMBER
  • 202 POSTS
In short, this isn't the cause of the problem. But could be at least a somewhat last resort or temporary solution to the problem.

The low idle thing was happening before I changed out all kinds of parts including the fuel pump and throttle body. This was also an issue I battled years ago, and which a new IAC didn't fix. Of course it could be the cheap eBay parts thing for that too.
Was this
answer
helpful?
Yes
No
Saturday, April 18th, 2020 AT 10:40 PM
Tiny
JACOBANDNICKOLAS
  • MECHANIC
  • 110,192 POSTS
I was hopeful. LOL I'm starting to question if it isn't the IAC but rather an issue with the PCM. I know there are tests related to the IAC but without a code, I don't know which one would benefit you.

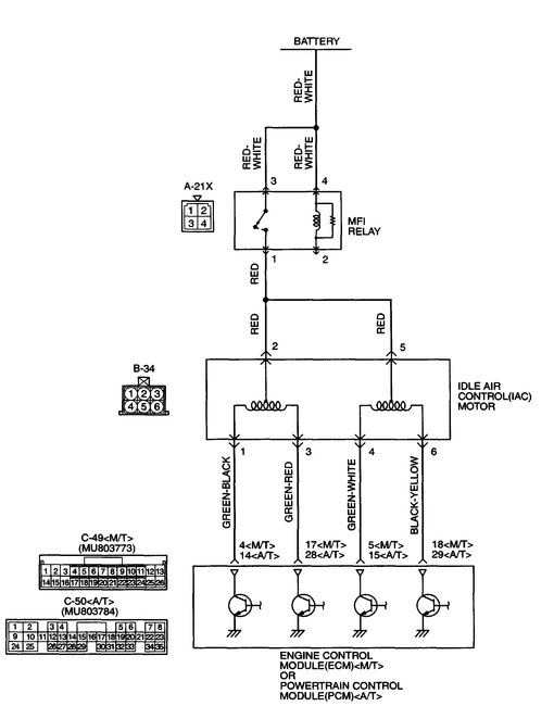
I just remembered you gave me a P0507. Here is a diagnostic flow chart specific to that code. All attached pics correlate with the directions. It does require a scanner.
Let me know if this helps.

________________________________________________________________________

2001 Mitsubishi Eclipse GS L4-2350cc 2.4L SOHC MFI
P0507
Vehicle ALL Diagnostic Trouble Codes ( DTC ) Testing and Inspection P Code Charts P0507
P0507

pic 1

Connectors
pic 2

CIRCUIT OPERATION
- The idle air control motor power is supplied from the MFI relay (terminal 1).
- The ECM (terminals 4, 5, 17, 18) (M/T> or PCM (terminals 14, 15, 28, 29) (A/T> drives the stepper motor by sequentially turning "ON" the power transistors in the ECM (M/T> or PCM (A/T> and providing ground to the idle air control motor (terminals 1, 3, 4, 6).

TECHNICAL DESCRIPTION
- The amount of air taken in during idling is regulated by the opening and closing of the servo valve located in the air passage that bypasses the throttle body.
- If there is a malfunction of the IAC system, the actual engine speed will not be identical to the target engine speed.
- The ECM (M/T> or PCM (A/T> checks the difference between the actual engine speed and the target engine speed.

DTC SET CONDITIONS

Check Conditions
- Vehicle speed has reached 1.5 km/h (0.93 mph) or more at least once.
- Under the closed loop idle speed control.

Judgement Criteria
- Actual idle speed has continued to be higher than the target idle speed by 300 r/min or more for 12 seconds.

Check Conditions
- Vehicle speed has reached 1.5 km/h (0.93 mph) or more at least once.
- Under the closed loop idle speed control.
- The highest atmospheric temperature at the last drive is 45 °C (113 °F) or less.
- Engine coolant temperature is higher than 82 °C (180 °F).
- Battery positive voltage is higher than 10 volts.
- Barometric pressure is higher than 76 kPa (11 psi).
- Intake air temperature is higher than -10 °C (14 °F).

Judgement Criteria
- Actual idle speed has continued to be higher than the target idle speed by 200 r/min or more for 12 seconds.

TROUBLESHOOTING HINTS (The most likely causes for this code to be set are:)
- Idle air control motor failed.
- Open or shorted idle air control motor circuit, or loose connector.
- ECM failed. (M/T>
- PCM failed. (A/T>

DIAGNOSIS

Required Special Tools
MB991502: Scan Tool (MUT-II)
MB991709: Test harness

pic 3

STEP 1. Using scan tool MB991502, read the diagnostic trouble code (DTC).

CAUTION: To prevent damage to scan tool MB991502, always turn the ignition switch to the "LOCK" (OFF) position before connecting or disconnecting scan tool MB991502.

1. Connect scan tool MB991502 to the data link connector.
2. Turn the ignition switch to the "ON" position.
3. Set scan tool MB991502, read the DTC.
4. Turn the ignition switch to the "LOCK" (OFF) position.

Q: Is the diagnostic trouble code other than P0507 output?

YES: Refer to Diagnostic Trouble Code Chart under "Trouble Code Descriptions".

NO: Go to Step 2.

STEP 2. Check the intake system vacuum teak.

Q: Are there any abnormalities?

YES: Go to Step 3.

NO: Repair or replace it. Then go to Step 14.

Pic 4

STEP 3. Check connector B-34 at idle air control motor for damage.

Q: Is the connector in good condition?

YES: Go to Step 4.

NO: Repair or replace it. Refer to Harness Connector Inspection. Then go to Step 14.

Pic 5

pic 6

STEP 4. Check the idle air control motor coil resistance.
1. Disconnect the idle air control motor connector B-34.
2. Measure the resistance between idle air control motor connector terminal 2 and either terminal 1 or terminal 3.
Standard value: 28 - 33 ohm [at 20 °C (68 °F)]

3. Measure the resistance between idle air control motor connector terminal 5 and either terminal 4 or terminal 6.
Standard value: 28 - 33 ohm [at 20 °C (68 °F)]

Q: Is the resistance normal?

YES: Go to Step 5.

NO: Replace the idle air control motor. Then go to Step 14.

Pic 7

STEP 5. Check the power supply voltage at idle air control motor harness side connector B-34.
1. Disconnect the connector B-34 and measure at the harness side.
2. Turn the ignition switch to the "ON" position.
3. Measure the voltage between terminal 2, 5 and ground.
- Voltage should be battery positive voltage.

4. Turn the ignition switch to the "LOCK" (OFF) position.

Q: Is the voltage normal?

YES: Go to Step 7.

NO: Go to Step 6.

Pic 8

STEP 6. Check connector A-21X at MFI relay for damage.

Q: Is the connector in good condition?

YES: Repair harness wire between MFI relay connector A-21X terminal 1 and idle air control motor connector B-34 terminal 2, 5 because of open circuit or short circuit to ground. Then go to Step 14.

NO: Repair or replace it. Refer to Harness Connector Inspection. Then go to Step 14.

Pic 9

pic 10

STEP 7. Check the power supply voltage at ECM connector C-49 (M/T> or PCM connector C-50 (A/T> by backprobing
1. Do not disconnect the connector C-49 (M/T> or C-50 (A/T>.
2. Measure the voltage between terminal (4, 5, 17, 18) (M/T> or (14, 15, 28, 29) (A/T> and ground by backprobing.
- The voltage is 1 V or lower for approximately 3 seconds, then changes to the battery positive voltage when the

Ignition switch is turned from the "LOCK" (OFF) position to the "ON" position.

3. Turn the ignition switch to the "LOCK" (OFF) position.

Q: Is the voltage normal?

YES: Go to Step 10.

NO: Go to Step 8.

Pic 11

STEP 8. Check connector C-49 at ECM (M/T> or connector C-50 at PCM (A/T> for damage.

Q: Is the connector in good condition?

YES: Go to Step 9.

NO: Repair or replace it. Refer to Harness Connector Inspection. Then go to Step 14.

Pic 12

pic 13

STEP 9. Check for open circuit and short circuit to ground between idle air control motor connector B-34 and ECM connector C-49 (M/T> or PCM connector C-50 (A/T>.
A. Idle air control motor connector B-34 terminal 1 and ECM connector C-49 terminal 4 (M/T> or PCM connector C-50 terminal 14 (A/T>.
B. Idle air control motor connector B-34 terminal 3 and ECM connector C-49 terminal 17 (M/T> or PCM connector C-50 terminal 28 (A/T>.
C. Idle air control motor connector B-34 terminal 4 and ECM connector C-49 terminal 5 (M/T> or PCM connector C-50 terminal 15 (A/T>.
D. Idle air control motor connector B-34 terminal 6 and ECM connector C-49 terminal 18 (M/T> or PCM connector C-50 terminal 29 (A/T>.

Q: Is the harness wire in good condition?

YES: Replace the ECM or PCM. Then go to Step 14.

NO: Repair it. Then go to Step 14.

Pic 14

STEP 10. Check connector C-49 at ECM (M/T> or connector C-50 at PCM (A/T> for damage.

Q: Is the connector in good condition?

YES: Go to Step 11.

NO: Repair or replace it. Refer to Harness Connector Inspection. Then go to Step 14.

STEP 11. Check the idle air control motor operation using special tool MB991709.

Pic 15

1. Remove the idle air control motor.
2. Connect special tool MB991709 to the idle air control motor. (All terminals should be connected.)
3. Use the jumper wires to connect terminal 2 of the idle air control motor connector to the battery (+) terminal.
4. Check the ensure that the motor operates when the terminals 1 and 3 of the idle air control motor connector are respectively connected to the battery (-) terminal using a jumper wire.
- Vibration should be present at each application of voltage to test clip combination.

Pic 16

5. Then. Use jumper wires to connect the terminal 5 of the idle air control motor connector to the battery (+) terminal.
6. Check the ensure that the motor operates when the terminals 4 and 6 of the idle air control motor connector are respectively connected to the battery (-) terminal using a jumper wire.
- Vibration should be present at each application of voltage to test clip combination.

Pic 17

7. Install the idle air control motor. Refer to Throttle Body - Disassembly and Assembly.

Q: Is the idle air control motor operating properly?

YES: Go to Step 12.

NO: Replace the idle air control motor. Then go to Step 14.

Pic 18

pic 19

STEP 12. Check for harness damage between MFI relay connector A-21X terminal 1 and idle air control motor connector B-34 terminal 2, 5.

Q: Is the harness wire in good condition?

YES: Go to Step 13.

NO: Repair it. Then go to Step 14.

Pic 20

pic 21

STEP 13. Check for harness damage between idle air control motor connector B-34 and ECM connector C-49 (M/T> or PCM connector C-50 (A/T>.
A. Idle air control motor connector B-34 terminal 1 and ECM connector C-49 terminal 4 (M/T> or PCM connector C-50 terminal 14 (A/T>.
B. Idle air control motor connector B-34 terminal 3 and ECM connector C-49 terminal 17 (M/T> or PCM connector C-50 terminal 28 (A/T>.
C. Idle air control motor connector B-34 terminal 4 and ECM connector C-49 terminal 5 (M/T> or PCM connector C-50 terminal 15 (A/T>.
D. Idle air control motor connector B-34 terminal 6 and ECM connector C-49 terminal 18 (M/T> or PCM connector C-50 terminal 29 (A/T>.

Q: Is the harness wire in good condition?

YES: Replace the ECM or PCM. Then go to Step 14.

NO: Repair it. Then go to Step 14.

STEP 14. Test the OBD-II drive cycle.
1. Carry out a test drive with the drive cycle pattern. Refer to Procedure 6 - Other Monitor.
2. Check the diagnostic trouble code (DTC).

Q: Is the DTC P0507 is output?

YES: Retry the troubleshooting.

NO: The inspection is complete.

______________________________________

Let me know if this is something you could do.

Joe
Was this
answer
helpful?
Yes
No
Saturday, April 18th, 2020 AT 10:52 PM
Tiny
KIWASABI1
  • MEMBER
  • 202 POSTS
" I was hopeful. LOL I'm starting to question if it isn't the IAC but rather an issue with the PCM. I know there are tests related to the IAC but without a code, I don't know which one would benefit you."

I'm going to try and borrow a multimeter tomorrow and check the wires in the IAC connector. My thinking is 3 IACs can't be all bad. BTW I did get 2 IAC related codes today, P0506 and P0507. IAC RPMs too high, and IAC RPMs too low.

P0507 Higher Than Expected happened after all the stalling while driving happened. I stalled out about 5 times in a row, luckily was only a few blocks from home. P0506 Lower Than Expected happened while idling in my driveway and backing up and driving forward a bit, switching between Park, Drive, Reverse, Neutral, turning on and off accessories, etc.

I'm wondering about the computer too. With the car idling so well whenever I reset the ECU, then it eventually starts screwing up again, it almost seems like the ECU is forcing bad adjustments. But I've also heard ECUs almost never go bad unless physically damaged. I once removed the computer back in 2014 and sent it to a repair shop focused on ECUs, and they sent it back as fully functional. This was around the same time I had similar issues as now. So I'm not sure. I'm considering taking it to the dealership once I have the money for it. This has been a month long ordeal now and I've thrown tons of parts and money at the problem with some improvements, but I stalled while actually driving today. Which is basically the worst thing a car can do other than explode.
Was this
answer
helpful?
Yes
No
Saturday, April 18th, 2020 AT 11:00 PM
Tiny
JACOBANDNICKOLAS
  • MECHANIC
  • 110,192 POSTS
I just updated my last post. I thought I would get it to you before you replied. Take a look at it.

Joe
Was this
answer
helpful?
Yes
No
Saturday, April 18th, 2020 AT 11:05 PM
Tiny
KIWASABI1
  • MEMBER
  • 202 POSTS
Thanks for the diagnostic steps. I have the service manual. Most of this is over my head and/or don't have the required scanner tool.

I came across this comment in a thread about similar issues. Any chance a PCV valve or EGR valve could be causing the drop in RPM's and stalling? Just trying to think of simple things I can try myself before admitting defeat and going to the dealership. I was also reading that spark plug wires caused similar issues for people. I know I've never replaced any of this stuff, PCV, EGR, or spark plug wires.

"I have a 1989 v3500 chev crew cab with a 454. Started stumbling at low throttle, stalling when I came to a stop or any low rpm activity. Checked for vacuum leaks, reset base idle, tested sensor components, ran Win aldl diagnostics, could not get it to run right. Took it to a friend at a local shop and it turned out to be the PCV valve the only thing I had not checked. They replaced it and bata bing bata boom problem solved. I am a pretty seasoned car guy so my point is don’t forget to check the simplest things first!"
Was this
answer
helpful?
Yes
No
Sunday, April 19th, 2020 AT 12:58 AM
Tiny
KIWASABI1
  • MEMBER
  • 202 POSTS
Found some other things to check in another thread:

"Try removing your EGR valve hose and see if you notice a difference in how it runs. If it runs better, buy some throttle body cleaner, remove the EGR and clean it. Inspect the EGR. Sometimes they crack. Also inspect your large rubber intake hose that attaches to your throttle body. Those will often crack and let in too much air. That will cause your car to run poorly and stall. You may also want to buy a can of Mass Air Flow sensor cleaner and spray down the contacts there as well. Post back with results."
Was this
answer
helpful?
Yes
No
Sunday, April 19th, 2020 AT 1:15 AM
Tiny
KIWASABI1
  • MEMBER
  • 202 POSTS
Going to try replacing camshaft position sensor based on this. I had one get burnt up 2 years ago on a 100 degree day after I waited way too long on an oil change. It caused me to stall at 80 MPH. Although I don't think it happened at lower speeds. And I don't remember it affected RPM's like this. But I already have one lying around and it's an easy replacement. If things get worse, I can switch them back. I'm very much a hack with this stuff, I admit it. I am being forced to learn way more about cars than I really want to know. I'm like most people and just want my car to function correctly and never have to think about it.

"One of the most common problems which occur due to a bad camshaft position sensor is that the engine’s performance reduces drastically. You will notice frequent stalling, idling and drop in RPM. The fuel efficiency will drop as well. All these issues should be addressed immediately and they usually occur due to a damaged camshaft position sensor."

https://mechanicbase.com/engine/camshaft-position-sensor-symptoms/
Was this
answer
helpful?
Yes
No
Sunday, April 19th, 2020 AT 2:05 AM
Tiny
KIWASABI1
  • MEMBER
  • 202 POSTS
More possible evidence of Camshaft position sensor. BTW when my last one burnt out, I didn't get a code for it.

With all the evidence of IAC problems... IAC doesn't cause a car to stall WHILE DRIVING since the IAC is only active during idle. The only thing I've ever had cause my car to stall while driving was a bad camshaft position sensor. Crankshaft position sensor can cause that too, and at low speeds specifically. But that was already replaced and didn't fix it obviously. Fortunately the camshaft sensor is way easier to access.

" Symptoms:
MIL (Malfunction Indicator Lamp) or Check Engine light illumination
Engine stalls during stop and does not idle properly unless the gas pedal is depressed
Engine stalls when letting off the gas pedal
Engine may idle too high
Engine may idle too low
Poor fuel economy
Possible no start condition
"

https://www.smogtips.com/smog-question/4120/How-To-Fix-and-Clear-OBD-II-Trouble-Code-P0341-
Was this
answer
helpful?
Yes
No
Sunday, April 19th, 2020 AT 2:17 AM

Please login or register to post a reply.