Turn signals not working

Tiny
KRAMERDAD
  • MEMBER
  • 2000 VOLVO S70
  • 2.4L
  • 5 CYL
  • TURBO
  • 2WD
  • AUTOMATIC
  • 125,000 MILES
Turn indicators do not blink.
Friday, February 9th, 2018 AT 6:29 AM

1 Reply

Tiny
CARADIODOC
  • MECHANIC
  • 34,490 POSTS
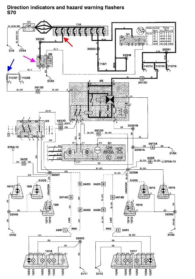
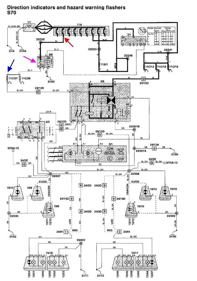
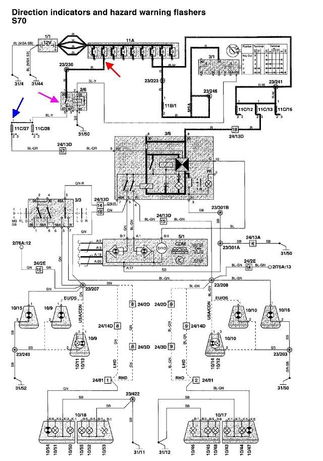
I have been in TV/VCR repair for over forty years, and have been an automotive electrical specialist for over thirty years, but Volvo electrical diagrams are completely impossible to follow. It appears your car uses an electronic flasher module, and the instrument cluster is involved in more than just the turn indicators. Regardless, with no other details, observations, or clues, the flasher would be the best suspect. The second drawing shows the locations.

There are also two fuses in the circuit as shown by my red and blue arrows. There is no indication of their size or locations. There is also a relay that appears to be turned on by the ignition switch. That would also be a good suspect. The purple arrow is pointing to that.
Was this
answer
helpful?
Yes
No
-1
Friday, February 9th, 2018 AT 4:01 PM

Please login or register to post a reply.