Lift Gate not working

Tiny
WAYNE DUPRE
  • MEMBER
  • 2013 GMC YUKON
  • 45,000 MILES
Lift gate will not open with hand, remote or inside button.
Friday, October 14th, 2016 AT 6:02 PM

25 Replies

Tiny
CJ MEDEVAC
  • MECHANIC
  • 11,005 POSTS
Several sub-models/ engine sizes/ etc.

I need to sift through all of this to find the correct diagram for the system in "Prodemand"

easiest thing to get it right on my end is to enter in your VIN (sifting is immediate!)

Reckon you can send it to me?

These diagrams show all fuses/ relays/ stuff and their locations. Easy stuff to check is found quickly, the computer/ electronic stuff may need a pro to diagnose.

Your turn

The Medic
Was this
answer
helpful?
Yes
No
Friday, October 14th, 2016 AT 7:13 PM
Tiny
WAYNE DUPRE
  • MEMBER
  • 10 POSTS
1GKS2MEF8DR210634. I disconnect battery for a minute and all is well. Just want to know what is causing it? Thanks
Was this
answer
helpful?
Yes
No
Sunday, October 16th, 2016 AT 1:34 PM
Tiny
WAYNE DUPRE
  • MEMBER
  • 10 POSTS
Also brought to the GMC dealership and they called the factory and still could not solve the problem. That is why I am here.
Was this
answer
helpful?
Yes
No
Monday, October 17th, 2016 AT 7:42 AM
Tiny
KEN L
  • MASTER CERTIFIED MECHANIC
  • 55,322 POSTS
It sounds like the BCM is having a problem. That is why it needs to be reset, has it done it again?

Please let us know so it will help others.

Best, Ken
Was this
answer
helpful?
Yes
No
Monday, October 17th, 2016 AT 6:59 PM
Tiny
WAYNE DUPRE
  • MEMBER
  • 10 POSTS
It has done it about four times all together. Since last time I reset it about a month or so ago, No it still working.
Was this
answer
helpful?
Yes
No
Wednesday, October 19th, 2016 AT 8:58 AM
Tiny
KEN L
  • MASTER CERTIFIED MECHANIC
  • 55,322 POSTS
Yes, it sounds like a BCM problem. You may need to replace it.
Was this
answer
helpful?
Yes
No
Wednesday, October 19th, 2016 AT 9:50 AM
Tiny
AL514
  • MECHANIC
  • 5,590 POSTS
Have any of the Modules/PCM/ or any body control computers been replaced at all since this started happening? Or have they just been checking the wiring in the vehicle?
Was this
answer
helpful?
Yes
No
+1
Wednesday, October 19th, 2016 AT 10:11 AM
Tiny
AL514
  • MECHANIC
  • 5,590 POSTS
And yes we need to know the sub model (ie, XL or not), engine size, 4 wheel drive or just rear wheel, please, this will aid us if in finding the right diagrams for this vehicle.
Was this
answer
helpful?
Yes
No
Wednesday, October 19th, 2016 AT 10:17 AM
Tiny
WAYNE DUPRE
  • MEMBER
  • 10 POSTS
Nothing has been replaced on the vehicle. 2013 Yukon Denali XL. 6.2 liter.
Was this
answer
helpful?
Yes
No
Wednesday, October 19th, 2016 AT 11:52 AM
Tiny
WAYNE DUPRE
  • MEMBER
  • 10 POSTS
All Wheel Drive
Was this
answer
helpful?
Yes
No
Wednesday, October 19th, 2016 AT 11:52 AM
Tiny
WAYNE DUPRE
  • MEMBER
  • 10 POSTS
The GM shop could not find the problem. I will bring it back and tell them what we talked about. Thanks for the help!
Was this
answer
helpful?
Yes
No
Wednesday, October 19th, 2016 AT 11:55 AM
Tiny
AL514
  • MECHANIC
  • 5,590 POSTS
Do you want me too look into the wiring diagrams a bit more or are you okay for now? You can always come back anytime.
Was this
answer
helpful?
Yes
No
+1
Wednesday, October 19th, 2016 AT 2:28 PM
Tiny
WAYNE DUPRE
  • MEMBER
  • 10 POSTS
I would very much like that.
Was this
answer
helpful?
Yes
No
Wednesday, October 19th, 2016 AT 2:39 PM
Tiny
AL514
  • MECHANIC
  • 5,590 POSTS
Is this the Hybrid model? Gas/ethanol?
Was this
answer
helpful?
Yes
No
Wednesday, October 19th, 2016 AT 2:51 PM
Tiny
WAYNE DUPRE
  • MEMBER
  • 10 POSTS
No it is not.
Was this
answer
helpful?
Yes
No
Wednesday, October 19th, 2016 AT 2:52 PM
Tiny
AL514
  • MECHANIC
  • 5,590 POSTS
Okay, I have to tell you up front this is a very complex system, it uses Data lines to communicate with the ECM and other control modules in the truck. Okay, so is the Lift Gate Window release switch working, the rear window wiper motor, or any lights on the dash on for any of this systems?

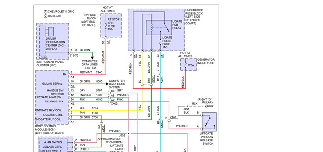
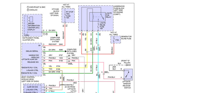
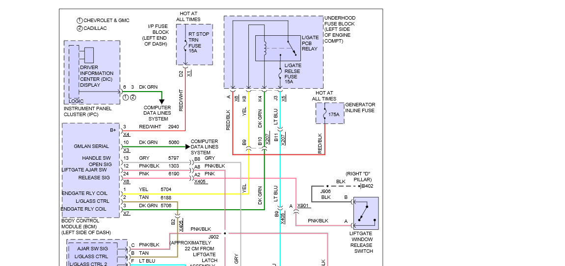
There also is a 175 amp inline fuse that protects the tailgate relay coming from the alternator. The relay for the lift gate is located in a fuse panel under the hood, here is a diagram of that also.

The rear wiper and window release switch get power from the same junction. That is why I ask.
Was this
answer
helpful?
Yes
No
+1
Wednesday, October 19th, 2016 AT 3:06 PM
Tiny
AL514
  • MECHANIC
  • 5,590 POSTS
There is also a Power Lift Gate Module (which may be the problem), this controls all the lift gate functions from the interior control switch. Yes its confusing, Its located somewhere in the left hand side of the cargo area. There are two wires that power this module, you can actually check them for power at their fuses if you would like. They are hot at all times. Here are those two fuses. Ones under the hood, the other is in the Ignition fuse panel, under the left hand side of the dash. LGM fuse and OBS fuse.
Was this
answer
helpful?
Yes
No
Wednesday, October 19th, 2016 AT 3:18 PM
Tiny
AL514
  • MECHANIC
  • 5,590 POSTS
Here is a diagram of the control module for the lift gate, you can see all the switches and actuators go right to it. Just trying to show you what you're dealing with. This module may be the problem, but you have to make sure there is power to those two wires and a good ground first.
Was this
answer
helpful?
Yes
No
Wednesday, October 19th, 2016 AT 3:21 PM
Tiny
WAYNE DUPRE
  • MEMBER
  • 10 POSTS
I am leaning towards the ECM controller, but will check power to the two fuses. The back wiper never game me no problems even with the gate not functioning.
Was this
answer
helpful?
Yes
No
+1
Tuesday, October 25th, 2016 AT 9:18 AM
Tiny
KEN L
  • MASTER CERTIFIED MECHANIC
  • 55,322 POSTS
Please let us know what happen Wayne.

Best, Ken
Was this
answer
helpful?
Yes
No
Tuesday, October 25th, 2016 AT 10:24 AM

Please login or register to post a reply.