Ignition diagram needed

Tiny
KYLE LYON
  • MEMBER
  • 2000 MITSUBISHI ECLIPSE
  • 2WD
  • AUTOMATIC
  • 100,000 MILES
I need to get a ignition key connecter colored wiring diagram and can't find one online no where. Please can you help?
Sunday, June 27th, 2021 AT 6:41 AM

1 Reply

Tiny
JACOBANDNICKOLAS
  • MECHANIC
  • 110,192 POSTS
Hi,

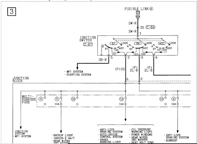
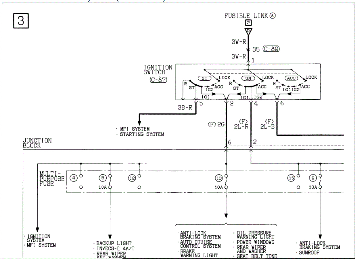
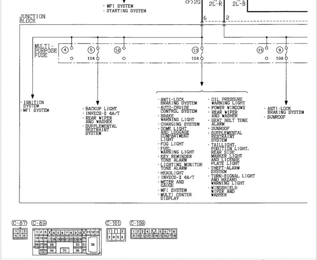
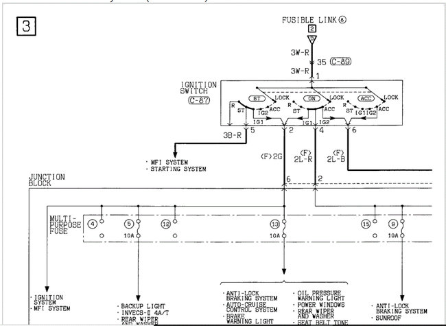
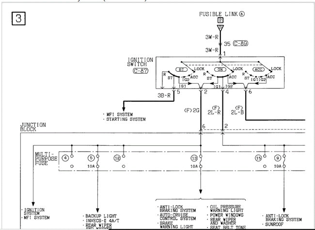
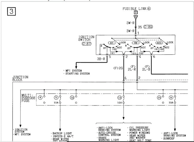
I was able to find an original OEM schematic of the switch. The colors are abbreviated.

The last 4 pics are from my manual. I had to cut the pics in half to make them readable. I did overlap them. If you look at pic 5, I highlighted the ignition switch. This may be easier to follow for you.

Let me know if this helps or if you have other questions.

Here is a link you may find helpful:

https://www.2carpros.com/articles/how-to-check-wiring

I hope this helps.

Take care,

Joe

See pics below.
Was this
answer
helpful?
Yes
No
Sunday, June 27th, 2021 AT 10:19 PM

Please login or register to post a reply.