Wiring diagram needed?

Tiny
NAINOA
  • MEMBER
  • 1998 TOYOTA 4RUNNER
  • 240,000 MILES
I brought my vehicle to the mechanic, and they sabotaged my vehicle the wires are not connected, and I need to fix it diy.
Saturday, July 22nd, 2023 AT 5:28 PM

18 Replies

Tiny
JACOBANDNICKOLAS
  • MECHANIC
  • 110,194 POSTS
Hi,

By chance, is there a specific circuit you are working with? For example, do you need schematics for the powertrain control module or the instrument cluster?

Let me know.

Take care,

Joe
Was this
answer
helpful?
Yes
No
+1
Sunday, July 23rd, 2023 AT 7:36 PM
Tiny
NAINOA
  • MEMBER
  • 41 POSTS
I’m looking for the schematics for the emissions and engine control systems. Thanks for the help, Joe.
Was this
answer
helpful?
Yes
No
Sunday, July 23rd, 2023 AT 10:39 PM
Tiny
JACOBANDNICKOLAS
  • MECHANIC
  • 110,194 POSTS
Hi,

No problem whatsoever. If you look below, I attached the schematic for the powertrain management. That includes the engine and emissions system sensors.

Since you mentioned emissions, I also attached the vacuum schematic for the emissions system. It is the last pic below.

Note: The wiring schematic was two pages long. I had to cut each pic in half to make them readable for you. I did overlap them so you can follow from one to the next.

Let me know if this helps.

Take care,

Joe

See pics below.
Was this
answer
helpful?
Yes
No
+1
Monday, July 24th, 2023 AT 8:41 PM
Tiny
NAINOA
  • MEMBER
  • 41 POSTS
Thanks for the help, Joe, but it’s seems different from the one I have for instance my ECM is a 34p 22p 16p. 28p. And I have a 4x4 Manual Transmission. I’ve also noticed there’s a park neutral switch on your schematics? I have a 1998 Toyota 4Runner 3.4L 4x4 5spd?
Was this
answer
helpful?
Yes
No
Tuesday, July 25th, 2023 AT 12:16 AM
Tiny
NAINOA
  • MEMBER
  • 41 POSTS
Or does manual transmissions have a park neutral safety switch? I’m lost here!
Was this
answer
helpful?
Yes
No
Tuesday, July 25th, 2023 AT 12:25 AM
Tiny
JACOBANDNICKOLAS
  • MECHANIC
  • 110,194 POSTS
Hi,

The schematic is the same for both. However, your truck with a manual transmission should have a clutch switch that allows the starter to engage. It won't have a neutral safety switch. Also, on the schematic, note there are different connectors identified.

If you look below, I took a section of the starter circuit schematic. You can see that the same power supply goes to either a clutch switch or a neutral safety switch.

Let me know what problem you are dealing with. I may have schematics that will help more. Also, let me know if this is a base model, Limited, or SR5. If I recall, the base model didn't offer a 3.4L, but let me know. I doubt it, but something could be different.

Take care,

Joe

See pics below. Note: Pic 2 shows the options I'm seeing.
Was this
answer
helpful?
Yes
No
+1
Tuesday, July 25th, 2023 AT 8:13 PM
Tiny
NAINOA
  • MEMBER
  • 41 POSTS
T if Ann’s got the information I appreciate you, the runner is a SR5 standard 4x4, it is throwing a P 0110 and the ECM is shutting off fuel pumps seconds after starts. I believe the computer is plug mode. I just want to do a check of all components and ECM, hopefully I can reboot the ECM from plug status and get the runner to run. Thanks again
Was this
answer
helpful?
Yes
No
Wednesday, July 26th, 2023 AT 2:29 AM
Tiny
JACOBANDNICKOLAS
  • MECHANIC
  • 110,194 POSTS
Hi,

That code is specific to the intake air temperature sensor. That can cause it not to run. See the description below. (Pic 1)

Do me a favor. Disconnect the MAF sensor and see if it stays running. The IAT is integral to the MAF.

Let me know.

Joe
Was this
answer
helpful?
Yes
No
+1
Wednesday, July 26th, 2023 AT 7:37 PM
Tiny
NAINOA
  • MEMBER
  • 41 POSTS
Same thing, it starts then shuts off.
Was this
answer
helpful?
Yes
No
Monday, August 7th, 2023 AT 3:43 AM
Tiny
JACOBANDNICKOLAS
  • MECHANIC
  • 110,194 POSTS
Does it stall as soon as you release the key from the start position, or does it take a few seconds for it to happen?

Let me know.

Joe
Was this
answer
helpful?
Yes
No
Monday, August 7th, 2023 AT 1:20 PM
Tiny
NAINOA
  • MEMBER
  • 41 POSTS
It takes a few seconds.
Was this
answer
helpful?
Yes
No
Monday, August 7th, 2023 AT 4:46 PM
Tiny
JACOBANDNICKOLAS
  • MECHANIC
  • 110,194 POSTS
Hi,

Then it doesn't sound like an ignition switch issue. Are you certain the fuel pressure is within specification? Also, let me know if you have a live data scan tool. If you do, let me know if you lose the RPM signal right before it turns off.

Let me know.

Joe
Was this
answer
helpful?
Yes
No
+1
Monday, August 7th, 2023 AT 11:06 PM
Tiny
NAINOA
  • MEMBER
  • 41 POSTS
I don’t know if the fuel pressure is within specifications, I did drop the tank and changed the fuel injectors and fuel filter and fuel pressure regulator, I also can smell gas when it shuts off, start and shuts off.
Was this
answer
helpful?
Yes
No
Tuesday, August 8th, 2023 AT 3:47 AM
Tiny
JACOBANDNICKOLAS
  • MECHANIC
  • 110,194 POSTS
Hi,

If you smell gas when it shuts down, it sounds like you may be losing spark at the plugs. However, you mentioned the PCM is shutting down the fuel pump. Is that correct?

Let's try a little test. This still may be a faulty ignition switch. Both the injectors and coils get power from the ignition switch.

Go to the coil and probe it for power. See if power is lost when the engine stalls.

Next, have you checked the circuit open relay for the fuel pump?

Let me know,

joe

See pics below.
Was this
answer
helpful?
Yes
No
Tuesday, August 8th, 2023 AT 8:40 PM
Tiny
NAINOA
  • MEMBER
  • 41 POSTS
I’m checking the PCM from this check list.
Was this
answer
helpful?
Yes
No
Tuesday, August 8th, 2023 AT 11:34 PM
Tiny
NAINOA
  • MEMBER
  • 41 POSTS
I’m getting from +b-E1.02 volts and batt-E1.01 volts. But I noticed on the wiring diagram there’s a E01, E02andE03 which is direct ground power from the intake manifold to PCM. Is that the real ground power or is the E1 and E2 the ground power as well?
Was this
answer
helpful?
Yes
No
Tuesday, August 8th, 2023 AT 11:38 PM
Tiny
JACOBANDNICKOLAS
  • MECHANIC
  • 110,194 POSTS
Hi,

Thanks for the update. I need to know which schematic you are looking at. LOL, I tried going through the ones I sent, but need to know which one you are referencing. I noted that on the last pic you sent +B E1 shows battery voltage at all times. You don't have that based on what you are saying. Let me know exactly where you are checking.

Let me know.

Joe
Was this
answer
helpful?
Yes
No
Wednesday, August 9th, 2023 AT 8:44 PM
Tiny
NAINOA
  • MEMBER
  • 41 POSTS
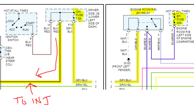
This is the schematic I got off of AllData.
Was this
answer
helpful?
Yes
No
Thursday, August 10th, 2023 AT 5:04 AM

Please login or register to post a reply.

Related General Content