How to disable beeping/chime

Tiny
901BIKERBOY
  • MEMBER
  • 2001 LINCOLN TOWN CAR
  • 181,000 MILES
I want to disable the beeping/chime that sounds when the doors are open. I am guessing that wire connects to the lCM harness under the dash.
Thursday, August 1st, 2019 AT 8:02 AM

11 Replies

Tiny
KASEKENNY
  • MECHANIC
  • 18,907 POSTS
Hi,

Unfortunately these are an input sensor so I am not sure you can disable it in that way. I would just suggest tricking it by keeping the plunger down on the switch.

So the way this works is when the door is open this switch closes and completes the circuit and it starts the chime. If you just get something to hold this plunger down at all times, then the vehicle will not know the door is open.
Was this
answer
helpful?
Yes
No
-1
Thursday, August 1st, 2019 AT 8:39 PM
Tiny
901BIKERBOY
  • MEMBER
  • 1 POST
1996-2011 town cars do not have plungers. They have sensors located inside door panel.
Was this
answer
helpful?
Yes
No
+3
Saturday, August 3rd, 2019 AT 4:29 PM
Tiny
DAVID BEACH2
  • MEMBER
  • 6 POSTS
1996 Lincoln Town Car Question, why can't we just find the "chime" and pull it out in the dash? Could we do that, instead of cutting any wires? And, if this is possible, where is that "chime" thing located?
Was this
answer
helpful?
Yes
No
Wednesday, October 13th, 2021 AT 9:24 PM
Tiny
KASEKENNY
  • MECHANIC
  • 18,907 POSTS
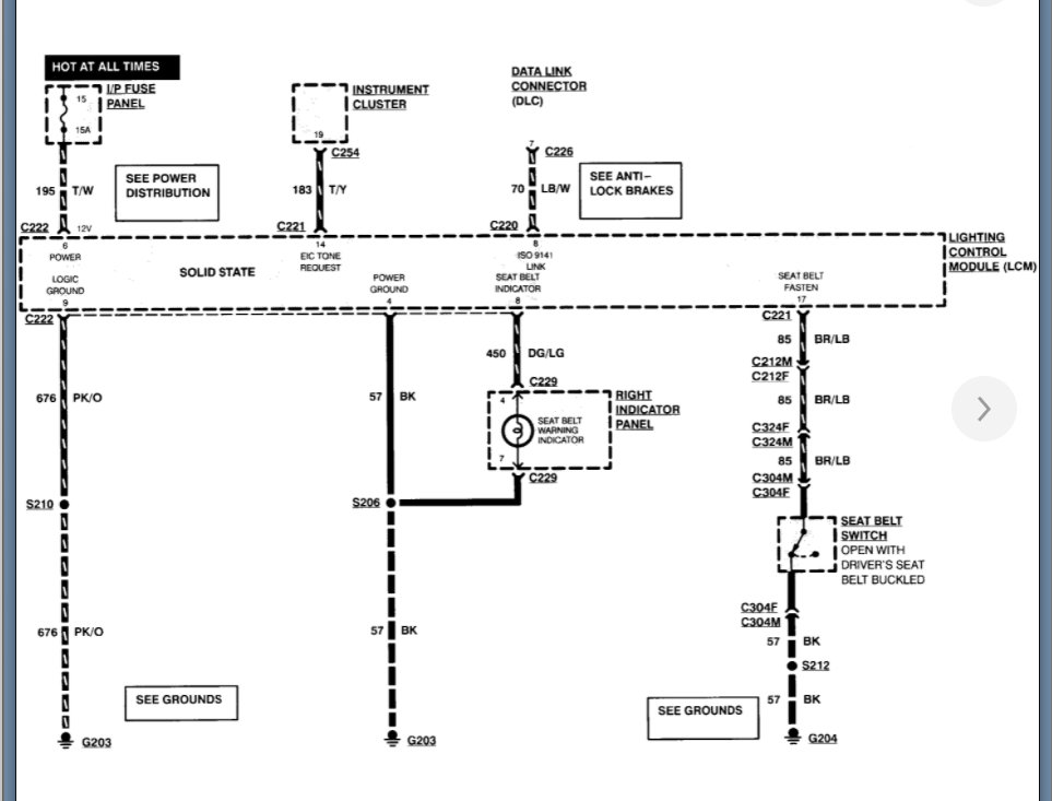
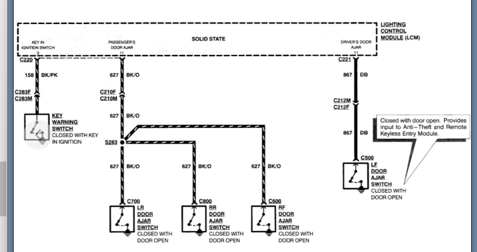
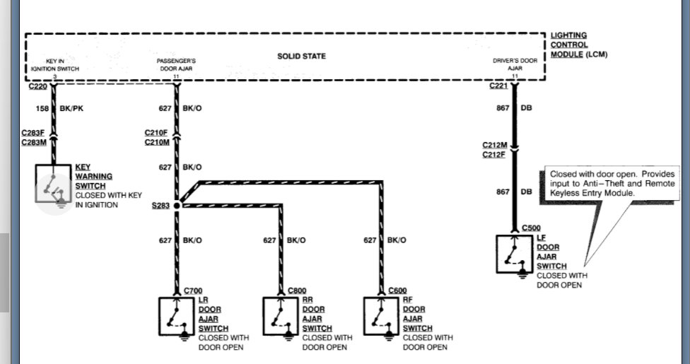
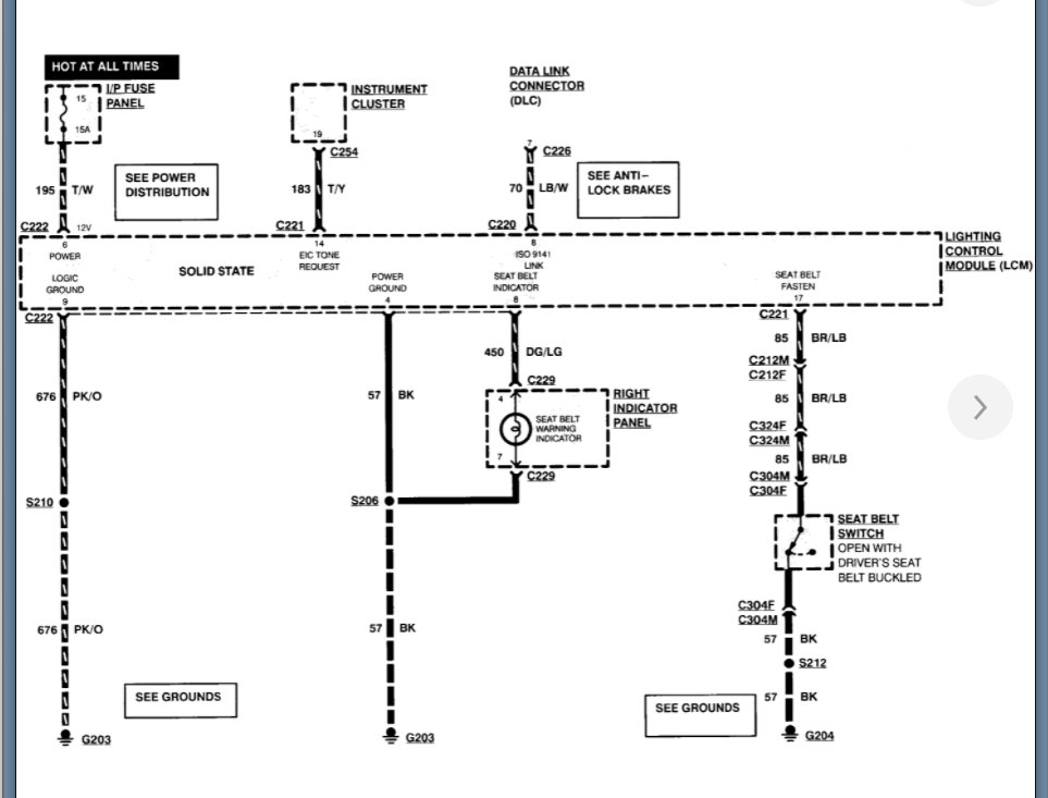
Unfortunately, this is not possible without removing the entire lighting control module.

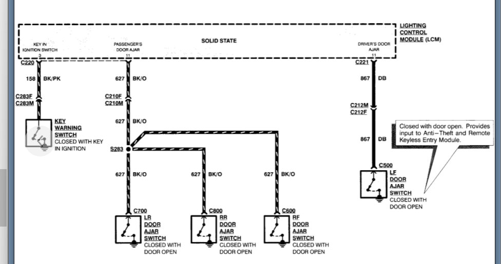
Please see the info attached below but this chime is located internal to the module so that means it is not just a speaker that can be disconnected.

Is there a reason you want it disabled? If it just continuously goes off, then we can figure out what the issue is. Thanks
Was this
answer
helpful?
Yes
No
+1
Thursday, October 14th, 2021 AT 8:33 AM
Tiny
DAVID BEACH2
  • MEMBER
  • 6 POSTS
Thank you for your reply to my question about disconnecting the chime in my 1996 Town Car. I find it very irritating to have to listen to it going off, that is why I want to stop it going off period. Sir. I have a 1993 Town car, there is no chime going off at all in that car. Again, thank you for your reply, it is appreciated.
Was this
answer
helpful?
Yes
No
Thursday, October 14th, 2021 AT 8:43 AM
Tiny
DAVID BEACH2
  • MEMBER
  • 6 POSTS
1996 Town Car seems I will have to follow the instruction concerning cutting some wires (black/pink stripe wire) and the dark blue wire. Again, thank you.
Was this
answer
helpful?
Yes
No
Thursday, October 14th, 2021 AT 8:48 AM
Tiny
KASEKENNY
  • MECHANIC
  • 18,907 POSTS
Okay. So, if the issue is that it just dings all the time then cutting the black, pink wire will solve it if the key switch is the issue. If this switch is shorted, then the LCM will think the key is inserted all the time. It should turn this off when in the run position.

If the switch is the issue this should work but if not, then the LCM is shorted internally, again assuming this circuit is the reason for this constant chime.

I attached the wiring diagram below for your review. Let us know how it turns out.

Thanks
Was this
answer
helpful?
Yes
No
+1
Thursday, October 14th, 2021 AT 9:09 AM
Tiny
DAVID BEACH2
  • MEMBER
  • 6 POSTS
Again, thank you for your help with this matter.
Was this
answer
helpful?
Yes
No
Thursday, October 14th, 2021 AT 8:20 PM
Tiny
KASEKENNY
  • MECHANIC
  • 18,907 POSTS
You are very welcome. Please come back to 2CarPros in the future.
Was this
answer
helpful?
Yes
No
+1
Friday, October 15th, 2021 AT 6:16 AM
Tiny
DAVID BEACH2
  • MEMBER
  • 6 POSTS
I have an update. Found two wires that are black with a pink line in them, one is a thin one, seems it is a ground, I stop the wire from grounding, some chimes stopped. Found a thicker wire colored black with pink strip, cut it, chimes did not stop, but engine would not start anymore, did try to start car with all doors closed. Then with the remote, I locked and unlocked the car four or five times, tried to start, nothing car no start. Joined the thick black wire with said pink strip back together, car starts no problem. Cut to the chase, cutting the black wire for me, did not work to remove the most annoying "chimes". Must work on something else to get what I want, I suppose. This is just a note to see if it's any help to anyone else, good luck to all.
Was this
answer
helpful?
Yes
No
Friday, October 15th, 2021 AT 7:16 PM
Tiny
KASEKENNY
  • MECHANIC
  • 18,907 POSTS
If that thicker black and pink wire was not on the same connector then that is most likely a ground wire to something else related to starting. However, it would not be for the chimes as you found out.

If cutting the smaller wire caused some of the chimes to stop, that would lead me to ask, what are all the chimes that are going off? Is it the open door and seat belt? I am not sure that vehicle had a seat belt chime but if you let us know that detail, we may be able to try and fix these chimes rather than try to shut them off. Just let us know how you make out with it. Thanks
Was this
answer
helpful?
Yes
No
+1
Saturday, October 16th, 2021 AT 6:33 AM

Please login or register to post a reply.