Heater fan

Tiny
FERNAND BOULAY
  • MEMBER
  • 2003 HYUNDAI SANTA FE
  • 1.7L
  • 6 CYL
  • TURBO
  • 2WD
  • AUTOMATIC
  • 128,000 MILES
Fan runs on high at all time.
Thursday, November 15th, 2018 AT 1:53 PM

1 Reply

Tiny
ASEMASTER6371
  • MECHANIC
  • 52,796 POSTS
Good morning.

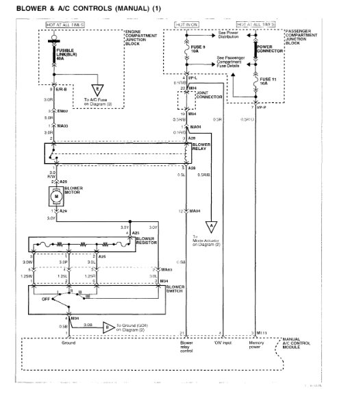
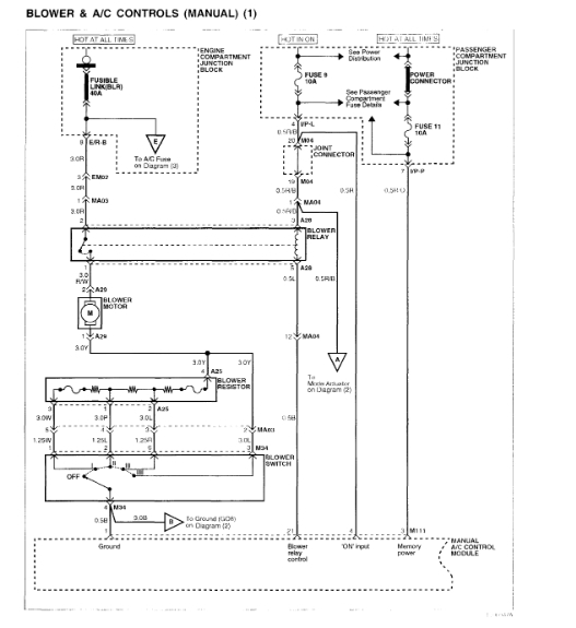
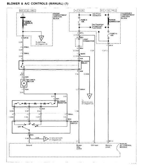
The most common cause for this issue is a shorted to power blower resistor for the blower motor.

I attached the procedure and a wiring diagram for the resistor for you below.

Roy

Replacement
1. Remove the negative (-) battery terminal

Glove Box
imageOpen In New TabZoom/Print

2. After opening the glove box, pull it downward by pressing the both side of glove box inward.

Side Cover Of Crash Pad
imageOpen In New TabZoom/Print

3. Remove the lower side cover of the crash pad.

Upper Cover Of Glove Box
imageOpen In New TabZoom/Print

4. Remove the upper cover of the glove box.

Bolt Locations
imageOpen In New TabZoom/Print

5. Loosen the bolts of glove box.

Blower Resistor (Manual)
imageOpen In New TabZoom/Print

6. Disconnect the blower heater resistor connector (A).
7. Loosen the resistor fixing screw and remove the resistor.

Caution: Use the short length positive (+) screwdriver to remove the screw

8. Replace the resistor with a new one.
9. Reinstallation is the reverse order of the removal.
Was this
answer
helpful?
Yes
No
Friday, November 16th, 2018 AT 6:03 AM

Please login or register to post a reply.