Heat and air fan only works on the high setting

Tiny
ROBIN HENSHAW
  • MEMBER
  • 1999 BUICK CENTURY
  • 4.3L
  • 6 CYL
  • 2WD
  • 140,162 MILES
The fan only works on high.
Friday, October 25th, 2019 AT 3:53 PM

1 Reply

Tiny
ASEMASTER6371
  • MECHANIC
  • 52,796 POSTS
Good afternoon,

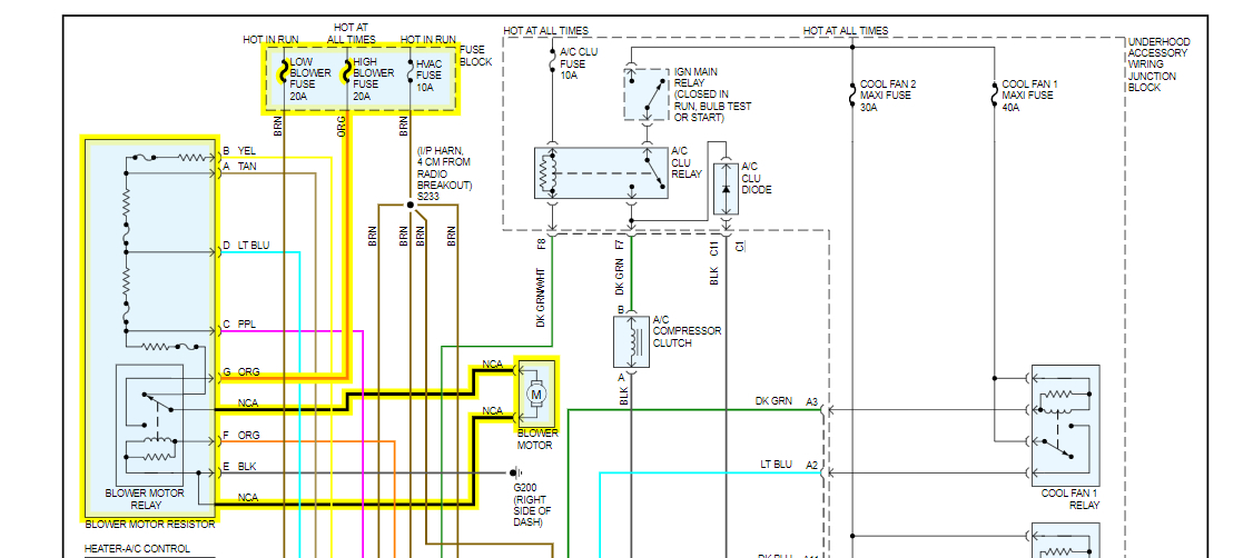
This sounds like the blower motor resistor. I attached a diagram of the unit for you. Check the 2 fuses listed for power on both sides. Check out the diagrams (Below). Let us know what happens and please upload pictures or videos of the problem.

Roy
Was this
answer
helpful?
Yes
No
Friday, October 25th, 2019 AT 4:09 PM

Please login or register to post a reply.

Related General Content