Anyway, in 2023 I had to do a bunch of rewiring due to Negative Voltage between Ignition Coil and Battery. https://www.2carpros.com/questions/negative-voltage-between-ignition-coil-and-battery
Y'all helped with that and it's running great now. However, as I was putting the windshield wiper arms under the shroud back on, before I put the shroud back on, I decided to check if the wiper motor was working properly. But when I turned it on it did not work. Then we checked all my lights, and the headlights did not work either.
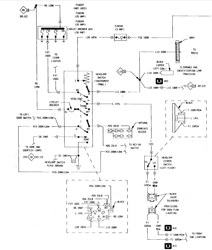
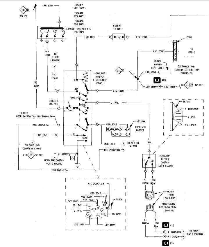
I believe I have done something wrong during the rewiring and possibly didn't get something connected back up properly. I have a 40 Way Bulkhead Disconnect diagram and a chassis electrical system diagram.
In the Bulkhead diagram it says that terminal numbers 16 and 17 go to the headlights and numbers 30 - 34 is for the windshield wipers. However, I have a feeling that the issue is not at the bulkhead terminals. I feel it is a power issue (red wire), simply because the rewiring I did was for the power, or either that it's a grounding issue. Also, the headlights and dimmer switches are brand new.
In the chassis diagram for the left headlight, it shows a G11-10WH wire that goes to ground on the chassis, and a G11A-14WH wire splices to the left headlight connector. Then from there a G11C-18WH wire, which appears to go into the windshield washer motor? And then continues with a V7-18TN wire, but my diagram doesn't go past that tan wire. Where does it go? Does it go into the bulkhead disconnect? Am I even looking at this correctly?
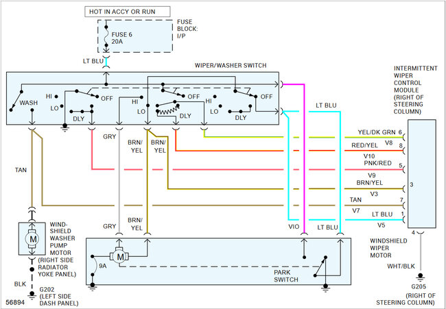
As for the wiper motor, I see that it grounds directly to the body by mounting. It has a V3-BN/YE, V4-18GR, V5-18BL, V6-18PU wire. Do they go directly into the bulkhead disconnect?
Summary: I did rewiring to the power (red) wires. Everything is working fine except for the windshield wiper motor and the headlights. They worked before I did the rewiring. The headlight and dimmer switches are brand new. Also, the fuses are good as well.
Sincerely,
Althea Mayberry
Friday, April 18th, 2025 AT 1:35 PM



