fuel injector
(2.5L engine). Blind spot information system and rear-view camera (stop/start equipped vehicles).
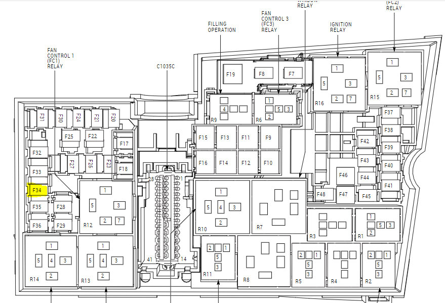
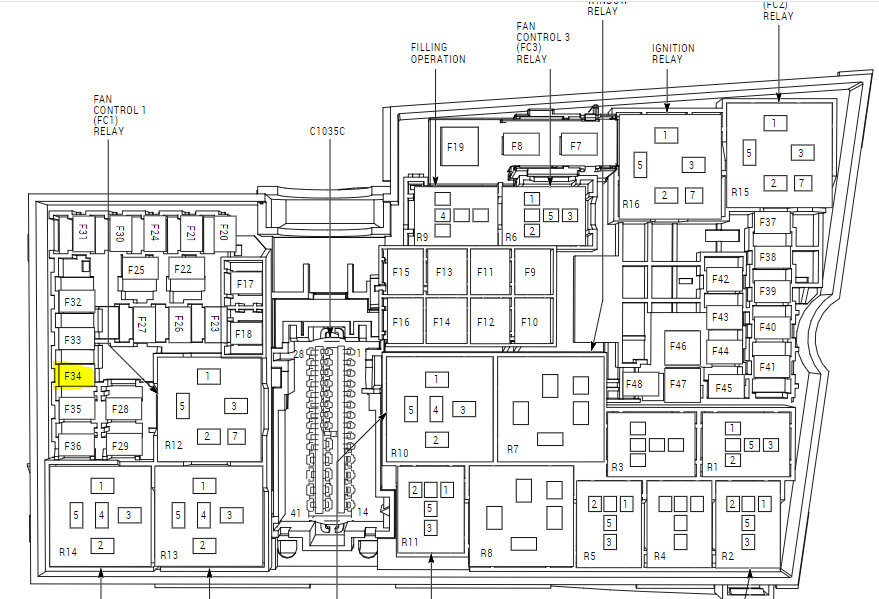
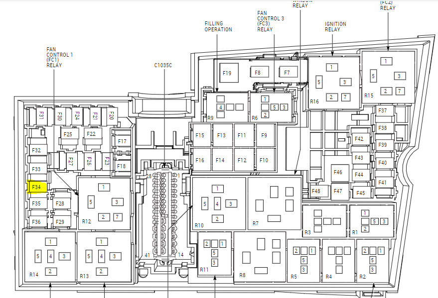
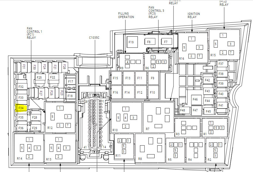
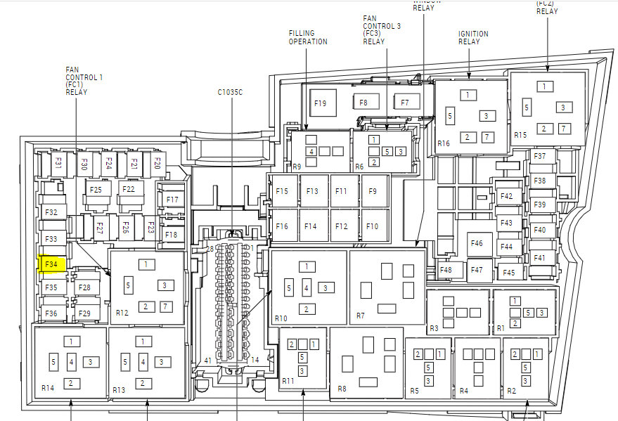
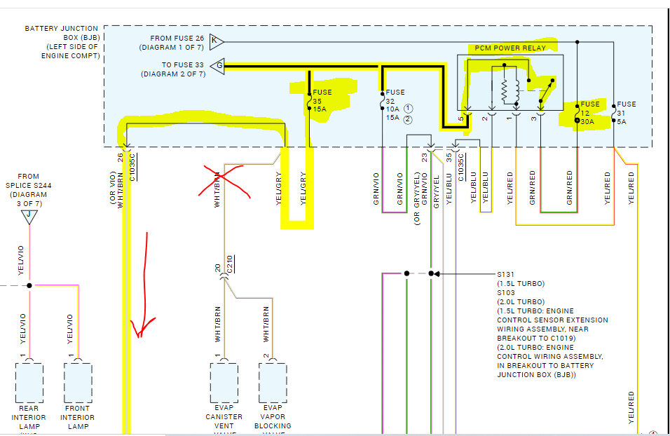
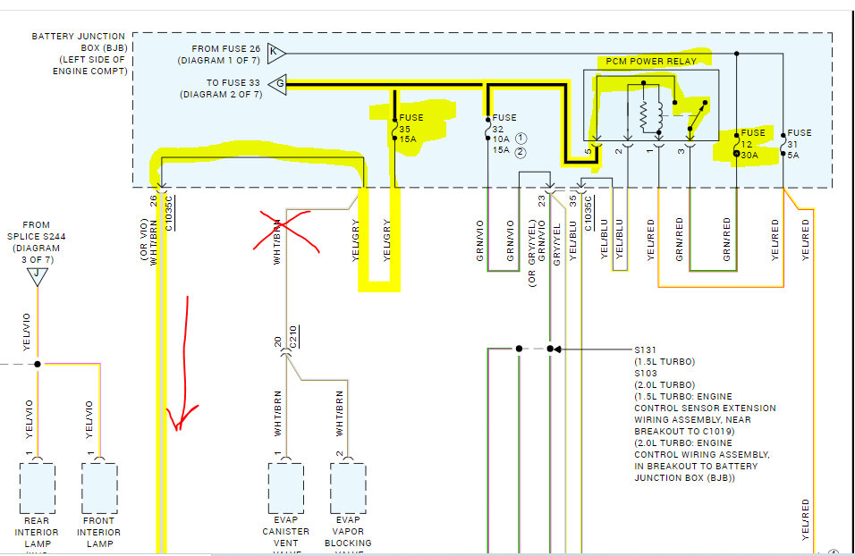
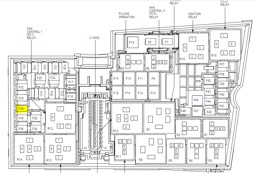
F34 —Vehicle power
So, I had to replace F28 then I noticed bat F34 was only testing properly on one side, so I replaced it but no change. Then I noticed that it was connected to the large green mini fuse thing. I pulled it out completely and noticed one of the blades that are part of the fuse box for this fuse one lights up bright red while the other has only certain parts of the blade that will only produce a dim red nothing like the other side.
What is this thing tied to?
I ordered this power probe that will come in today hopefully it’ll be of help.
Tuesday, May 21st, 2024 AT 12:39 AM














