No power to the fuse panel

Tiny
FRANK SWEENEY
  • MEMBER
  • 1995 CHRYSLER CONCORDE
  • V6
  • 2WD
  • AUTOMATIC
  • 150,000 MILES
Not getting any power to the fuse panel. It is the box inside the car. I think its a 3.3c.U.
Friday, June 16th, 2017 AT 7:21 PM

7 Replies

Tiny
CARADIODOC
  • MECHANIC
  • 34,463 POSTS
The fuses inside are fed, in groups, from the larger fuses under the hood, so check those first. The large 30 and 40-amp spade-type fuses, (orange and green ones), have two test points on top. Use a test light to quickly check those. If you find twelve volts on both test points, that fuse is good. If you find zero volts on both sides, that circuit is turned off. You are looking for any fuse that has twelve volts on one test point and zero volts on the other one.

If those fuses are okay, check the smaller spade-type fuses in the inside fuse box the same way, and try to determine which fuses are dead and which ones do have twelve volts. Do that with the ignition switch in the "run" position. Based on your findings, I will look at the diagram for your engine and see what the dead fuses have in common.

What are the symptoms you are trying to solve, or which systems are dead?

Here is a guide to help check for power and the fuse panel locations

https://www.2carpros.com/articles/how-to-check-a-car-fuse

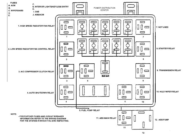
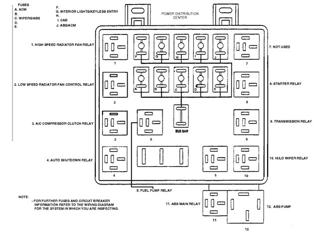
Check out the diagrams (Below). Please let us know what you find.
Was this
answer
helpful?
Yes
No
+4
Friday, June 16th, 2017 AT 11:15 PM
Tiny
FRANK SWEENEY
  • MEMBER
  • 8 POSTS
Well I will give you the long story. One day we turned the car off went back outside tried to start it and it just clicked got a jump drove home pulled in driveway and it just died. Tried to start no click no nothing. Batteries good starter is good per checking them. Started checking fuses and sees we are not getting power inside or out fuse boxes. That is where we are at. Thanks for your help.
Was this
answer
helpful?
Yes
No
+13
Saturday, June 17th, 2017 AT 12:38 AM
Tiny
KEN L
  • MASTER CERTIFIED MECHANIC
  • 55,281 POSTS
Hello,

It sounds like your problem could be an ignition switch or a fusable link. Here are some wiring diagrams (below) and a guide to help you do some testing so you can get the problem fixed.

https://www.2carpros.com/articles/how-to-use-a-test-light-circuit-tester

Please run some tests and get back to us so we can continue helping you.

Cheers, Ken

Was this
answer
helpful?
Yes
No
+1
Monday, June 19th, 2017 AT 11:01 AM
Tiny
FRANK SWEENEY
  • MEMBER
  • 8 POSTS
Found the problem. Big black wire coming from out side fuse came loose from battery and felldown where I could see pulled on wires and there it popped up. Just little things like that drive me crazy. Thanks for your help Ken.
Was this
answer
helpful?
Yes
No
+1
Monday, June 19th, 2017 AT 1:51 PM
Tiny
KEN L
  • MASTER CERTIFIED MECHANIC
  • 55,281 POSTS
Glad you could get it fixed, that kind of problem can be tough. Please use 2CarPros anytime we are here to help

Cheers, Ken
Was this
answer
helpful?
Yes
No
-1
Monday, June 19th, 2017 AT 8:57 PM
Tiny
LETICIA AVILA
  • MEMBER
  • 2 POSTS
My trunk fuse panel is only half working/ getting power on 2011 Chrysler 300.
Was this
answer
helpful?
Yes
No
Wednesday, July 17th, 2019 AT 8:11 PM
Tiny
KEN L
  • MASTER CERTIFIED MECHANIC
  • 55,281 POSTS
Your car is much newer than the one in this post. Please post your new question here, you must be logged in. We will be happy to help.

https://www.2carpros.com/questions/new

Cheers, Ken
Was this
answer
helpful?
Yes
No
-1
Thursday, July 18th, 2019 AT 9:28 AM

Please login or register to post a reply.