Fuse blows

Tiny
SPARROWHAWK
  • MEMBER
  • 1996 MITSUBISHI MONTERO
  • 3.0L
  • V6
  • 4WD
  • AUTOMATIC
  • 210,043 MILES
To start of I am disabled but I can work on my car, I just have limited funds which means I cannot afford a manual.

The 10a fuse blows when I was setting the blower speed to high. I live in the dessert and it is very hot. Now it has been starting to blow when set on medium or low. Can someone help me with this? I just need a schematic so I can see what else is on that circuit.
Sunday, May 20th, 2018 AT 10:08 AM

2 Replies

Tiny
CARADIODOC
  • MECHANIC
  • 34,463 POSTS
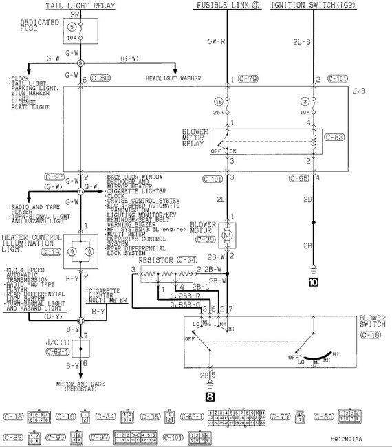
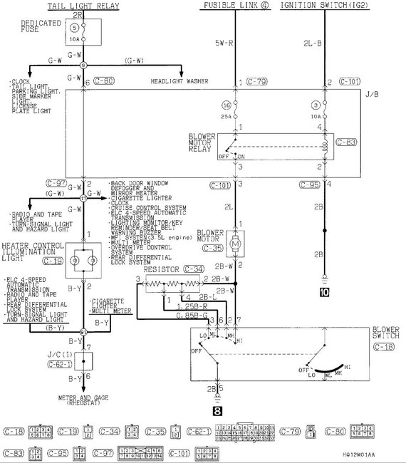
Are you referring to the tail light fuse? That is the only one shown in the fan circuit, but there is a lot of stuff on it for a ten-amp fuse. Here is the wiring diagram I found. If you find it too hard to read, I will blow it up so I can read it better, then I will write the circuits in a list.

A simple trick to finding a short is to replace the blown fuse with a pair of spade terminals, then use small jumper wires to connect them to a twelve volt light bulb. A brake light bulb works well. When the circuit is live and the short is present, the bulb will be full brightness and hot so be sure it is not laying on the carpet or against a plastic door panel. Now you can unplug electrical connectors and move things around to see what makes the short go away. When it does, the bulb will get dim or go out.

You might want to look at this article too for some more ideas:

https://www.2carpros.com/articles/how-to-check-wiring
Was this
answer
helpful?
Yes
No
Sunday, May 20th, 2018 AT 10:38 AM
Tiny
SPARROWHAWK
  • MEMBER
  • 2 POSTS
I will try this, then return with the results. Thank you.
Was this
answer
helpful?
Yes
No
Sunday, May 20th, 2018 AT 2:31 PM

Please login or register to post a reply.