License plate light fuse?

2017 TOYOTA TUNDRA
30,000 MILES • 5.7L • V8 • 4WD • AUTOMATIC
Avatar
JLOWERY214
  • MEMBER
  • 1 POST
License plate fuse location?
Aug 10, 2020 at 5:56 PM
Repair Safety Notice: This information is for general instructional purposes only. Vehicle repair can be dangerous. Verify all information, follow manufacturer service procedures, use proper tools and safety equipment, and consult a qualified repair shop when needed.
Advertisement
Avatar
KASEKENNY
  • CAR REPAIR CONTRIBUTOR
  • 18,907 POSTS
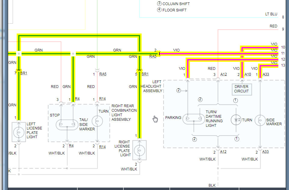
I attached the info about this fuse. It is actually a shared fuse with the taillight system. Check out the diagrams (Below). Please let us know if you need anything else to get the problem fixed. Let me know if you need more info. Thanks
Aug 10, 2020 at 6:12 PM
Advertisement