Thursday, November 2nd, 2023 AT 9:08 AM
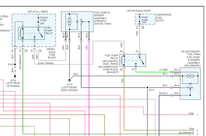
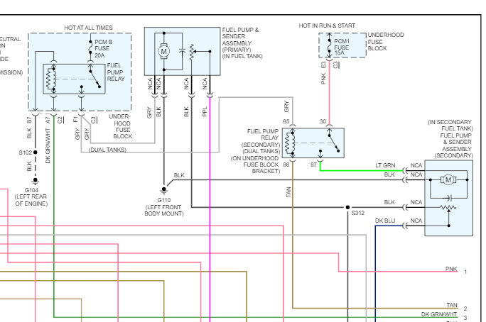
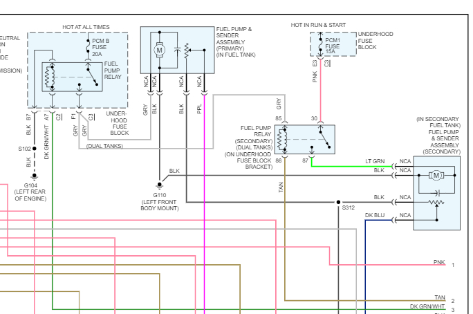
I am replacing both fuel pumps on a vehicle with dual tanks. One of the pumps I am replacing has different colored wires than the instructions that came with the pump list. The wires on the vehicle harness are black, black, blue, and green. I’m not sure how to determine what functions these wires serve.


