Sunday, September 7th, 2025 AT 6:00 PM
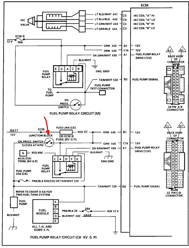
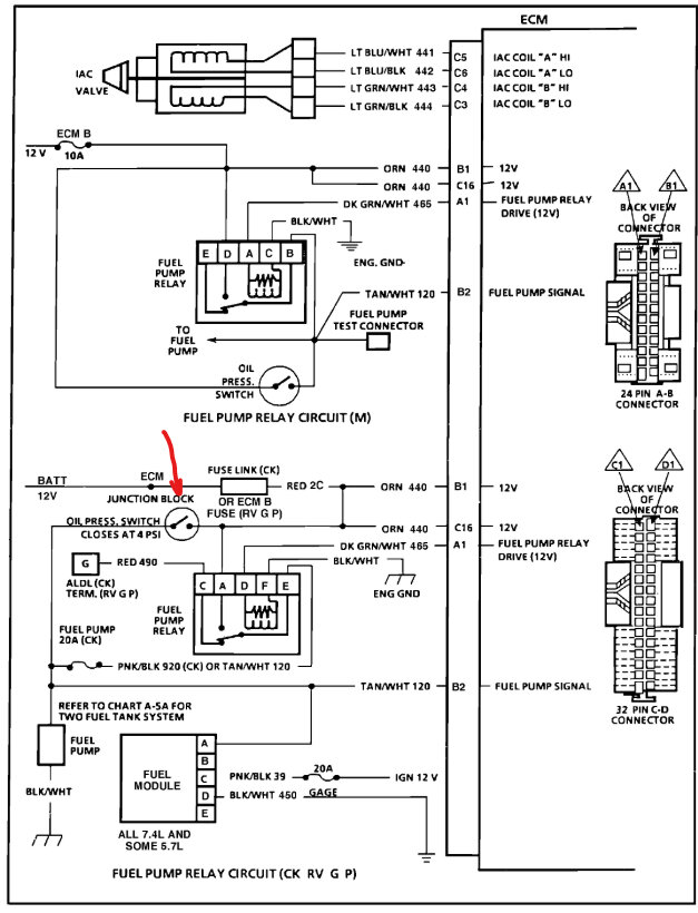
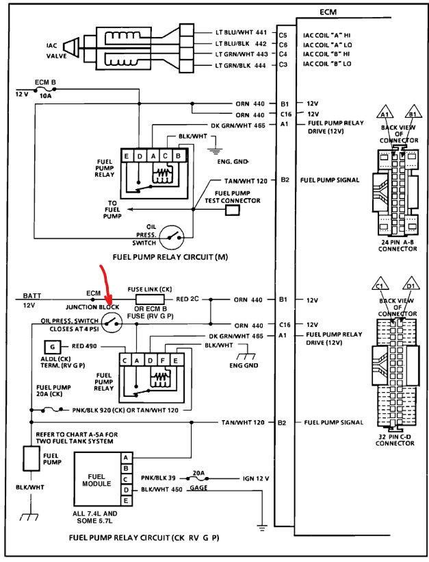
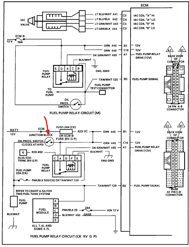
No power to orange wire on relay. Tracing this wire back to the junction block on the firewall side there's continuity through but the wire doesn't appear to connect to the under dash fuse block but rather joins into a loom that heads back, possibly to the ignition switch. Does this wire get its power from the switch? There's power to all the fuses under dash except ecmb, horn, tl/ctsy, instr. LPS. There's also no voltage to the either orange wire labeled batt. In the upper left of the block. This is a crank, no start but if fuel is poured in the TBI it starts right up. Can't hear fuel pump prime and when power is supplied to the short red test wire on the relay the pump doesn't run. Continuity tests through all fusible links and main grounds are clean and tight.




