Fuel pump relay?

Tiny
JAMES NUXOLL
  • MEMBER
  • 2006 CHEVROLET COBALT
  • 2.4L
  • 6 CYL
  • 2WD
  • AUTOMATIC
  • 200,000 MILES
If I hold wiper arm down for 10 or 15 seconds, car stutters then shuts off. Try to restart car and it cranks a few extra seconds before starting. If I turn key on and off a few times to build fuel pressure back up it starts right away. Seems that wipers are ruining fuel pump relay.
Saturday, October 26th, 2019 AT 12:04 PM

3 Replies

Tiny
KASEKENNY
  • MECHANIC
  • 18,907 POSTS
Hi,

I am not sure I understand what you mean by holding down the wiper arm. Do you mean that when you turn the wipers on and you hold the arm so it doesn't move it does this?

Maybe get a video of what you are doing so we can get a better idea.

Also, I would suggest two things. It sounds like the fuel pressure is the issue. However, depending on what is happening with the wiper arm this may not be an abnormal issue. If you are holding the arm down then I am sure the wiper motor is straining to move and this may be pulling more voltage and this causes the fuel pump to run slower due to lower voltage. If this is the case, I would monitor both the fuel pressure at the rail and then the voltage at the fuel pump while this is happening just to see what is happening.

Just let me know if I am not understanding and we can go from there. Thanks
Was this
answer
helpful?
Yes
No
Saturday, October 26th, 2019 AT 6:34 PM
Tiny
JAMES NUXOLL
  • MEMBER
  • 3 POSTS
Sorry about my miss-wording. The wiper control lever on the steering column. I pull down on the lever to operate wipers for one swipe. If I hold it down for more than 6 or 7 swipes the engine bogs and shuts off. Then takes a little cranking to restart, unless I turn ignition on and off a few times to build fuel pressure before cranking engine. Also the wipers only have one speed. No high and low, just low speed and wont shut off at all unless I turn off the engine. I hope this explains things a little better. Parts store suggested possible stuck relay. I don't know. I'd rather hear from the pros. That's you guys.
Was this
answer
helpful?
Yes
No
Sunday, October 27th, 2019 AT 2:43 AM
Tiny
KASEKENNY
  • MECHANIC
  • 18,907 POSTS
Okay. That clears it up. I would still suggest putting a volt meter on the pump to see what the voltage is doing when you are doing this. It could be a relay but we need to see that by holding the wiper on that the fuel pump is not getting 12 volts. I suspect this is what you will find but without this confirmation we are just going off an assumption and that could cause this to be very costly by going down the wrong path.

If you want to replace the relays first then that would be understandable if it is something easy but if not then we are going to need some evidence as to what is going on.

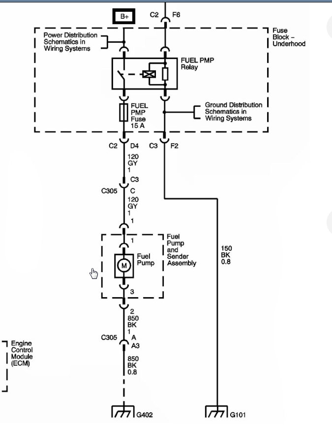
You can do this by just back probing from the under-hood fuse block on the gray wire. You don't need to go all the way back to the pump but you can if you want to.
Was this
answer
helpful?
Yes
No
Sunday, October 27th, 2019 AT 5:38 PM

Please login or register to post a reply.