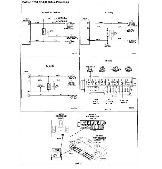
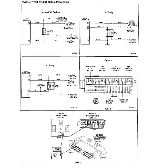
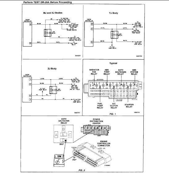
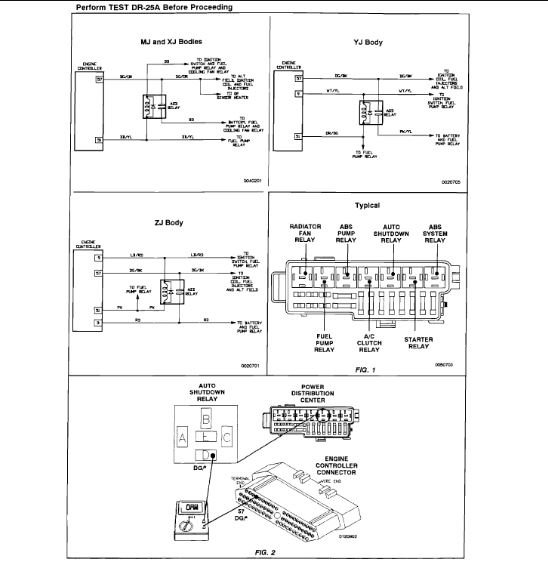
Saturday, January 4th, 2020 AT 9:55 AM
Replaced the fuel pump but now fuel gauge won't move at all. It won't start even if I put fuel straight in the carburetor. It show code 42 which is auto shut down. If the fuel gauge isn't coming on but that keep the engine from starting.






