Low voltage to fuel pump relay diagram needed?

2001 MITSUBISHI ECLIPSE
150,000 MILES • 3.0L • V6 • 2WD • AUTOMATIC
Avatar
PAPAJOHNSLICE
  • MEMBER
  • 108 POSTS
Low voltage to fuel pump relay (8.1v) looking for a diagram or advice on where to start looking first.
Jan 2, 2024 at 11:18 AM
Repair Safety Notice: This information is for general instructional purposes only. Vehicle repair can be dangerous. Verify all information, follow manufacturer service procedures, use proper tools and safety equipment, and consult a qualified repair shop when needed.
Advertisement
Avatar
STRAILER
  • CAR REPAIR CONTRIBUTOR
  • 54,193 POSTS
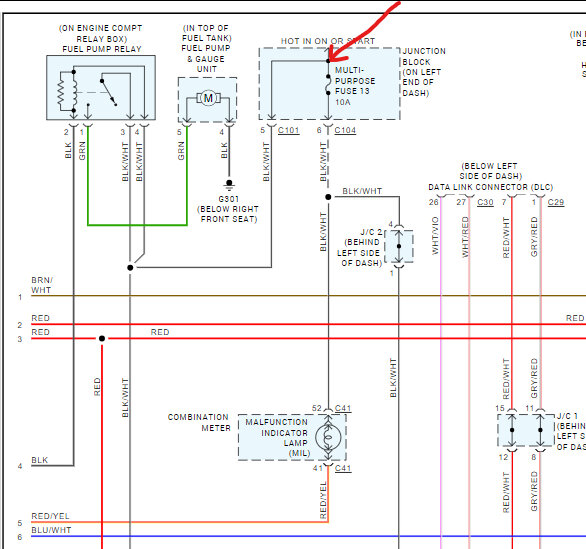
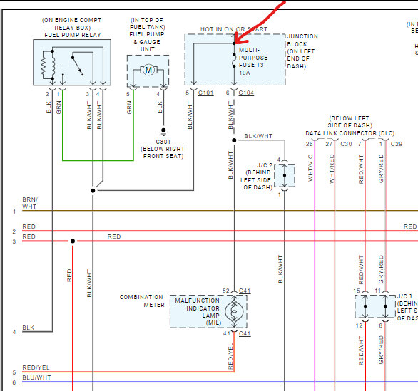
The fuel pump gets its voltage from the terminal right before multipurpose fuse in the fuse panel on the left side of the dash. Here is the wiring diagram so you can see what I am talking about. Please check the voltage at the fuse to help us see where the voltage drop is. Check out the images (below). Please let us know what happens.
Jan 2, 2024 at 11:30 AM
Advertisement