Cruise control not working

Tiny
BILLLEXUS
  • MEMBER
  • 2007 LEXUS ES 350
  • 6 CYL
  • 2WD
  • AUTOMATIC
  • 130,000 MILES
Every thing else is fine. Could it be a faulty airbag clock spring?
Wednesday, December 11th, 2019 AT 12:50 PM

8 Replies

Tiny
KASEKENNY
  • MECHANIC
  • 18,907 POSTS
This could be a clock spring issue but let's clarify what the issue is. We you press the On Off button, is there an indicator that turns on like normal and it just doesn't set the speed? Or does the system not even turn on?

The next thing we need to do is check for codes. More than likely you have a code indicating what the issue is.
Was this
answer
helpful?
Yes
No
Thursday, December 12th, 2019 AT 4:19 PM
Tiny
KEN L
  • MASTER CERTIFIED MECHANIC
  • 55,322 POSTS
Yes, the clock springs go out causing this issue all the time. Here is a guide to help you step by step with instructions in the diagrams below to show you how on your car:

https://www.2carpros.com/articles/steering-wheel-clock-spring-removal

and

https://www.2carpros.com/articles/steering-wheel-removal

Check out the diagrams (below). Please let us know if you need anything else to get the problem fixed.

Was this
answer
helpful?
Yes
No
Thursday, December 12th, 2019 AT 4:19 PM
Tiny
TOUGHDIVER
  • MECHANIC
  • 224 POSTS
Hi,

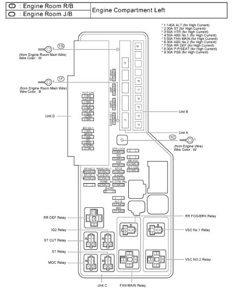
It could be history trouble in the ECU, The cruise control will not function with emission code is present in the module. Have some with a diagnostic tool to clear all the codes in all the modules. Make sure when you set cruise control, You push the button at the end and press down on the stalk to set. I would start there and than check fuses and relays. I am sending links below for fuse box details. Please let us know if this information helped and what fixed it.

Thank you,
Joe Terwilliger
Was this
answer
helpful?
Yes
No
+1
Thursday, December 12th, 2019 AT 4:57 PM
Tiny
JIS001
  • MECHANIC
  • 3,412 POSTS
Do you have any warning lights on? Also as stated earlier, do a system scan for codes. If you have a faulty brake switch then that will cause the cruise control to not operate.

If you have the dynamic cruise control system with radar where the speed adapts to the vehicle in front of you then I would ask if you your vehicle has been in an accident in the front? If it has and you had a bumper repair then the millimeter wave radar would need to be calibrated. If you had the windshield replaced you would also need the camera calibrated. Very sensitive components on these vehicles. So a full system scan is needed to see what is happening.
Was this
answer
helpful?
Yes
No
+1
Thursday, December 12th, 2019 AT 9:23 PM
Tiny
BILLLEXUS
  • MEMBER
  • 3 POSTS
I took it to a mechanic and he diagnosed the clock spring. Yikes $500.00 for part alone here in Canada. No warning lights nor no code.
Was this
answer
helpful?
Yes
No
Friday, December 13th, 2019 AT 12:13 AM
Tiny
KEN L
  • MASTER CERTIFIED MECHANIC
  • 55,322 POSTS
Hmm, here is one one amazon for $24.00 not sure of the quality but there has got to be something in the middle. Try Rockauto as well.

https://www.amazon.com/gp/product/B082PNVDJL/ref=as_li_qf_asin_il_tl?ie=UTF8&tag=2carprcom-20&creative=9325&linkCode=as2&creativeASIN=B082PNVDJL&linkId=3df909e641cecb1422112babba25759a

Let me know.
Was this
answer
helpful?
Yes
No
+1
Friday, December 13th, 2019 AT 11:15 AM
Tiny
BILLLEXUS
  • MEMBER
  • 3 POSTS
Thanks again for help. I get confused as to what will work for the Lexus. I am of the understanding that the clock spring is the same for 2007 and 2008 models. Rock auto only has 1 clock spring available for the 2007 model at around $257.00. There are 3 models available for the 2008 year model with the 127 option stating it would not work with autos with audio controls on steering wheel which my vehicle has.
I would hate to buy a unit and lose my audio on steering wheel. Mind you the costs makes rolling the dice very attractive.
Thanks again for everyone's help. I appreciate it.
Was this
answer
helpful?
Yes
No
Friday, December 13th, 2019 AT 11:29 AM
Tiny
KEN L
  • MASTER CERTIFIED MECHANIC
  • 55,322 POSTS
No problem, that is what wee are here for, let us know what happens.
Was this
answer
helpful?
Yes
No
+1
Friday, December 13th, 2019 AT 11:35 AM

Please login or register to post a reply.