Saturday, November 28th, 2020 AT 2:56 PM
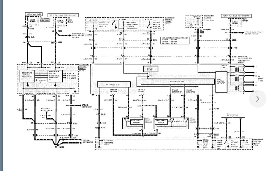
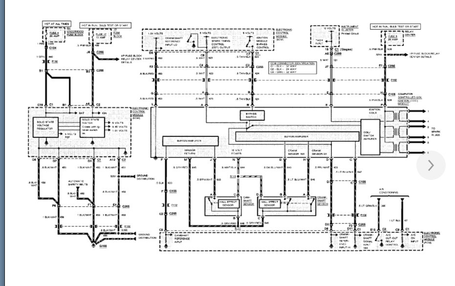
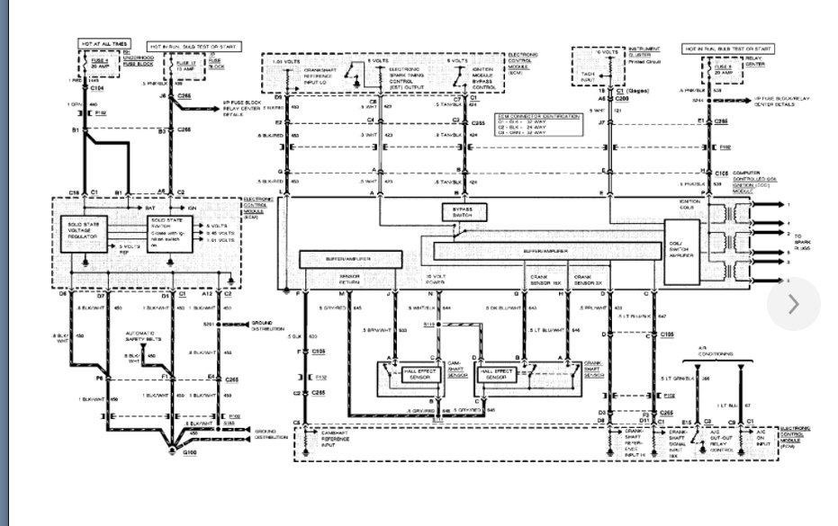
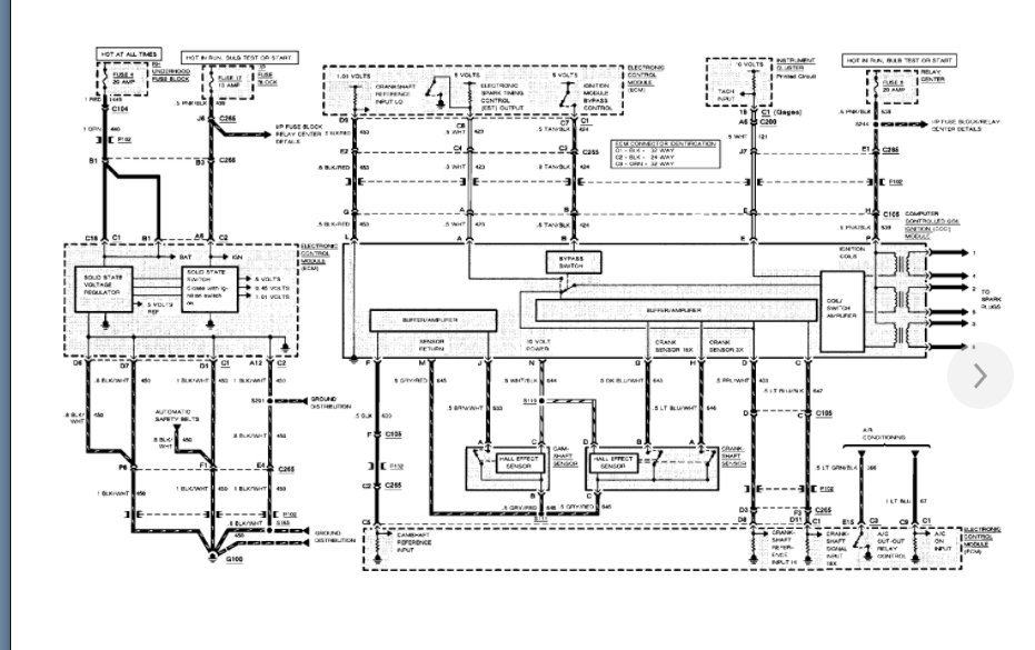
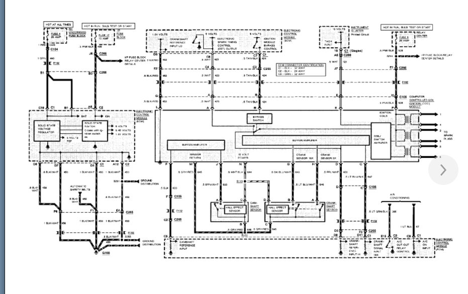
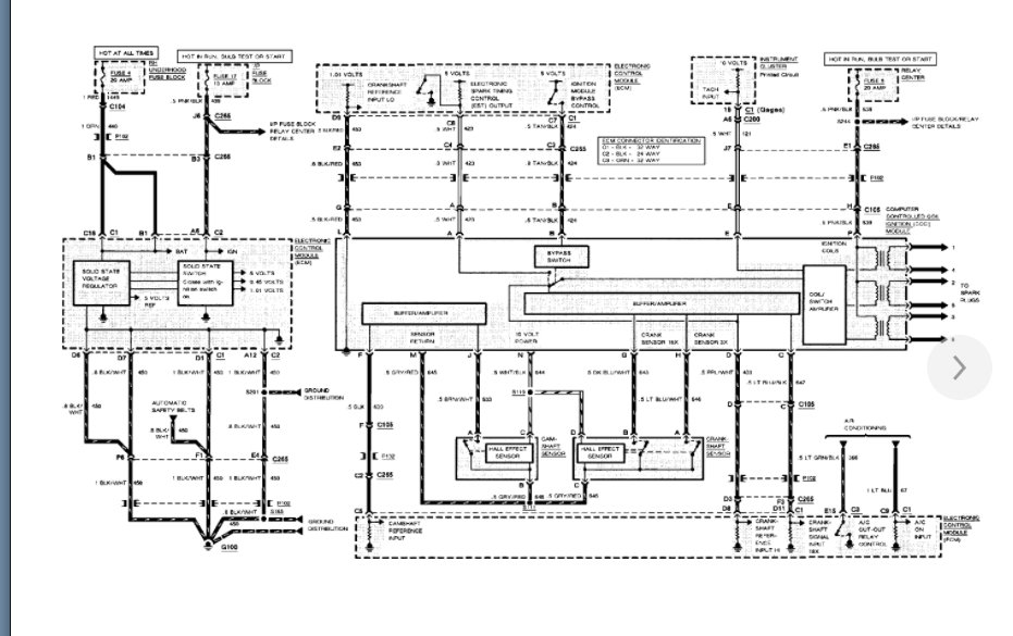
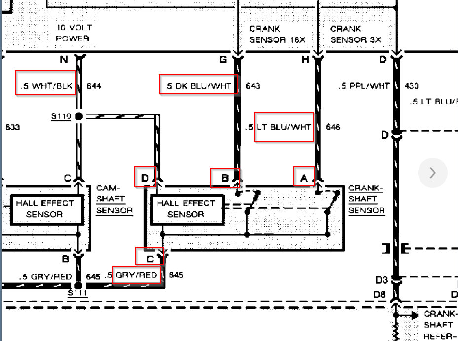
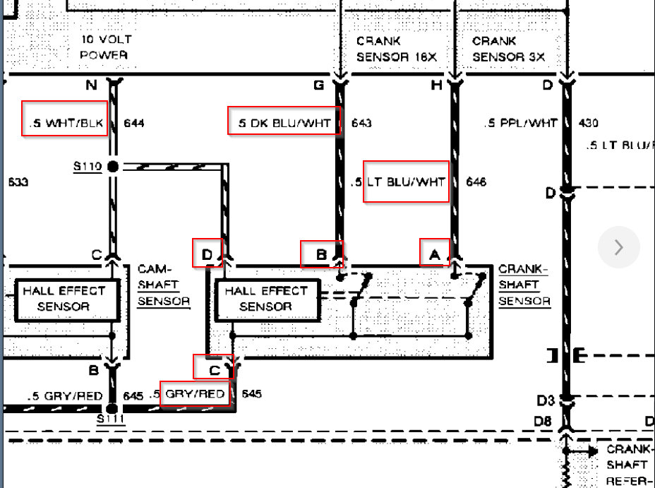
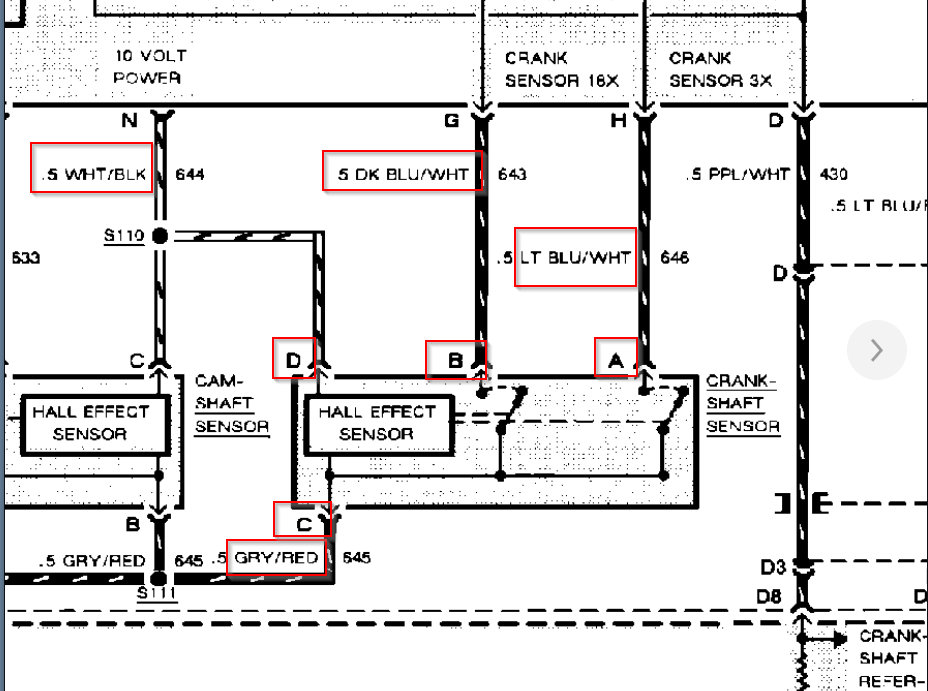
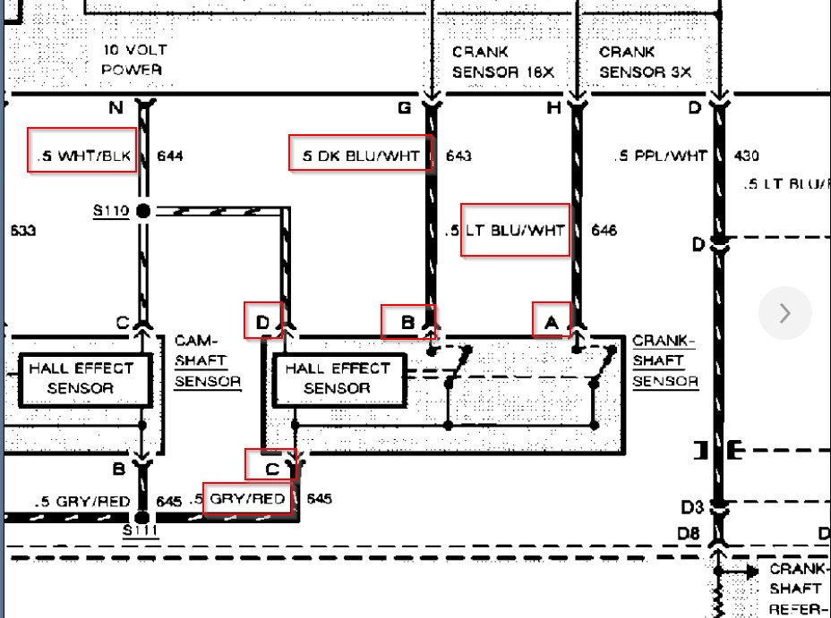
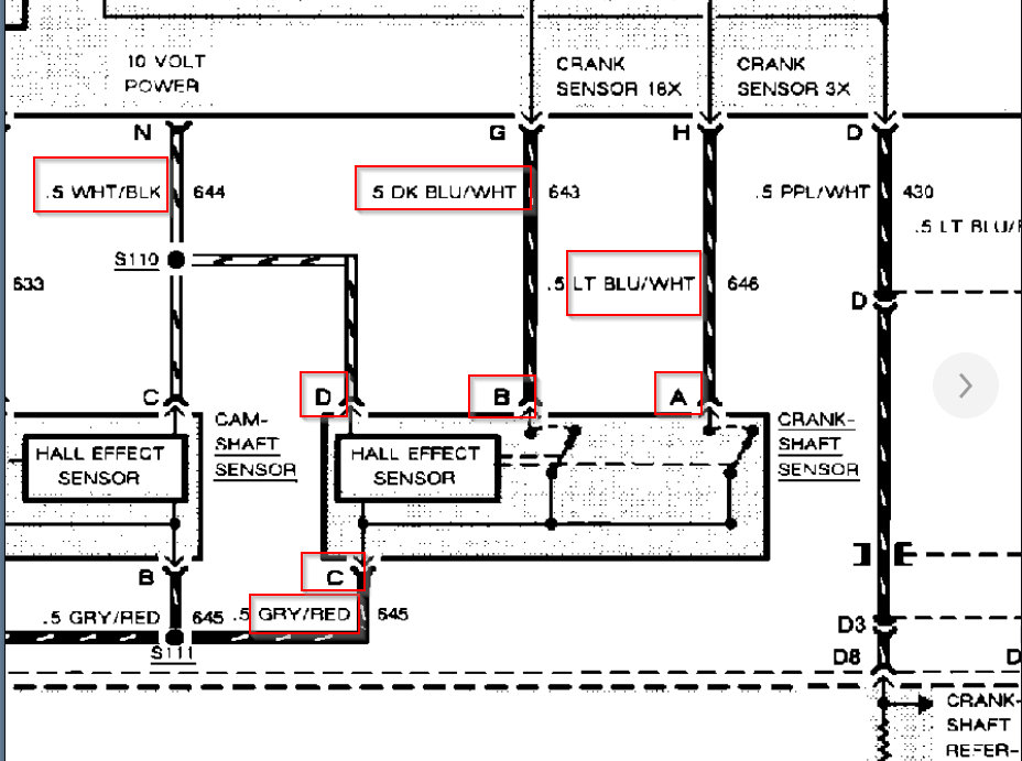
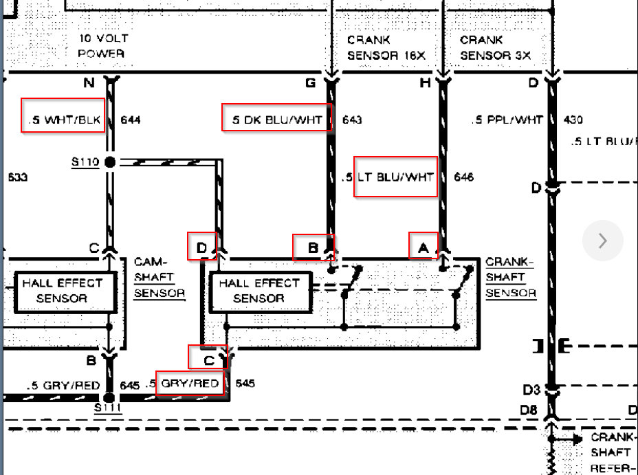
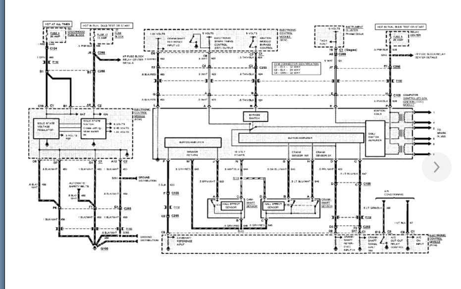
I've the car listed above that has the plug for the crank sensor ripped out. I have replaced the sensor and have a new plug but I don't know what wire goes to which pin on the plug. Can any body help me out with this?


