Convertible top wiring diagram needed

Tiny
CLVRAY13
  • MEMBER
  • 1986 CHEVROLET CAVALIER
  • 100,000 MILES
Hello, I need help with my car listed above convertible. I’m in search of the convertible wire diagrams from fuse box to switch and to pump, thank you !
Tuesday, November 10th, 2020 AT 4:33 PM

13 Replies

Tiny
JACOBANDNICKOLAS
  • MECHANIC
  • 110,192 POSTS
Hi,

Because of the model year, my information is somewhat limited. However, I was able to find a schematic from General Motors. Take a look through it and let me know if it helps.

Let me know if you have other questions,

Take care,
Joe
Was this
answer
helpful?
Yes
No
+3
Tuesday, November 10th, 2020 AT 5:18 PM
Tiny
CLVRAY13
  • MEMBER
  • 8 POSTS
Hello Joe, thank you for the fast reply. I also notice that there’s a pink color wire that comes out of the circuit breaker. Does that goes to the battery?
Was this
answer
helpful?
Yes
No
Tuesday, November 10th, 2020 AT 7:10 PM
Tiny
JACOBANDNICKOLAS
  • MECHANIC
  • 110,192 POSTS
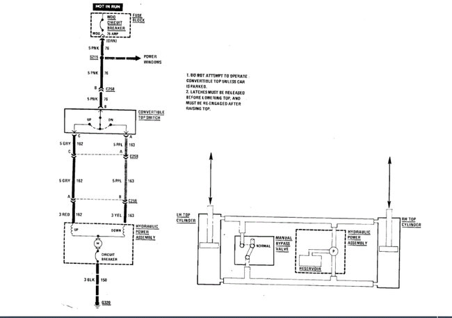
According to the schematic, that is what powers the convertible top switch (pink wire). If that was the power to the circuit breaker, the circuit breaker would be bypassed because the power would go directly to the switch and bypass the protector. (See pic 1)

Here is what I need you to try: Where the connector came from (purple wires) probe the connection to see if there is power to either of them. I suspect there won't be because in the schematic, it shows purple going to the motor.

Where did you cut that wire from?

Let me know.
Joe
Was this
answer
helpful?
Yes
No
Tuesday, November 10th, 2020 AT 9:10 PM
Tiny
CLVRAY13
  • MEMBER
  • 8 POSTS
Hello Joe, it looks like in this occasion the orange cable gets plug in into the 25amp fuse box and the grey and purple into the circuit breaker and breaker to pump right just not sure about the pink cable. I cut them off of another Cavalier not knowing or even bothering to know how to plug them in. My bad.
Was this
answer
helpful?
Yes
No
Wednesday, November 11th, 2020 AT 8:49 AM
Tiny
JACOBANDNICKOLAS
  • MECHANIC
  • 110,192 POSTS
Are any of those wires still intact on your vehicle? And no you're not bad. LOL, I would have likely done the same thing.

I can't be sure with what I'm seeing. Is the orange cable (in your last pic) possibly pink? Again, the schematic shows power into a pink (which I guess could be orange) and then out to the motor being purple/gray.

If I had pic 1 from above, I would say the pink wire runs to the switch (you indicated orange in this case), and then based on the position of the switch, power would be distributed to the purple or gray wire from the switch.

By any chance, could the vehicle you got the parts from have been a different model year?

Joe
Was this
answer
helpful?
Yes
No
Wednesday, November 11th, 2020 AT 2:23 PM
Tiny
CLVRAY13
  • MEMBER
  • 8 POSTS
Hello Joe,

Thank you for all the feed back. I ended up plugging the orange cable into the fuse box to a 25 amp the gray and purple to the circuit breaker from there to the pump and also the pink I ran into the fuse box to a 30 amp fuse not really knowing lol and guess what it work ! Thank you buddy for helping me with the feed back. It really put a lot of sense to what I was doing. I hope that if I ever run into another problem I can contact you. Be safe out there! Thank you !
Was this
answer
helpful?
Yes
No
Thursday, November 12th, 2020 AT 8:40 AM
Tiny
JACOBANDNICKOLAS
  • MECHANIC
  • 110,192 POSTS
Hi,

Sometimes the best way to figure it out is doing exactly what you did. LOL Good job.

Please feel free to come back anytime in the future. You are always welcome.

Take care of yourself!

Joe
Was this
answer
helpful?
Yes
No
+2
Thursday, November 12th, 2020 AT 6:42 PM
Tiny
CLVRAY13
  • MEMBER
  • 8 POSTS
Hello Joe are you there?
Was this
answer
helpful?
Yes
No
Thursday, February 9th, 2023 AT 12:02 PM
Tiny
CLVRAY13
  • MEMBER
  • 8 POSTS
My bad Jacob !
Was this
answer
helpful?
Yes
No
Thursday, February 9th, 2023 AT 12:03 PM
Tiny
CLVRAY13
  • MEMBER
  • 8 POSTS
Need your help on a diagram for the 4 windows on the car listed above.
Was this
answer
helpful?
Yes
No
Thursday, February 9th, 2023 AT 12:05 PM
Tiny
JACOBANDNICKOLAS
  • MECHANIC
  • 110,192 POSTS
Hi,

Yep, still here. LOL Jacob and Nickolas are my sons. LOL

What can I do to help?

Joe
Was this
answer
helpful?
Yes
No
Thursday, February 9th, 2023 AT 5:48 PM
Tiny
CLVRAY13
  • MEMBER
  • 8 POSTS
Yes, brother is a convertible, but I need to get all windows working so yes, I need a diagram to run all the electrical.
Was this
answer
helpful?
Yes
No
Thursday, February 9th, 2023 AT 7:04 PM
Tiny
JACOBANDNICKOLAS
  • MECHANIC
  • 110,192 POSTS
Hi,

I attached the schematic for the power windows/convertible top. Take a look through them and let me know if it helps.

Also, ignore the black line through them. I'm not sure why it's even there.

Take care,

Joe

See pic below.
Was this
answer
helpful?
Yes
No
Thursday, February 9th, 2023 AT 7:50 PM

Please login or register to post a reply.