Constantly blowing heat

Tiny
MARKISSYRILLUS
  • MEMBER
  • 1990 FORD F-350
  • 7.2L
  • V8
  • TURBO
  • 4WD
  • MANUAL
  • 330,000 MILES
I have several problems with my truck but I will start with two. First it constantly blows heat, after it warms up, even when the heater is turned off. The truck is at running temperature and I have already replaced the thermostat. This is a diesel are they supposed to run this hot?

The other problem I want to address right now is the blower motor for the heater does not work. It will blow heat but wont push it out in the winter. Where should I start looking before winter hits again?
Tuesday, August 25th, 2020 AT 2:30 PM

5 Replies

Tiny
JACOBANDNICKOLAS
  • MECHANIC
  • 110,194 POSTS
Hi,

The idea that you can't turn the heat off sounds related to what is called the blend air door actuator. This actuator is responsible for the air temperature entering the vehicle.

If I remember correctly, on this year and model, it is controlled by a cable. When you try to change the temp from hot to cold or opposite, do you feel resistance in the slide? If you look at the attached pic, I highlighted where the cable is mentioned. Start by checking to make sure that cable is not broken, disconnected, or loose.

_____________________

As far as the blower, first to check if there is power to it. It is located under the hood and mounted on the fire wall of the vehicle.

At the motor, there should be two wires. One is ground and the other is power. Check for both power at one and for continuity to ground on the other.

______________________

If you have power and ground, here are the directions for replacement:

1990 Ford Truck F 350 4WD Pickup V8-7.3L DSL
Blower Motor
Vehicle Heating and Air Conditioning Blower Motor Service and Repair Procedures Blower Motor
BLOWER MOTOR

1. Disconnect battery ground cable.
2. On California models, remove emission module forward of blower motor.
3. Disconnect electrical connector and cooling tube from blower motor.
4. Remove blower motor and wheel attaching screws.

Fig. 27 Disassembled view of blower motor & wheel assembly

Pic 2

5. Move cooling tube aside and carefully remove blower motor assembly from vehicle, Fig. 27.
6. Reverse procedure to install.

With Air Conditioning
1. Disconnect battery ground cable.
2. Disconnect air cooling tube and electrical connector from blower motor.
3. Remove blower motor attaching screws and the blower motor assembly.
4. Reverse procedure to install.

__________________________

Let me know if that helps. Also, let me know if the blower motor works on any speed. For example, if it only works on the high setting.

Take care,
Joe
Was this
answer
helpful?
Yes
No
Tuesday, August 25th, 2020 AT 6:13 PM
Tiny
MARKISSYRILLUS
  • MEMBER
  • 7 POSTS
Hi there,

As far as the temperature control it clicks as you turn it. I am not sure how to reach the cable. Do I need to take apart the dash?

The blower motor has a plug. But I should get power from testing inside the plug but I have nothing. What next?

Thanks for your help. Hope to hear from you soon.
Was this
answer
helpful?
Yes
No
Thursday, August 27th, 2020 AT 3:43 PM
Tiny
JACOBANDNICKOLAS
  • MECHANIC
  • 110,194 POSTS
Hi,

As far as the cable, look under the dash where the control unit is located and follow the cable to the blend door to see if it is moving.

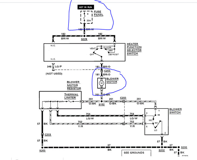
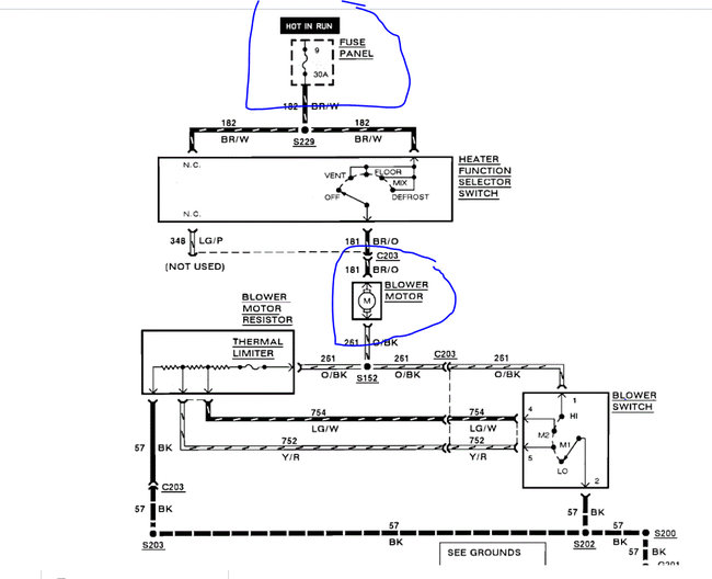
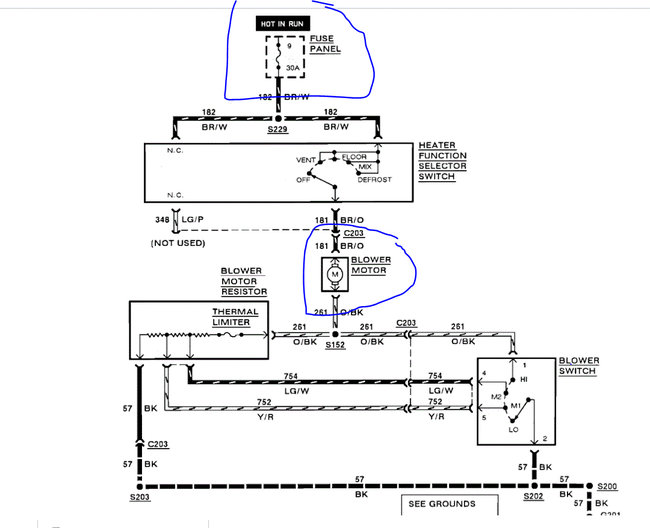
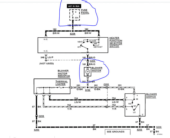
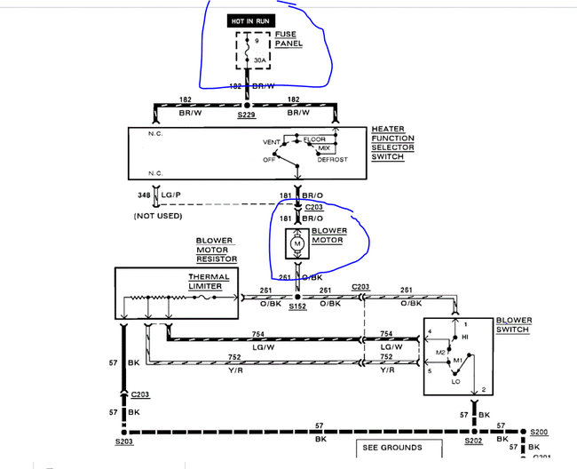
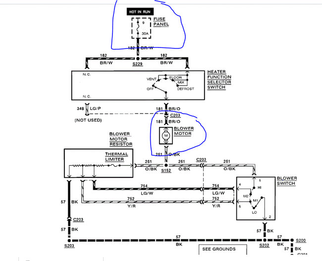
If you have no power to the blower motor, first check fuse 9 in the fuse panel. If there it is good, confirm there is power to it. If there is, move to the brown wire with the orange tracer and see if there is power to it at the motor.

See the attached pic.

Let me know.
Joe
Was this
answer
helpful?
Yes
No
+1
Thursday, August 27th, 2020 AT 8:36 PM
Tiny
MARKISSYRILLUS
  • MEMBER
  • 7 POSTS
Hi Joe

So there does not seem to be a cable to switch hot to cold. But I did switch it to where the cable should go. Its no longer blowing heat. I wonder if you can give me a part number for that please.

The blower motor has power. The fuse has power. So I would imagine I need to find the resistor. So if u have a diagram for that I would appreciate it. But it also makes me wonder if its the switch to turn it on. A lot of bare plug ins under the dash. One of them was plugged in but not all the way. When plugged it in all the way there was nothing.

Thanks again.

Mark
Was this
answer
helpful?
Yes
No
Friday, August 28th, 2020 AT 10:50 PM
Tiny
JACOBANDNICKOLAS
  • MECHANIC
  • 110,194 POSTS
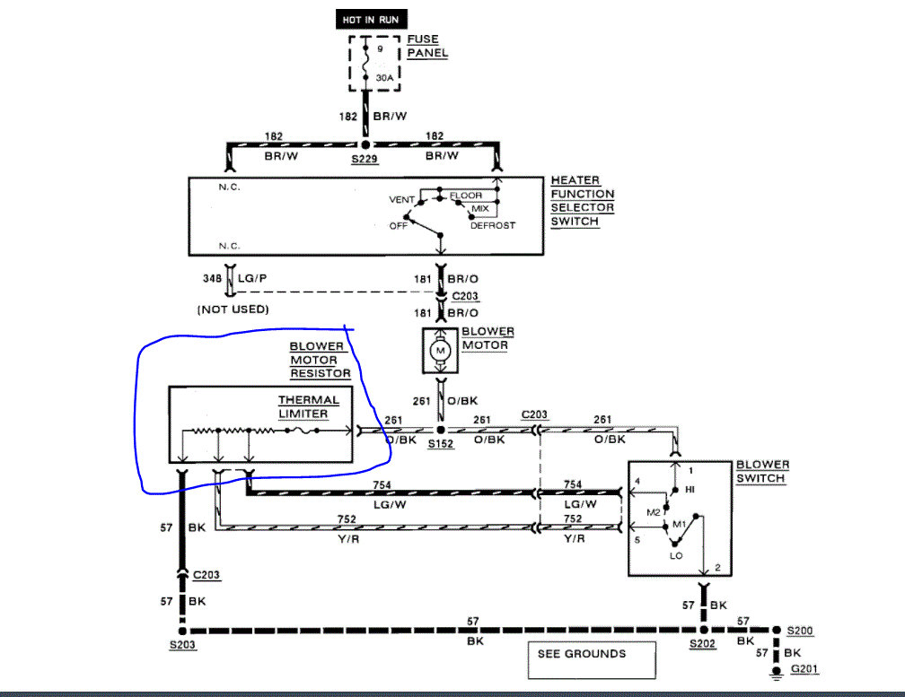
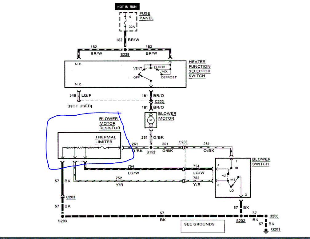
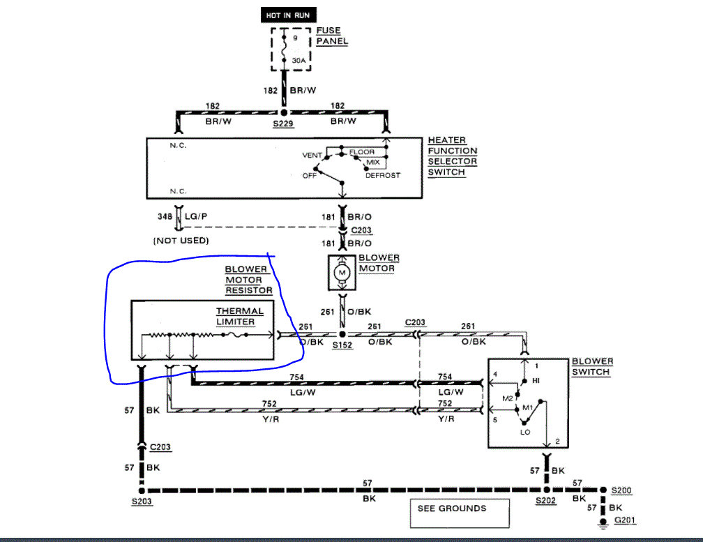
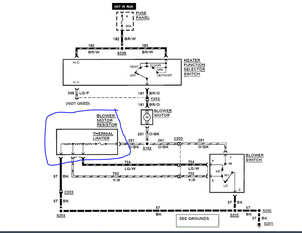
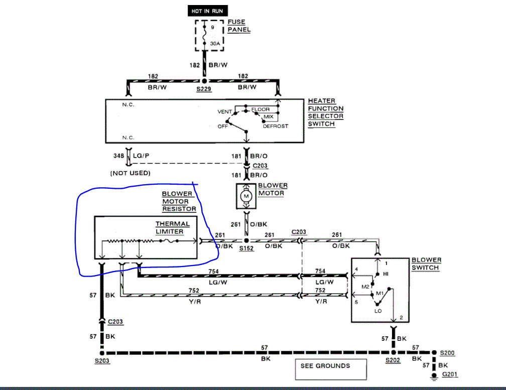
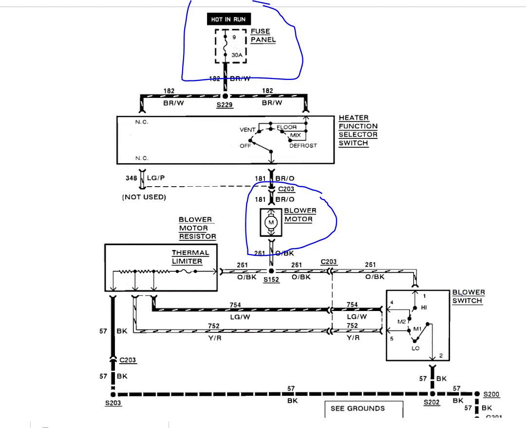
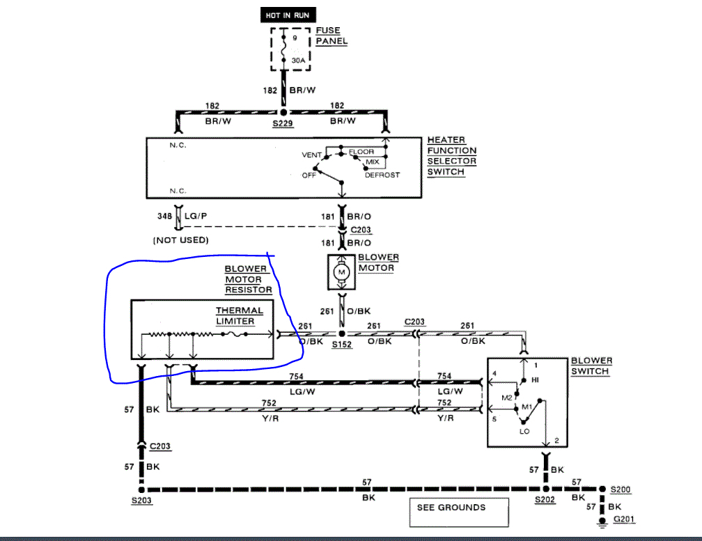
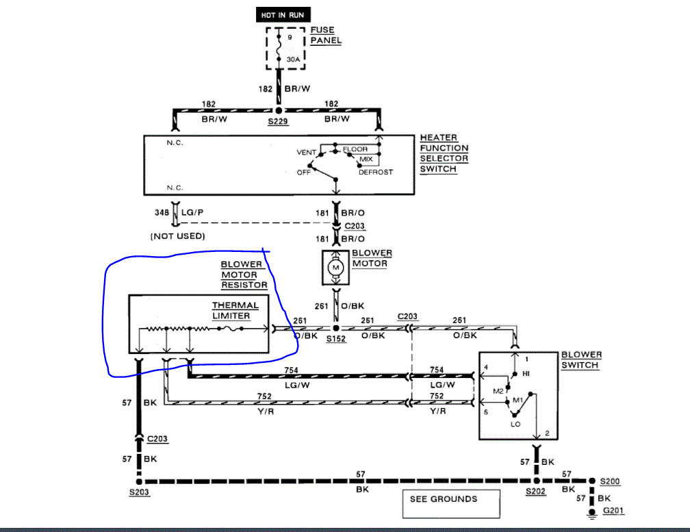
Mark,

I attached two pics below. The first one is the wiring schematic for the blower motor/resister. The second one is for the resister location. Note that the manual indicates three possible locations.

Which part number are you referring to?

Let me know.
Joe
Was this
answer
helpful?
Yes
No
Saturday, August 29th, 2020 AT 2:20 PM

Please login or register to post a reply.