Codes and drivability?

Tiny
CMAC9823
  • MEMBER
  • 2009 CHEVROLET TRAVERSE
  • 3.6L
  • 6 CYL
  • 2WD
  • AUTOMATIC
  • 210,000 MILES
Bought the car yesterday, test drove, engine purred, drove 30 miles home, engine purred, went to drive my son home, accelerating from a stop and suddenly acts weird, message displays traction control off, Stabil Trak off and reduced power. Went into limp mode and shut her down. Restarted, went into limp mode. The mechanic is 1/2 mile away, restarted to limp there, ran great but Stabil Trak still out. Mechanic said: needs a timing chain kit, converters, throttle body injection unit. Codes were:
Codes: P0420-P0430 Both converters
PO0017 (Crank shaft sensor)
P003 Engine position system bank 1
P0121 Throttle body position sensor P0221, P02101
P2138 Throttle Body
P0335 Crank Shaft Sensor P0339 Trans fluid
P0698 SV LOW VOLTAGE SENSOR

Here is the question, I had someone else (the dealer that sold me the car) that a Chevy mechanic told him to concentrate on P0698 first because it can cause the other codes. Is This correct?
Wednesday, October 30th, 2024 AT 2:32 PM

3 Replies

Tiny
AL514
  • MECHANIC
  • 5,596 POSTS
Hello, yes absolutely, go after the reference voltage code first, I will explain why and show a diagram for an example. The 5volt reference can affect any sensors using that same reference voltage, and many sensors will share the same voltage regulator inside the PCM. Always get a second opinion, sounds like someone just wanted to take your money.
Was this
answer
helpful?
Yes
No
Thursday, October 31st, 2024 AT 10:40 AM
Tiny
AL514
  • MECHANIC
  • 5,596 POSTS
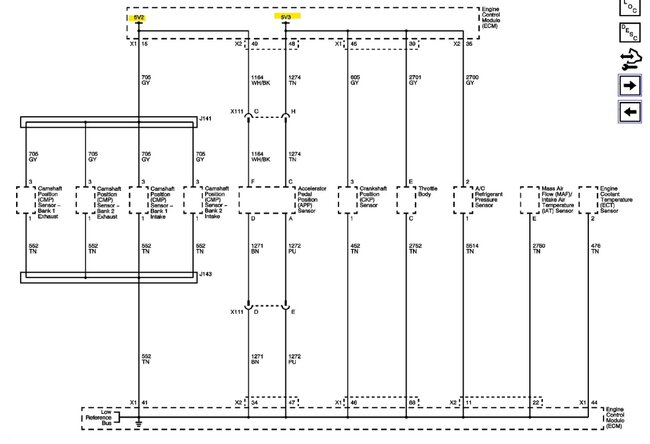
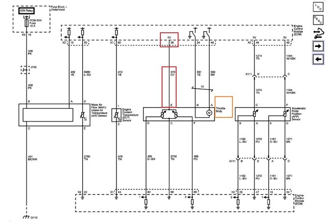
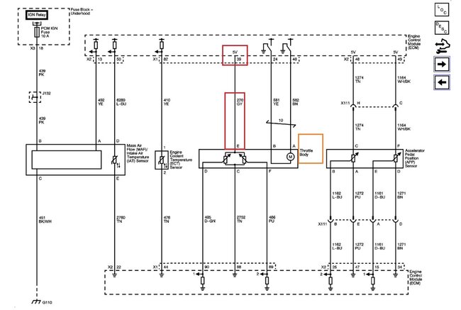
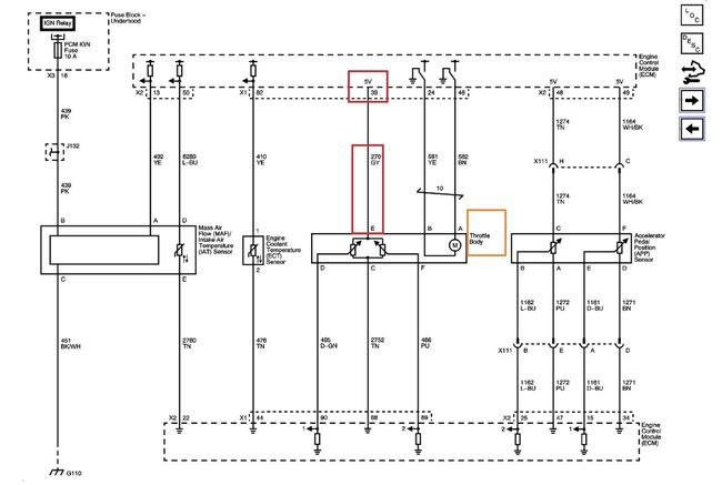
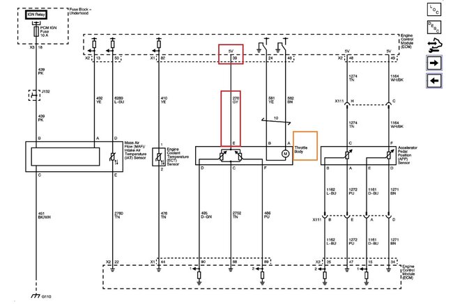
So, these are the OEM manufacturer diagrams of just the 5volt Reference circuits, you'll notice some are marked as 5vRef 1, 2, or 3, and in the first diagram it's just labelled 5v. Also in the first diagram where I put an orange slash, those sensors also use a 5volt reference, but since they are temperature sensors the 5volt feed is effected by the temperature of the sensor and that's how the PCM knows what temp they are reading, so to check these for 5 volts you would have to unplug the sensor, Thermistors (temperature sensors) are a bit more confusing to understand, so for now just concentrate on all the other sensors that use these reference voltages.
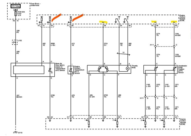
Diagram 3 with 5V3 (5volt Reference #3) is the one you want to check, almost every code that is setting, so the Crankshaft/ camshaft position correlation code P0017, Throttle body position (TPS) P0121 P0221, Throttle Actuator P2101, the P2138 I am almost positive that is an APP code (Accelerator Pedal Position sensor) I had one of those just a couple days ago and the rest of these except for the Catalytic Converter codes, can all be caused by something effecting the 5volt reference feed to these sensors, even though they are listed as 1,2 ,3 etc., they can be shared internally in some cases inside the PCM.
Now a shorted-out sensor (so anyone of these sensors) can pull down or affect the 5v feed. So, it's best to back probe one of the sensors setting a code and monitor the 5volts, if it is low or reading 0volts, start unplugging sensors until it comes back up to 5-volts.

Since the easiest to get to is the throttle body in most cases, (4th diagram) using a T pin or back probing pin, on the Grey wire at the throttle body is the 5vRef, with the key On, engine Off, red meter lead on the Grey wire and black meter lead on Battery negative. Check to see if that reference is a full 5volts. Or if you're not comfortable back probing the connector have someone check it for you, but don't let them start pulling the engine apart, all these sensors need to be checked, because these could just be a bad sensor or simple wiring issue.

https://www.2carpros.com/articles/how-to-use-a-voltmeter
Was this
answer
helpful?
Yes
No
+1
Thursday, October 31st, 2024 AT 11:25 AM
Tiny
AL514
  • MECHANIC
  • 5,596 POSTS
If you need help checking the 5volt reference circuits, we can talk you through it, you will just need a basic multimeter and some back probing pins. It's actually a very basic check to do, and if a 5vRef is shorted to ground, it will prevent the engine computer (PCM) from functioning, the reference circuits are protected circuits inside the PCM so if one happens to be shorted to ground or power (12volt) it should not damage the computer. They are designed in a way that prevents damage if a sensor or wire shorts out.
Was this
answer
helpful?
Yes
No
Friday, November 1st, 2024 AT 8:59 AM

Please login or register to post a reply.