Cigarette lighters not working

Tiny
SHELLY WILDT BRADLEY
  • MEMBER
  • 1999 CHRYSLER TOWN AND COUNTRY
  • 3.8L
  • 6 CYL
  • 2WD
  • AUTOMATIC
  • 200,000 MILES
Cannot find fuse or relay not even sure which one looking for it is not one under dash. Can you help or do you have a fuse diagram n description? Help please! Was also wondering if it could be related to radiator fan not working properly?
Saturday, May 20th, 2017 AT 10:32 AM

1 Reply

Tiny
CARADIODOC
  • MECHANIC
  • 34,491 POSTS
First check if the rear lighter is working. If it is, most likely the front socket is defective. It has a thermal cutout for safety that can develop a bad contact.

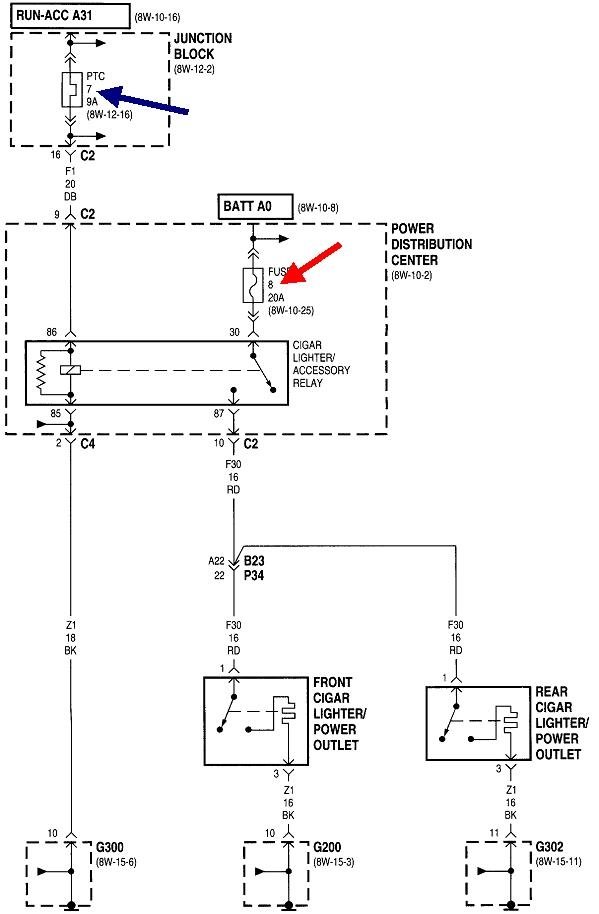
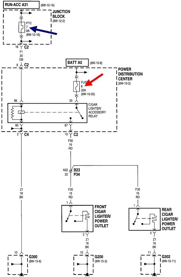
If both sockets are dead, there is a fuse that protects both of them. That's fuse # 8, a yellow 20-amp shown by the red arrow in the first diagram. The green arrow is pointing to it in the third drawing. That's for the Power Distribution Center, (PDC) / under-hood fuse box next to the battery. This article shows how to check fuses:

https://www.2carpros.com/articles/how-to-check-a-car-fuse

If the fuse is okay, try swapping the "lighter / accessory" relay, (pink arrow in the third drawing), with one of the other ones like it.

This system is also protected by a "positive temperature coefficient", (PTC). Those are a semiconductor device that will go open circuit just like a fuse would do if their current rating is exceeded, but they reset instantly when the overload is removed. They're soldered in to the fuse box, and rarely fail. If you haven't found the problem by this time, we'll need to do some voltage tests to solve this. By far the most common failure is a blown fuse # 8 due to using the socket to power something other than a lighter element. The plug's outer ground contact can touch the socket's 12-volt terminal if it is inserted just the right way.
Was this
answer
helpful?
Yes
No
Friday, January 14th, 2022 AT 5:28 PM

Please login or register to post a reply.