Radio fuse location

Tiny
ANNE FERNANDEZ
  • MEMBER
  • 2005 CHRYSLER TOWN AND COUNTRY
My radio stopped working out of the blue. The clock will stay on for a few seconds if I push the "time" button, but otherwise does not show. Also the cigarette lighter/charger outlet does not work.
Friday, September 12th, 2008 AT 12:45 PM

11 Replies

Tiny
JACOBANDNICKOLAS
  • MECHANIC
  • 110,194 POSTS
Hi.

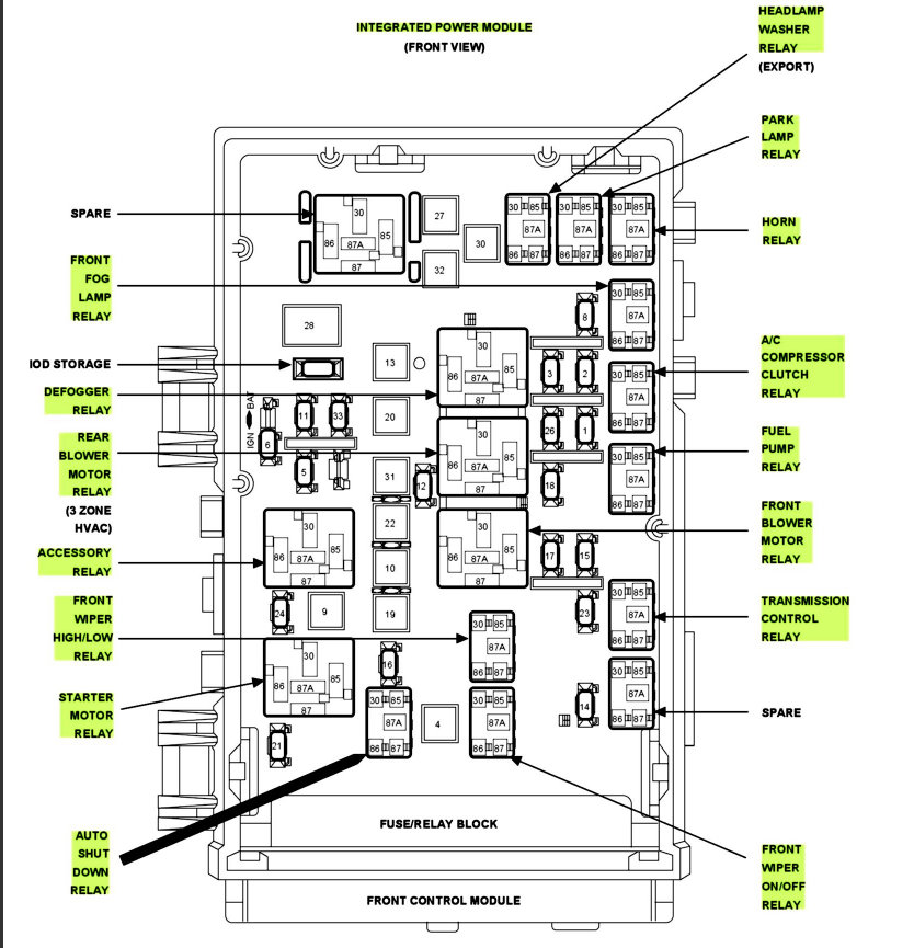
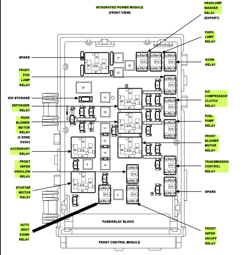
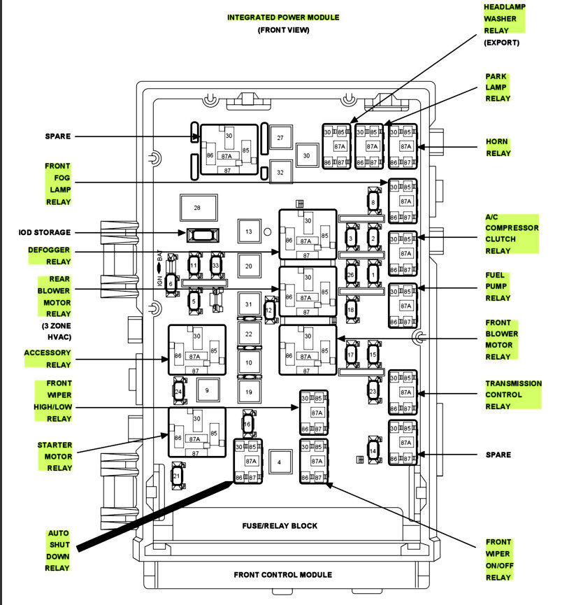
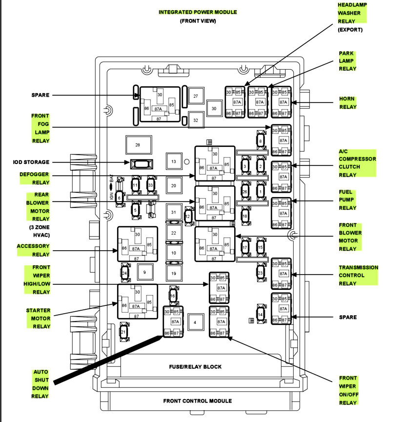
Here is a guide to help you check the fuses and the fuse locations for fuse # 14, 5 and 20 depending on which radio you have. Here are the radio wiring diagrams as well so you can see how the system works, below:

https://www.2carpros.com/articles/how-to-check-a-car-fuse

Check out the diagrams (below). Please let us know if you need anything else to get the problem fixed.

Cheers, Joe
Was this
answer
helpful?
Yes
No
+3
Monday, October 6th, 2008 AT 1:48 PM
Tiny
ANNE FERNANDEZ
  • MEMBER
  • 2 POSTS
I have already looked at the owner's manual, but it does not say a thing about the fuses for the radio. It lists everything else in the car except the radio. We have looked under the hood and found the ones in the diagrams thanks! All fixed!
Was this
answer
helpful?
Yes
No
+6
Monday, October 6th, 2008 AT 4:56 PM
Tiny
JACOBANDNICKOLAS
  • MECHANIC
  • 110,194 POSTS
Good to hear, please use 2CarPros anytime we are here to help.

Cheers
Was this
answer
helpful?
Yes
No
+1
Monday, October 6th, 2008 AT 7:54 PM
Tiny
PCC_CHI
  • MEMBER
  • 1 POST
I was suffering the same problem. It is the fuse #20 :)

Regards, Pablo.
Was this
answer
helpful?
Yes
No
+5
Saturday, January 3rd, 2009 AT 7:46 PM
Tiny
ROBERT J
  • MEMBER
  • 3 POSTS
  • 2001 CHRYSLER TOWN AND COUNTRY
  • 6 CYL
  • FWD
  • AUTOMATIC
  • 52,039 MILES
After changing dead battery the radio is not working. Three lights on the three
equalizers keep flashing with radio in on or off position. How do I reprogram the radio? I tried disconnecting the battery three times. I pulled and changed interior light fuse.
No fuse is marked for radio under the hood.
Was this
answer
helpful?
Yes
No
+2
Monday, September 10th, 2018 AT 4:06 PM (Merged)
Tiny
RASMATAZ
  • MECHANIC
  • 75,992 POSTS
You probably need to go to the dealership and have them reset it.
Was this
answer
helpful?
Yes
No
Monday, September 10th, 2018 AT 4:06 PM (Merged)
Tiny
CARADIODOC
  • MECHANIC
  • 34,491 POSTS
Hi guys.

The radio broke down a long time ago, but the problem will not show up until memory power is removed as in replacing the battery. If you have the cassette model 56038518 or the CD model that ends with "67", these are built by Chrysler with a microprocessor built by North American Philips, (NAP), the same people who build the really crappy Magnavox and PhilipsTV's. All microprocessors in all electronic equipment have a "reset" circuit that sets the millions of transistors to their starting point, (on or off), rather than letting them start from some jumbled random state. That reset circuit only operates for a few milliseconds when power is first applied. After that, its job is done and it will not operate again until the next time the radio is unplugged, the battery is disconnected or run dead, or the interior lights fuse is replaced. That fuse is the memory circuit for the radio. Once the radio is up and running, that reset circuit can fail and you will never know it.

The most common problem is the three yellow leds in the tone controls blink about once per second and you hear a thump in the speakers at the same time. There is a list of about a dozen other things that go wrong, all related to the microprocessor. Some radios go out for five seconds after moving the volume control. On some the sound will quit when you move a tone control and will not come back until you turn the radio off and back on. Sometimes the stations will not change when you try to tune to a new one. This mostly affects the radios with the three lighted tone controls but there are some models with two non-lighted tone controls that are also affected.

A lot of mechanics are falsely accused of damaging these radios because the problem shows up right after they performed any service that requires the battery to be disconnected.

There are two models built by Mitsubishi that are direct replacements and are real high quality. They look the same, mount the same, have the same lighted tone controls, and will run the same remote cd changer if you have one. The cassette model has one extra button for "scan". These radios weigh about three times more than the Chrysler-built models. They were only used for one year in only a few car models so they are kind of hard to find. They are in demand by used car dealers to replace non-working radios in their cars. I have some of all three, the cassette model, CD model, and the combo units.

Caradiodoc
Was this
answer
helpful?
Yes
No
+6
Monday, September 10th, 2018 AT 4:06 PM (Merged)
Tiny
JMARKHAYES
  • MEMBER
  • 1 POST
  • 2005 CHRYSLER TOWN AND COUNTRY
  • 6 CYL
  • FWD
  • AUTOMATIC
  • 62,000 MILES
My radio does not work or the CD player, but the time will display for about five seconds. Can you help?
Was this
answer
helpful?
Yes
No
+2
Tuesday, September 11th, 2018 AT 12:02 PM (Merged)
Tiny
JACOBANDNICKOLAS
  • MECHANIC
  • 110,194 POSTS
Hi.

Chances are something has shorted out in the radio. It will need removed and inspected by a stereo shop to determine if it is repairable.
Was this
answer
helpful?
Yes
No
Tuesday, September 11th, 2018 AT 12:02 PM (Merged)
Tiny
TOWN_COUNTRY
  • MEMBER
  • 1 POST
  • 2005 CHRYSLER TOWN AND COUNTRY
  • 6 CYL
  • FWD
  • AUTOMATIC
  • 56,000 MILES
I had TV's put in it and about a year and a half went by with no problems. Now the volume no longer comes out of the speakers. I was told the radio amplifier went out. Can this part be bought or do I have to replace the entire radio?
Was this
answer
helpful?
Yes
No
+4
Tuesday, September 11th, 2018 AT 12:02 PM (Merged)
Tiny
JACOBANDNICKOLAS
  • MECHANIC
  • 110,194 POSTS
Hi.

Based on what system you have, the amp should be seperate. If you want to keep it factory, go to a dealer. Otherwise, most stereo shops should be able to help you.

Joe
Was this
answer
helpful?
Yes
No
Tuesday, September 11th, 2018 AT 12:02 PM (Merged)

Please login or register to post a reply.