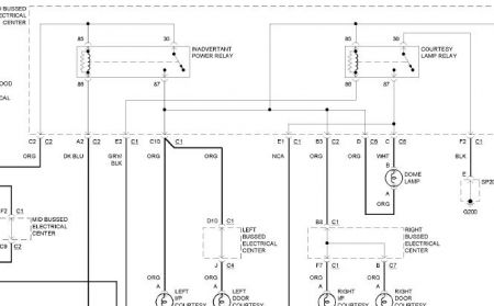
None of my interior lights work and there is a message in the "message center" on the IP that states "Cargo Lamp" on. The cargo lamp is not on. I suspect either a short in the wiring to the cargo lamp or a bad body controller. I have checked fuses etc. And switching the cargo lamp switch on or off makes no difference. Does anyone have a set of wiring diagrams for this vehicles. This will help. Then I can start tracing things and maybe figure this out before I spend WAY more money than justifiable to get it fixed.
Thanks,
Greg
Wednesday, November 18th, 2009 AT 7:29 AM


