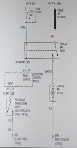
There is also a cooling fan temp switch on the right rear of the engine and a cooling fan relay on the left side of the firewall under the master cylinder, i can check wire color if you need it, i would like to figure out this fan deal before anything, ac and defrost is in off position??? i think were in the right direction , the ecm seems fine, pull connector for temp switch , then check the relay to see if it is working or it is stuck on.there is an a/c pressure switch on the rear of the right fender, wires are black on one side and dark green on the other , the green side feeds signal straight to the ecm and in the ecm there is a relay it goes through and then out to the relay and it splits to a red wire fuseable link on one side and fan mototr on the other
without being there its tough, i really think there is something in this circuit causing your problem, if the ecm somehow thinks the engine is at operating temp it will turn the fan on , this would cause the engine to run rough, but there still may be another problem thats why i would focus on the fan issue first ,
sorry for the long post but this one deserves it
jim

Sunday, February 18th, 2007 AT 7:58 AM