Need to identify brake light power wire on

Tiny
CKAISER
  • MEMBER
  • 1985 BUICK REGAL
  • 6 CYL
  • 2WD
  • AUTOMATIC
  • 130,000 MILES
I have what appears to be an open brake light wire. New brake light switch is good. Voltage present as it should be. Fuse good.

I have narrowed it down to one of 2 wires, but I don't have a wiring diagram. I want to jumper the wire from the switch to the proper wire on the connector, but don't know which one is for the brake lights.

There are 5 wires on the connector. I have identified the turn signal/hazard signal wires. I have also identified the tailight wire. Of the 2 remaining wires, one should be for the brake lights, right?
Wednesday, September 17th, 2008 AT 10:43 AM

13 Replies

Tiny
RASMATAZ
  • MECHANIC
  • 75,992 POSTS
The 2 wires are they dark green and also a yellow wire-if so the dark green is for the right and yellow is for the left brake circuit-Let me know
Was this
answer
helpful?
Yes
No
Wednesday, September 17th, 2008 AT 11:25 AM
Tiny
CKAISER
  • MEMBER
  • 12 POSTS
There are 2 groups of wires on the connector in the trunk. One group of 2 and the other group of 3.

The group of 2 ihas a yellow wire and a Gray, I think, wire. These 2 I've tested and they are the left and right lights for the turn signals and hazard lights.

The 3 wires on the right side of the connector has a brown wire, which I've identified as carrying the voltage for the tailights. That leaves 2 other wires.

One is a light green and the other is a pinkish/red. I don't get any voltage on these 2 wires under any circumstances.
Was this
answer
helpful?
Yes
No
Wednesday, September 17th, 2008 AT 11:57 AM
Tiny
RASMATAZ
  • MECHANIC
  • 75,992 POSTS
Disconnect the brake switch and jumper the connector and see what happens-No brake lights while jumpered-you have an open wire between the switch and light.

The 2 wires left could be the brake circuit though different in colors spliced in together somewhere upfront.
Was this
answer
helpful?
Yes
No
Wednesday, September 17th, 2008 AT 12:08 PM
Tiny
CKAISER
  • MEMBER
  • 12 POSTS
OK, I have no voltage at any of the wires at the connector that's attached to the fuse block, with the brake light switch working perfectly. So I apparently have an open wire from the switch to that connector.

I want to jumper from the switch to the connector to see if the brake lights light up, but I'm afraid of shorting someting out, because, as I said, I don't know which wire on the connector to jumper to.

I don't have access to a wiring diagram, but those 2 wires I was talking about might be the brake circuit wires. Can I do any major damage but quickly jumpering them one at a time?
Was this
answer
helpful?
Yes
No
Wednesday, September 17th, 2008 AT 12:27 PM
Tiny
CKAISER
  • MEMBER
  • 12 POSTS
I know I'm not explaining things clearly enough, and I apologize.

The 5 wires I've been talking about connect to a connector mounted on the left side of the fuse block. Those wires go to the back of the car and have a male connector end, which plugs into the connector that goes to the wiring harness for the tail light assembly.

2 wires on the left of the connector are the turn signal/hazard lights. The brown wire in the group of three is the tailight wire. The last 2 are light green and pinkish.

With the brake light switch on, I get voltage to both sides of the switch, but no voltage at any of the wires on that connector at the fuse block.

I know I need to jumper from the switch to one of those wires, but I don't want to chance damaging anything until I'm reasonably sure of the wire to jumper to. You said the 2 remaining wires, the green and pink ones, could be the brake light wires? Is there just one or 2 brake light wires that go from the front to back of the car?
Was this
answer
helpful?
Yes
No
Wednesday, September 17th, 2008 AT 12:56 PM
Tiny
RASMATAZ
  • MECHANIC
  • 75,992 POSTS
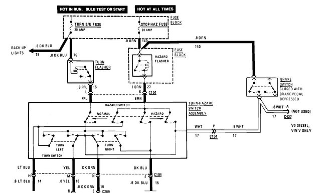
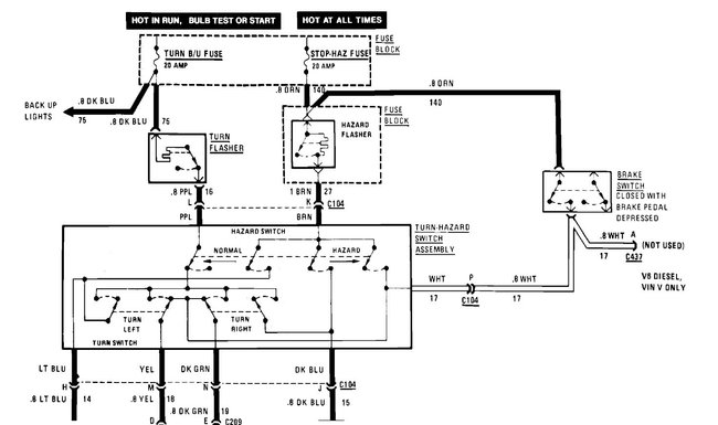
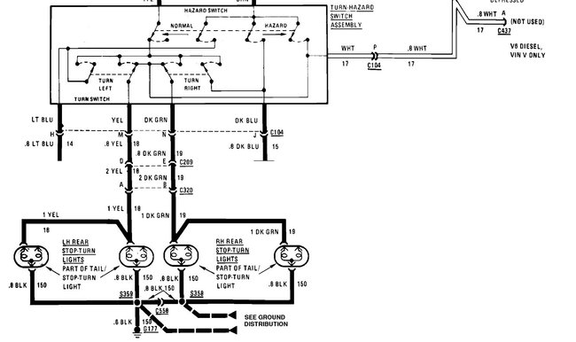
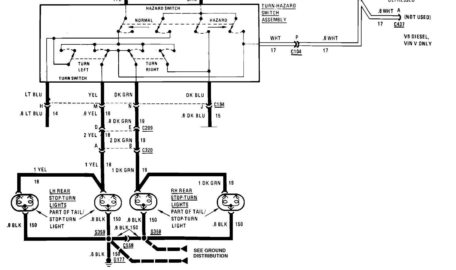
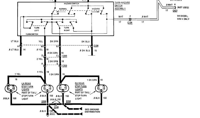
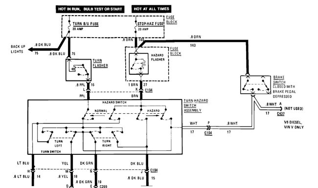
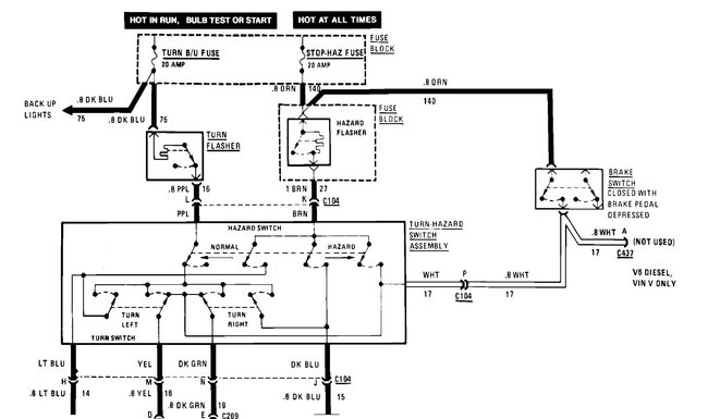
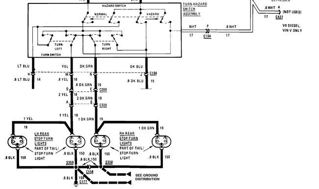
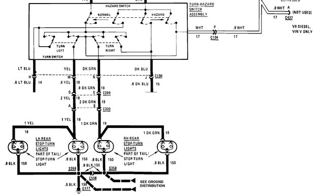
Here's your brake wiring/color does it matches yours?

The group of 2 has a yellow wire and a Gray, I think, wire. These 2 I've tested and they are the left and right lights for the turn signals and hazard lights. The turn and stop lights shares the same filament in the bulb as illustrated in the wiring diagram.

Wiring diagrams are attached below
Was this
answer
helpful?
Yes
No
+1
Wednesday, September 17th, 2008 AT 1:40 PM
Tiny
CKAISER
  • MEMBER
  • 12 POSTS
Looking it over. Where is the break switch and wires from the connector at the fuse block?

That's where I'm going to need to jumper. The wires at the brake light/tailight bulbs are a different color than those going from the connector in the trunk to the connector at the fuse block under the dash.

I appreciate all the trouble you're going through to help me. Thanks.

If I just touch one of those 2 wires I was talking about with a jumper from the brake light switch, if I'm wrong, could I cause damage?

I don't think those 2 wires are ground wires. At least, they don't appear to be.
Was this
answer
helpful?
Yes
No
Wednesday, September 17th, 2008 AT 2:05 PM
Tiny
CKAISER
  • MEMBER
  • 12 POSTS
Those wiring diagrams appear to have power seat and locks circuitry. Mine doesn't have any of that.
Was this
answer
helpful?
Yes
No
Wednesday, September 17th, 2008 AT 2:12 PM
Tiny
RASMATAZ
  • MECHANIC
  • 75,992 POSTS
Looking it over. Where is the break switch and wires from the connector at the fuse block? This one here I don't have that info. I thought you replaced the brake switch with a new one. Okay I'm getting confuse here-count the wires on the brake switch connector and give me the colors on it so I can dig for more info.
Was this
answer
helpful?
Yes
No
Wednesday, September 17th, 2008 AT 2:25 PM
Tiny
CKAISER
  • MEMBER
  • 12 POSTS
I'm sorry if I'm confusing things. Let's see if I can clarify this.

The brake light switch works perfectly. No problem there. Fuse is good. No problem there.

Turn signal lights work. Tailights work. 4 ways work.

Brake lights don't work.

There are only 5 wires that go from a connector on the left side of the fuse block under the dash, that go all the way to the back, inside the trunk, to another connector. The 5 wires from that connector go directly to the tailights, turn signal lights, ect. Of course, the wires are all bundled up and spliced.

Now, I've tested those 5 wires for voltage. 2 of the wires that are on the left side of the connector makes the test light blink when the turn signals are used, as well as the 4 ways, so I know those 2 are ok, and not part of the brake system.

The next wire is a brown one and carries the tailight voltage when the light switch is on. So that one is ok, and not part of the brake circuit, right?

That leaves 2 left. Remember, these 5 wires are the only wires going to the back to the connector that goes to the entire tailight assembly.

That must mean one or both of those 2 wires are for the brake lights, right?

Now, I'm not getting any voltage on either of those wires at the connector at the fuse block, with the brake light switch closed, yet I get voltage on both sides of the switch, which I should.

That means the wire from the switch that goes, somehow to the connector is broken or something. So, I want to bypass that wire to get voltage to the wire or wires on the connector that should be getting the voltage to feed the brake lights.

My problem is, I'm not sure which of those 2 wires, one is light green, and the other is sorta pink, is the one to try to jumper. I don't want to short something out.

I hope you have a clearer picture of what I'm asking for here. Which wire of those 2 should I try, and if I'm wrong, will I short out something, and just blow a fuse, or worse?

Again, please accept my apology for not being clear on this. I'm not that experienced with car wiring. Thanks.

There are 4 wires from the brake light switch. 2 are for the cruise control, so I think I can ignore them. Of course, they are hooked up though. As I said though, the switch works great.
Was this
answer
helpful?
Yes
No
Wednesday, September 17th, 2008 AT 2:58 PM
Tiny
RASMATAZ
  • MECHANIC
  • 75,992 POSTS
That must mean one or both of those 2 wires are for the brake lights, right?

Now, I'm not getting any voltage on either of those wires at the connector at the fuse block, with the brake light switch closed, yet I get voltage on both sides of the switch, which I should.

That means the wire from the switch that goes, somehow to the connector is broken or something. So, I want to bypass that wire to get voltage to the wire or wires on the connector that should be getting the voltage to feed the brake lights.

My problem is, I'm not sure which of those 2 wires, one is light green, and the other is sorta pink, is the one to try to jumper. I don't want to short something out.

******************************************

Now we do or die-Get a wire with an inline fuse hook it up at the battery positive post and take the other to the green or pink and see what happens to the brake lights.

If it comes On-the wire between the connector and switch is open-route another wire from the switch to the connector and cut the open wire
Was this
answer
helpful?
Yes
No
Wednesday, September 17th, 2008 AT 4:27 PM
Tiny
CKAISER
  • MEMBER
  • 12 POSTS
Thank you. That's what I needed to know. That's exactly what I was looking for.

Thank you very much for your help.

Can you buy wires with an inline fuse? I can make one up if I need to. Just need to get a fuse.

If I replace the wire, what guage do I need to use?

Sorry for the extra question. Just want to make sure I do it right.
Was this
answer
helpful?
Yes
No
Wednesday, September 17th, 2008 AT 5:00 PM
Tiny
RASMATAZ
  • MECHANIC
  • 75,992 POSTS
Make it and just use the same size wire
Was this
answer
helpful?
Yes
No
Wednesday, September 17th, 2008 AT 6:47 PM

Please login or register to post a reply.