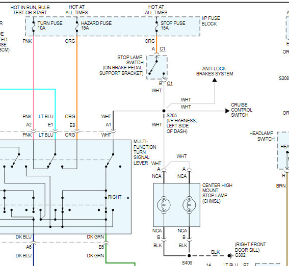
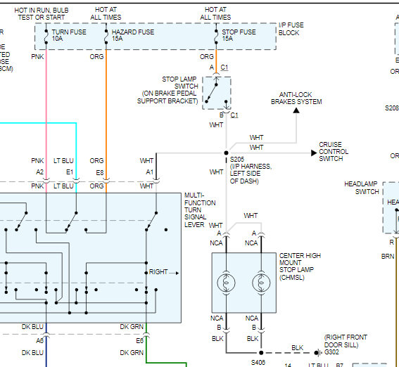
Monday, December 10th, 2018 AT 2:22 AM
Cyclops brake light works other brake lights will not. Is there any way to bypass the brake switch and hot wire from the cyclops light?




