Blown Fuse

Tiny
LMCCART69
  • MEMBER
  • 2005 CHRYSLER SEBRING
  • 100,000 MILES
My car keeps blowing the start/fuel fuse. I keep replacing them but do you know what is causing them to blow all the time?
Wednesday, May 1st, 2013 AT 12:21 PM

5 Replies

Tiny
JDL
  • MECHANIC
  • 16,098 POSTS
Which fuse is blowing? Could be something wrong with wiring circuit or fuel pump?

https://www.2carpros.com/images/question_images/199375/original.jpg
Was this
answer
helpful?
Yes
No
Wednesday, May 1st, 2013 AT 12:51 PM
Tiny
LMCCART69
  • MEMBER
  • 3 POSTS
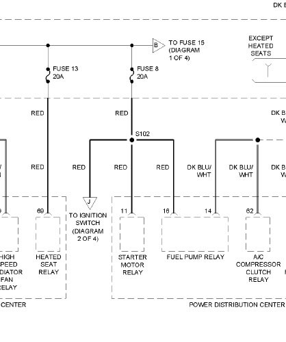
It is the start/fuel fuse # 8
Was this
answer
helpful?
Yes
No
+8
Wednesday, May 1st, 2013 AT 1:09 PM
Tiny
JDL
  • MECHANIC
  • 16,098 POSTS
Like I said something wrong with wiring or fuel pump. Does the fuse blow as soon as you plug it in?

Your talking about the #8 FUSE--20 AMP IN THE DIAGRAM, CORRECT?
Was this
answer
helpful?
Yes
No
+10
Wednesday, May 1st, 2013 AT 1:39 PM
Tiny
LMCCART69
  • MEMBER
  • 3 POSTS
Yes, that is the fuse. No, I put in a new fuse and the car will crank. When it blows it wont crank. It will work or a day or two or even a week then one day I'll go to crank it my car won't crank and that fuse will be blown.
Was this
answer
helpful?
Yes
No
+7
Wednesday, May 1st, 2013 AT 2:37 PM
Tiny
JDL
  • MECHANIC
  • 16,098 POSTS
I looked at your power distribution wiring for that fuse. It also sends voltage to starter relay and ignition switch, besides fuel pump relay. I'd have to separate those circuits and check the amp draw on each circuit. See if anything looks suspicious. Intermittent issues can be hard to track.

https://www.2carpros.com/images/question_images/199376/original.jpg
Was this
answer
helpful?
Yes
No
+1
Wednesday, May 1st, 2013 AT 3:28 PM

Please login or register to post a reply.