Thursday, August 15th, 2013 AT 8:07 PM
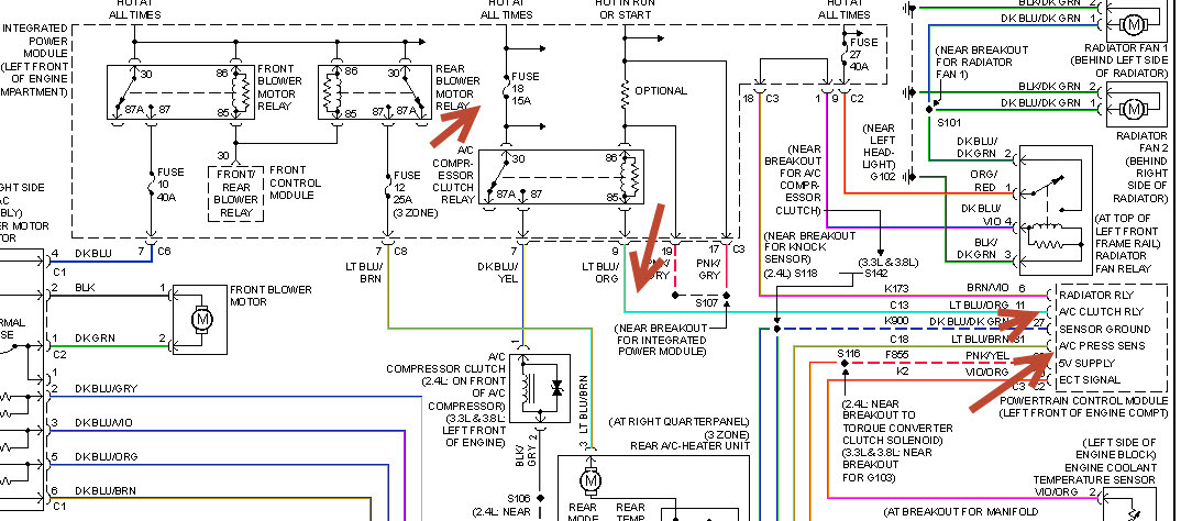
After a minor bumper collision I sent my van over to fix the front bumper, radiator and hood. The shop returned the van after a week, but they could not get the A/C to work after refilling with appropriate cooling gas. I noticed right away that electric locks where not functioning at all, nor did I have lights inside the cabin. Later that week, I took the van for a night ride and no lights illuminating the dashboard, although Instruments worked ok. I decided to send the Body Control Module (BCM) for a test since it is the one module in charge of controlling the above mentioned functions, and it came back with no problems at all. One of the technicians suggested that may be the Front Control Module (FCM) was causing the BCM to malfunction, but it came out clean with no problems whatsoever. Can you please give me some advise on where to look for a fix to this problem? Is the Engine or Transmission computer controlling these functions in the cabin? I am suspecting a cabling problem, but there are just hundreds of them running everywhere. Thanks in advance.



