Wednesday, July 31st, 2019 AT 1:42 PM
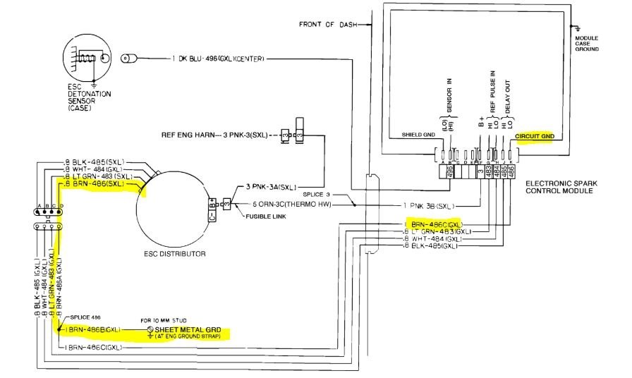
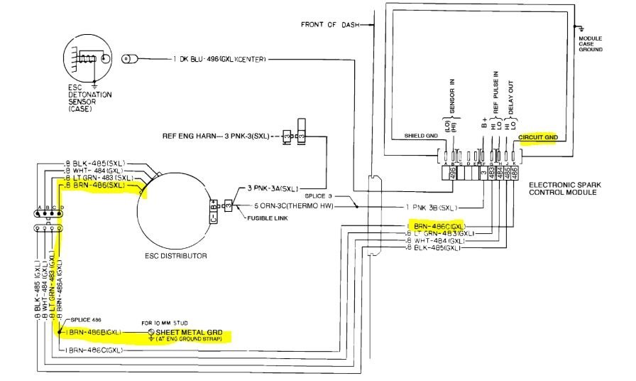
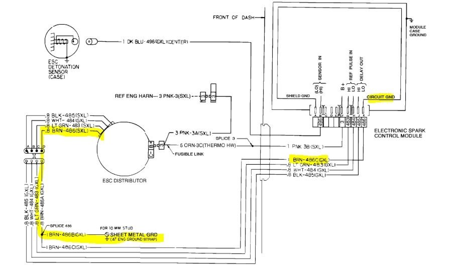
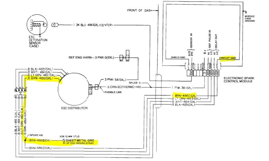
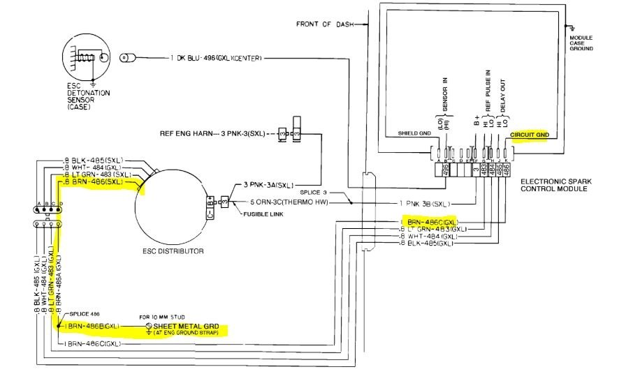
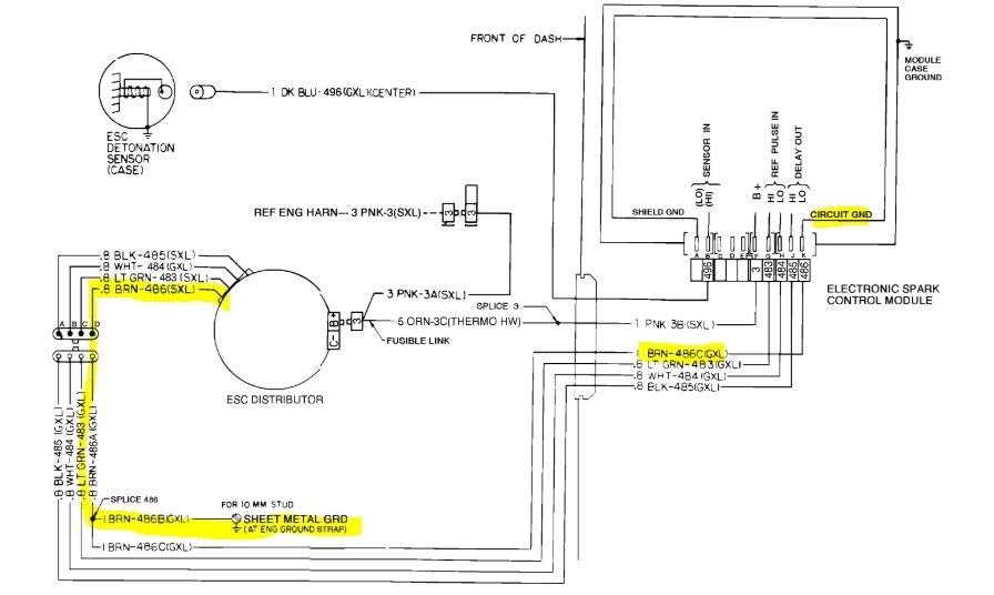
Hello, I was driving my truck and that amp gauge dropped to 12 volts. Dlc displays battery not charging I tested alternator with volt meter it is only showing what the battery is holding in charge. I replaced the alternator and I had the same issues again so I went out and bought another alternator and it is still doing the same thing. So I decided to get a test light and hook it up to the positive on the battery and I probed the brown wire on the three prong plug on the back of the alternator. And the alternator immediately starts charging and the dlc message goes away and the volt meter in car jumps to 14 volts. As soon as I remove the test light with the 12 volts the alternator stops charging. I have no wire diagrams. I did cut the brown wire thinking there was a break in it but it still did not work.









