Alternator fuse location

Tiny
JJOHNSON614
  • MEMBER
  • 2003 FORD RANGER
  • 4.0L
  • 6 CYL
  • 4WD
  • AUTOMATIC
  • 200,000 MILES
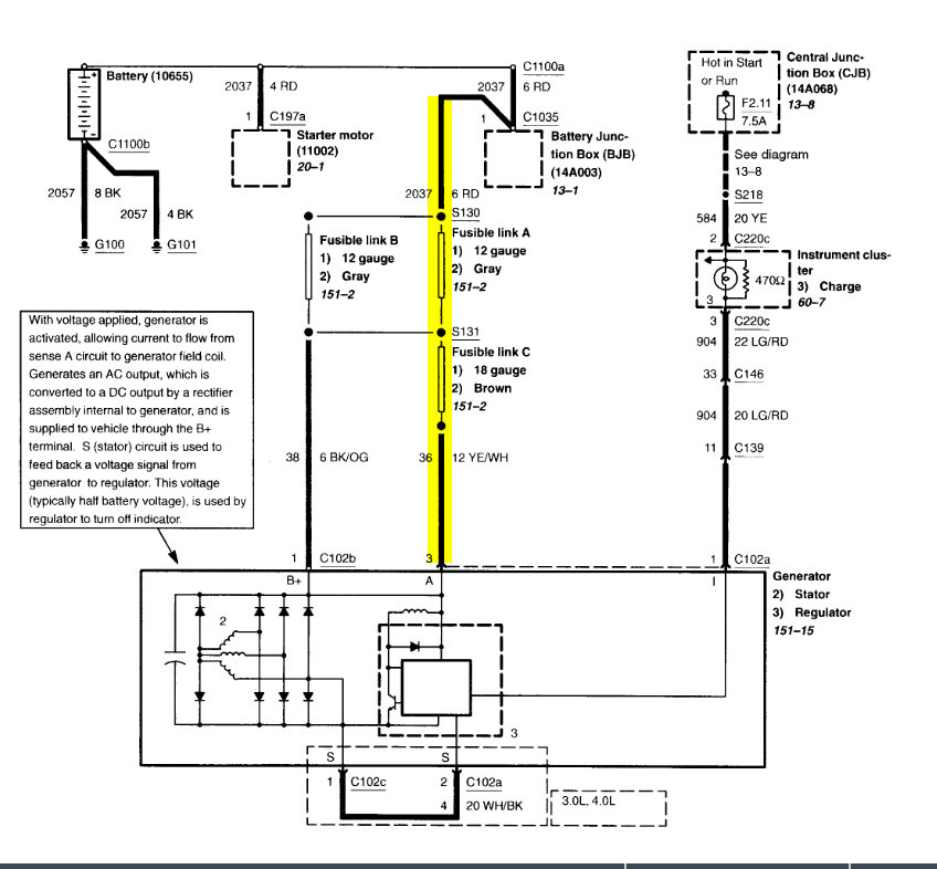
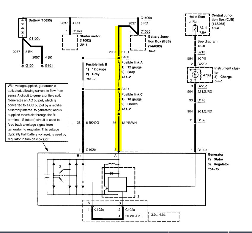
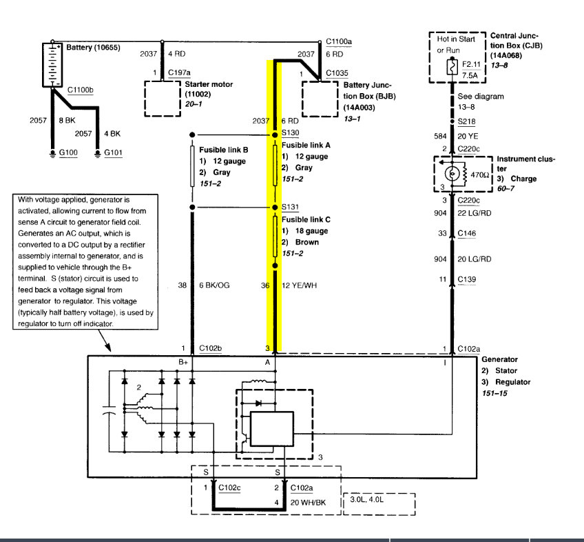
Replaced alternator. Yellow wire with white stripe has no power. Looking for fusible link or Alternator fuse location.
Sunday, November 3rd, 2019 AT 11:26 AM

3 Replies

Tiny
KASEKENNY
  • MECHANIC
  • 18,907 POSTS
You have two fusible links on that circuit, but I would just go in front of them and make sure you have power. If so then you can run your own wire and put your own links in if you can't find them. However, these are going to be in the battery cable cable and will be broken out so just follow the battery cable and you should find them.
Was this
answer
helpful?
Yes
No
Sunday, November 3rd, 2019 AT 5:26 PM
Tiny
LPTECH
  • MEMBER
  • 1 POST
  • 2000 FORD RANGER
  • 4 CYL
  • 2WD
  • MANUAL
  • 70,000 MILES
I was in barstow last weekend and I was running the truck prety hard in the dirt, I then later at night we went for a small drive, about a half mile away and parked the car car with my hellas left on. The lights started to dim about five minutes in. Went to start it. Nothing, push started it. It would idle very rough and instead of revving" it would die, battery light on, gauge says low. Towed back to camp. Charged battery for an hour. Car starts fine, battery says low and light stil on. The next day we headed home started fine, drove about three miles then it died. So I figured the alt is bad. My friend followed me suspecting this wold happen so we changed batteries. I used his truck battery all the way from barstow to huntington beach (90miles) low battery gauge, battery light on, made it home. Truck doesnt have a manual, its just about impossible to find fuses and relay locations online. Wut do u think?
Was this
answer
helpful?
Yes
No
+2
Thursday, February 4th, 2021 AT 10:15 AM (Merged)
Tiny
BMRFIXIT
  • MECHANIC
  • 19,053 POSTS
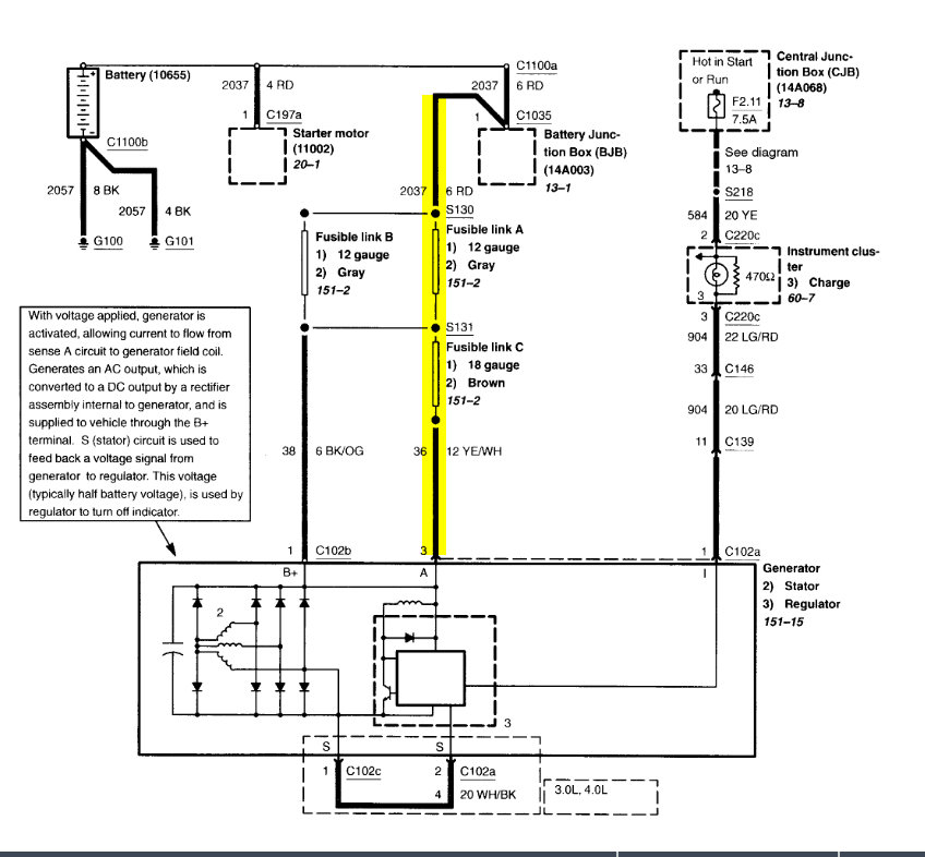
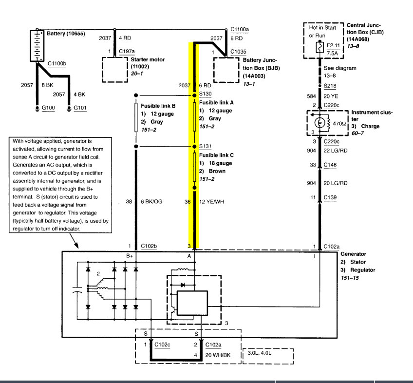
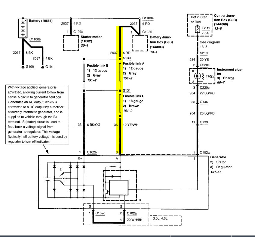
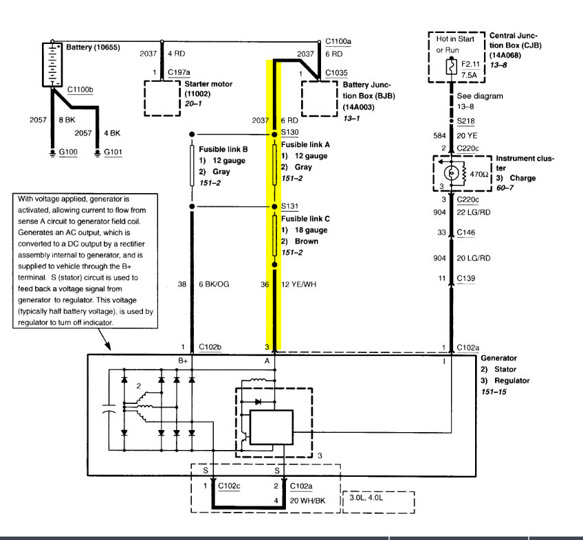
Here is a guide to help you step by step with instructions in the diagrams below to show you how on your car.

https://www.2carpros.com/articles/how-to-check-a-car-fuse

Check out the diagrams (Below). Please let us know what happens.
Was this
answer
helpful?
Yes
No
Thursday, February 4th, 2021 AT 10:15 AM (Merged)

Please login or register to post a reply.