Hi Street Rat,
When the airbag indicator lights stays on after more then 6 seconds when the ignition switch is turned, a malfunction code has been detected by the center air bag sensor assy.
(IMAGES BELOW)
You would need to retrieve the trouble code to find out what is causing the problem.
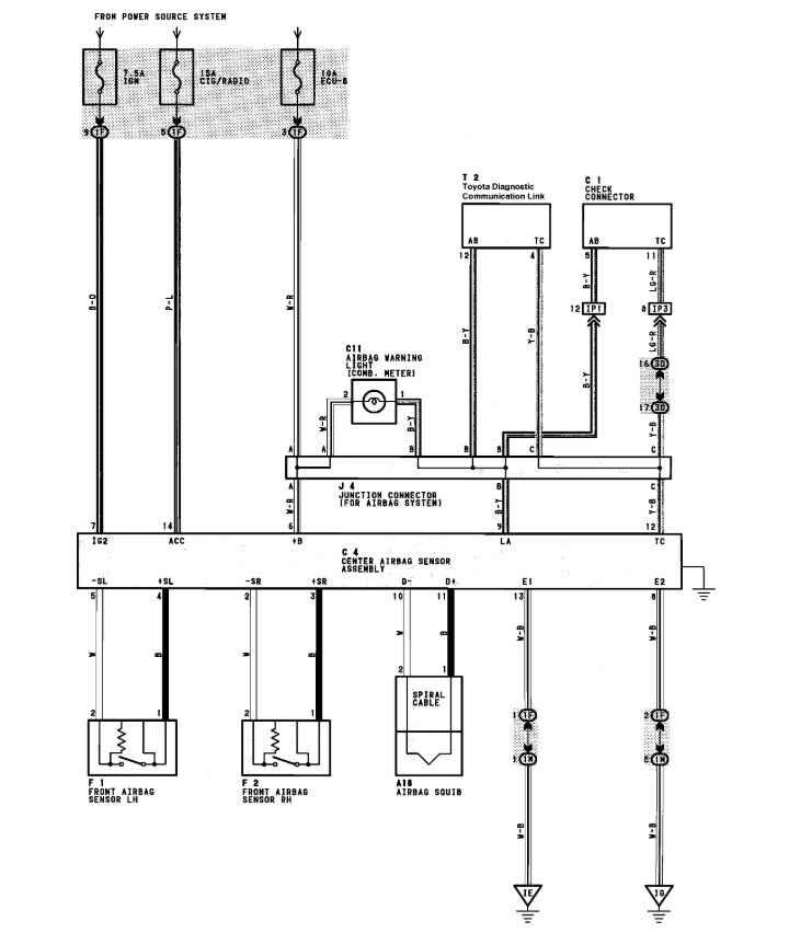
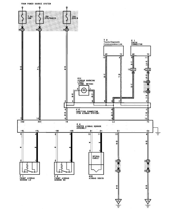
AIR BAG RESTRAINT SYSTEM -1992 Toyota Camry LE
Diagnostic Code Check
1. Jump together terminals Tc and E1 of Total Diagnostic Communication Link (TDCL) connector TDCL is located under left side of instrument panel near fuse block.
2. Read diagnostic codes by noting number of AIR BAG warning light flashes. Normal code indication will flash light twice per second. If a malfunction code is present, first number of code number will equal first digit of a 2-digit diagnostic code. After a 1.5-second pause, second number of code number will equal second digit.

3. If 2 or more codes are present, a 2.5-second pause will occur between codes. After all codes are displayed, a 4-second pause will occur and codes will be repeated. After code has been identified, see appropriate diagnostic code and perform tests as specified.
4. If more than one malfunction code is present, codes will flash from smallest numbered code to highest. If malfunction code is not displayed or is continuously displayed, see TROUBLE SHOOTING. If AIR BAG warning light remains illuminated and diagnostic code is normal code, a source voltage drop is present. This malfunction is not stored in memory. If power source voltage returns to normal after approximately 10 seconds, AIR BAG warning light will automatically go out. See DIAGNOSTIC CODE NORMAL, SOURCE VOLTAGE DROP under TROUBLE SHOOTING.
5. Code 22 is recorded when a malfunction is present in air bag warning light system. If an open circuit is present in air bag warning light circuit, AIR BAG warning light will not glow. Diagnostic codes (including Code 22) cannot be confirmed until warning light circuit is repaired.
6. When a malfunction is present in SRS, malfunction Codes 11 through 31 are displayed. After repair of malfunction, Codes 11 through 31 can be cleared from memory but Code 41 will remain. A special procedure is required to clear a Code 41.
NOTE: On all models when clearing all other codes except Code 41, use Clearing Malfunction Codes (Except Code 41) procedure. On all modes with Code 41 only, use Clearing Malfunction Code 41 procedure.
Clearing Malfunction Codes (Except Code 41)
Turn ignition switch to OFF position. Remove negative battery cable or ECU "B" fuse for at least 10 seconds to clear codes. When reconnecting battery, ensure ignition switch is in LOCK position. If battery is connected with ignition switch in ACC or ON position, diagnostic system may not operate correctly.
Clearing Malfunction Code 41
1. Connect wire probes to check connector/TDCL terminals Tc and AB. See Fig. 13. Turn ignition switch to ACC or ON position and wait approximately 6 seconds. Starting with Tc terminal, apply body ground alternately to terminal Tc and terminal AB twice each, in cycles of .5-1.5 seconds.
2. When alternating probes between body ground, simultaneously release one probe from body ground while applying ground to other terminal. If time interval is too long, Code 41 will not clear. After several seconds, when AIR BAG warning light starts to blink a regular cycle, Code 41 cancellation is complete.
Images (Click to make bigger)
Thursday, January 7th, 2021 AT 6:27 PM
(Merged)