Air suspension problems

Tiny
RLGROVE
  • MEMBER
  • 2000 LINCOLN NAVIGATOR
  • V8
  • 4WD
  • AUTOMATIC
  • 235,000 MILES
Rear end squatted air compressor pump was coming on then next day never heard it come on not long after check suspension light came on rear end squatted. All fuses are good tried another air compressor pump it will not kick on either, but that pump and the other pump that was on it both compressor pumps only come on if running a wire directly from battery. I tried another compressor pump relay still will not work air suspension switch is on. I do not know what else to do. Would the air compressor pump not come on if the airbags are bad worn out?
Friday, June 8th, 2018 AT 12:50 AM

5 Replies

Tiny
ASEMASTER6371
  • MECHANIC
  • 52,796 POSTS
Good afternoon.

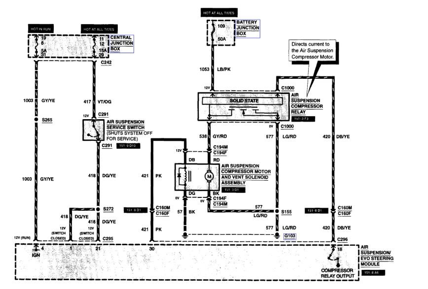
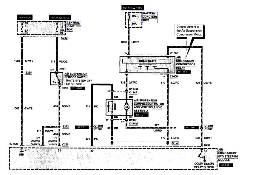
I attached a wire diagram for you. Verify power at the fuse listed. It may have failed from the old compressor.

1. Check for leaks on shock absorbers.
2. Check shock absorber operation for stiff, rough or spongy operation.
3. Check condition of rear suspension bushings and rear suspension springs.
If the above checks reveal evidence of excessive wear, deterioration, or improper operation, replace damaged components.

Vehicle Lean
Side-to-side vehicle lean should be verified by measuring the fender lip-to-ground dimension before beginning diagnosis and repair actions. Normal acceptable limits are:
- Maximum of 16 mm (5/8 inch) variance between left and right front wheel lips to ground.
- Maximum of 19 mm (3/4 inch) variance between left and right rear wheel lips to ground.

Note: Codes identifying the front and rear spring options and springs are printed on the Safety Standard Certification Label. Replace springs in pairs if one is found to be damaged or worn. If a spring should require replacement because it is damaged, worn or due to a leaning condition, replace only with the same part specified on the label.

In rare instances, the spring codes will not reflect the springs as installed due to a District Special Order (DSO) option or assembly plant substitution. If a DSO option number is shown on the certification label, the District Office can establish whether springs are affected. If the factory- installed springs do not agree with the code printed on the Safety Standard Certification Label (right and left coil or leaf spring part numbers should match [Note the 4x4 front torsion bars have different base part numbers on the left and right sides.]), Replace the damaged or worn springs with new springs of the same part number as the damaged or worn springs.
1. Place the vehicle on a flat, smooth surface.
2. Inspect the vehicle for any heavy add-ons that may cause excessive weight on any corner of the vehicle.
- In cases where the excess weight is a snow plow, a rear tailgate lift, etc, the vehicle must be diagnosed with the equipment in place.
- Measure corner weights if necessary.
- Vehicle fuel tanks should be full and the vehicle empty of cargo such as tools, equipment or debris in the pickup box or rear body section.
- Vehicle must be sitting on the wheels and tires and not a hoist, jack or jack stands.
3. Check all wheels and tires:
- Wheels must be same size and design, right and left side on each axle.
- Wheel size and design, tire size and tire design should be as indicated on the Vehicle Certification Label.
- Check the pressure and inflate.
4. Check front and rear suspension. Make sure the same spring is on the left/right front and left/right rear. The front and rear springs have ID tags indicating the part number.
5. Jounce the vehicle's front and rear suspension to normalize the vehicle static ride height.

ImageZoom/Print

6. Measure the height of the right and left fender lip openings for both front and rear.
7. Calculate the side-to-side differences for each dimension. If these differences are greater than 16 mm (5/8 inch) between left and right front or 19 mm (3/4 inch) between left and right rear, adjustment/repairs are necessary.

Roy
Was this
answer
helpful?
Yes
No
Friday, June 8th, 2018 AT 1:40 PM
Tiny
RLGROVE
  • MEMBER
  • 3 POSTS
Would the airbag compressor pump come on if the airbags are bad? Could it be a bad wire loose or wire harness?
Was this
answer
helpful?
Yes
No
+1
Friday, June 8th, 2018 AT 10:53 PM
Tiny
ASEMASTER6371
  • MECHANIC
  • 52,796 POSTS
The pump should come on whether the bags are blown or not.

Did you verify power?

Roy
Was this
answer
helpful?
Yes
No
Saturday, June 9th, 2018 AT 4:56 AM
Tiny
RLGROVE
  • MEMBER
  • 3 POSTS
No, the pump will not come on when hooked up normal. Tried two different pumps even tried another pump relay it was under up near passenger side fog light and headlight. Only time pump comes on is if I run a wire directly from battery, but that way will not raise the rear up should that way raise the rear up? Or does the pump have to be hooked up normal to raise rear up? I just do not understand the picture diagram you sent could it be a bad wire or loose wire if so where. Could any of the black square shaped relays in fuse box relay 1 relay 2 relay 3 relay 4 relay 5 that is located up under dash under steering wheel cause this?
Was this
answer
helpful?
Yes
No
Saturday, June 9th, 2018 AT 6:47 AM
Tiny
ASEMASTER6371
  • MECHANIC
  • 52,796 POSTS
Okay, I read that before. The system needs to hooked up normally for the pump to activate.

Again, did you verify power to the relay in the diagrams I sent you? This is not a parts failure so replacing parts will not solve. You need to check wiring and you start by using a voltmeter or test light and check for voltage.

Roy
Was this
answer
helpful?
Yes
No
Saturday, June 9th, 2018 AT 6:52 AM

Please login or register to post a reply.