After replace A/C system it is not blowing cold air and there is a burning smell

Tiny
WESTRUCK
  • MEMBER
  • 1992 MERCURY MARQUIS
  • 4.6L
  • V8
  • 2WD
  • AUTOMATIC
  • 16,000 MILES
I replace A/C unit. A/C condenser, accumulator, orifice tube, A/C compressor, and pressure switch. Had system recharge. Every is working fine for a week. I notice the compressor staying on. It was not cycling on and off. Then I notice a smell. The clutch burning. Stop blowing cold air. Does the A/C suppose be engage all the time?
Friday, June 5th, 2020 AT 4:32 PM

5 Replies

Tiny
KASEKENNY
  • MECHANIC
  • 18,907 POSTS
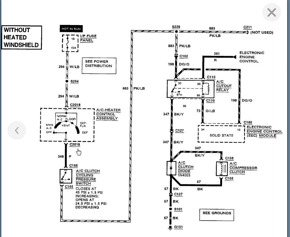
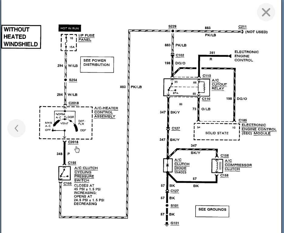
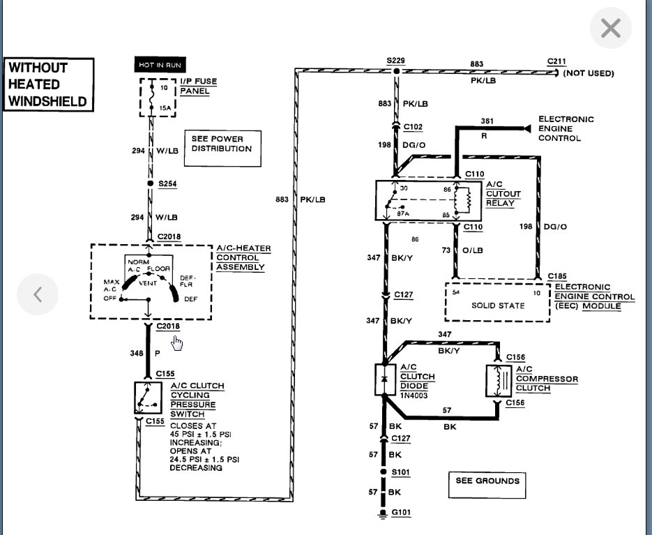
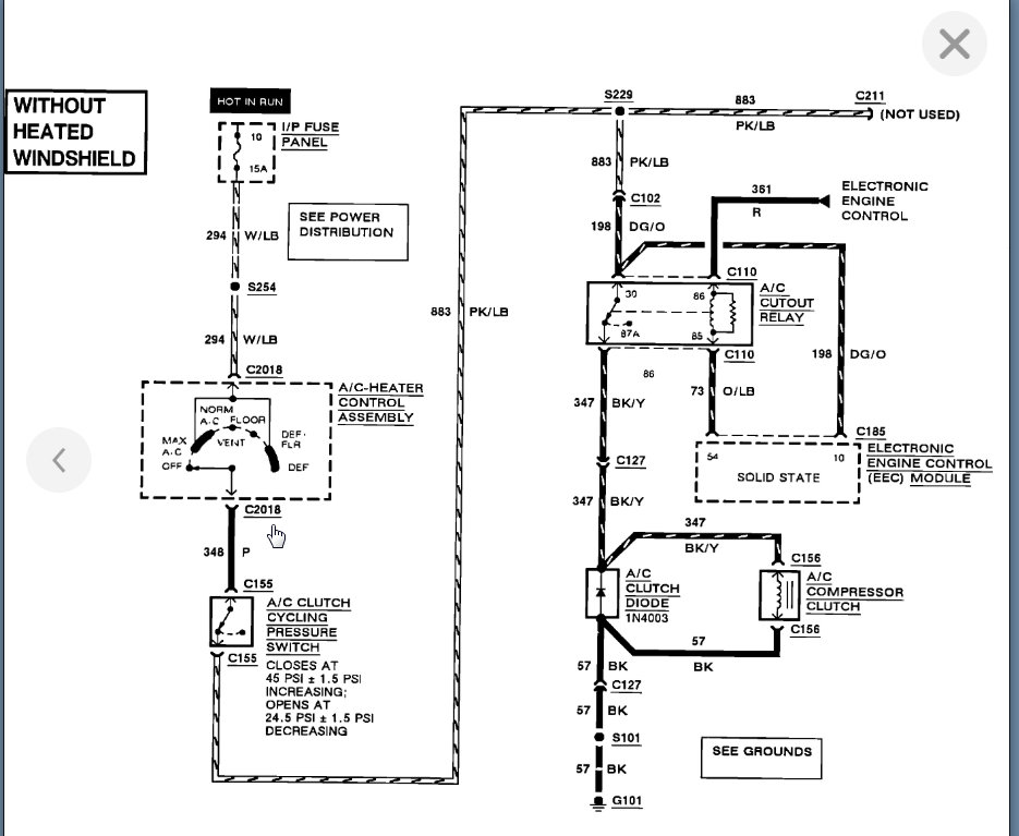
The compressor is not supposed to be engaged all the time. If you smelled the clutch then more then likely the clutch has locked up and is not able to release. If you check power at the compressor I imagine it will not have power all the time but the compressor will still be engaged. If this is the case then your clutch is locked to the compressor and will not disengage. At that point, you can try and replace the clutch but if it were me, I would go ahead and take the compressor back if you purchased this as a unit.

https://www.2carpros.com/articles/car-air-conditioner-not-working-or-is-weak

Let me know if you have questions and we can figure out next steps.
Was this
answer
helpful?
Yes
No
Friday, June 5th, 2020 AT 7:32 PM
Tiny
WESTRUCK
  • MEMBER
  • 55 POSTS
I will try to change the clutch. The compressor is out of warranty. What makes the clutch cycle off and on? I told you the clutch stay engage all the time. I think that why the clutch burned up.
Was this
answer
helpful?
Yes
No
Saturday, June 6th, 2020 AT 8:58 AM
Tiny
KASEKENNY
  • MECHANIC
  • 18,907 POSTS
I understand it stays engaged all the time but to determine what is causing it to stay on, we need to check voltage at the compressor. Basically this will tell us if it is being commanded on all the time and if not, then the clutch is seized.

More then likely this is the clutch being seized. However, if the compressor doesn't cool at all then we need to check pressures to determine if the compressor has failed or if the clutch is just not disengaging.

I suspect the compressor has failed and not just the clutch because if the compressor doesn't disengage, I would expect there to be cold air coming out until the system built up too much pressure. The fact that the compressor stays on and there is no cold air, I suspect the compressor is not building any pressure and checking the high and low side pressures will tell us that.

https://www.2carpros.com/articles/car-air-conditioner-not-working-or-is-weak
Was this
answer
helpful?
Yes
No
+1
Sunday, June 7th, 2020 AT 2:29 PM
Tiny
WESTRUCK
  • MEMBER
  • 55 POSTS
Thank you for the information.
Was this
answer
helpful?
Yes
No
Monday, June 8th, 2020 AT 4:57 AM
Tiny
KASEKENNY
  • MECHANIC
  • 18,907 POSTS
You are welcome. Let us know what you find. I am curious about this one. Thanks
Was this
answer
helpful?
Yes
No
Monday, June 8th, 2020 AT 7:53 PM

Please login or register to post a reply.