A/C blows hot air, where is the Compressor Clutch Relay located?

Tiny
TOMMYT58
  • MEMBER
  • 2013 NISSAN SENTRA
  • 4 CYL
  • 2WD
  • AUTOMATIC
  • 96,000 MILES
The compressor clutch is not engaging. I tried adding freon with can recharge. It registered 140PSI on the can digital gage. Digital gauge reading fluctuated between 120's to 140's PSI.
I checked the two fuses that I found for A/C, and they are fine. I have looked for an A/C relay but was unable to locate one. I contacted local parts supply house and they have an A/C Compressor Clutch Relay for my make and model in stock. Can you tell me where the relay is located?
Sunday, June 19th, 2022 AT 3:09 PM

1 Reply

Tiny
BORIS K
  • MECHANIC
  • 836 POSTS
Hello,

The AC compressor clutch relay is located in the IPDM, Intelligent Power Distribution Module. This is the main fuse box located near the battery (to left) under the intake pipe.
See picture 1 below.
The relay itself is part of the IPDM and cannot be replaced individually.

A good video.
https://youtu.be/lGF3WOqRhfs

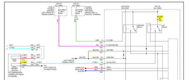
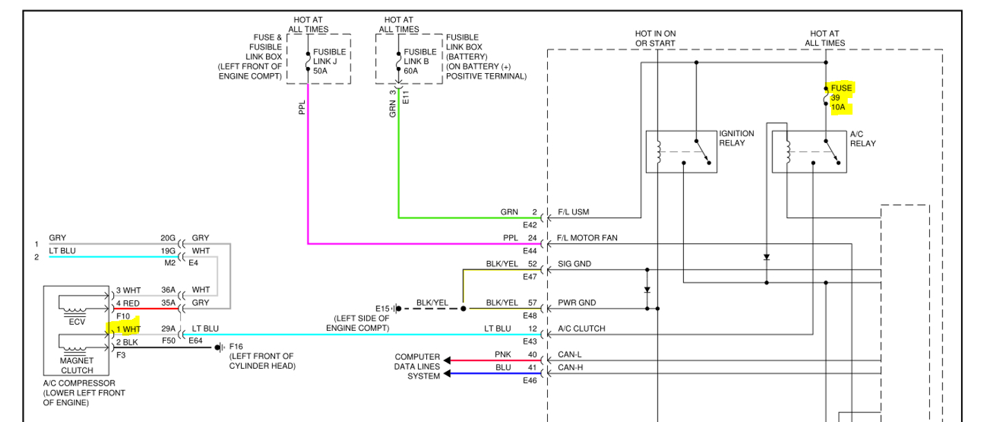
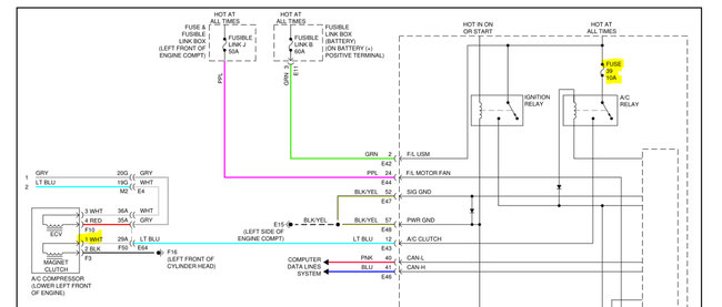
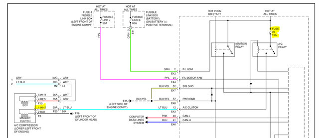
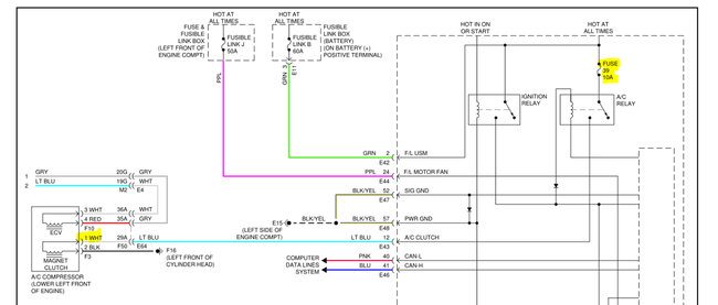
Please next check fuse 39, 10A, in IPDM.
See wiring diagram attached

A good testing procedure can be found in the video below.
https://youtu.be/VNdcSt97tKs

The technician is testing the output from the IPDM, pin 12(light blue wire) to the compressor clutch. The internal AC relay has permanent 12V from fuse 39. When commanded on the relay then switches 12V to pin 12 and then the AC clutch is energized via the light blue wire.

An easy way to test if the AC clutch is working is to give the light blue wire 12V supply and listen for the clutch to engage, you should hear a clicking noise. This can be done by using a suitable test light.

How to use a test light.
https://www.2carpros.com/articles/how-to-use-a-test-light-circuit-tester

If the AC relay does not switch 12V to the AC clutch at pin 12 of the IPDM then the IPDM will need to be replaced.

Hope this helps.

Cheers, Boris

Was this
answer
helpful?
Yes
No
+2
Monday, June 20th, 2022 AT 5:13 AM

Please login or register to post a reply.