stopped the brake lights from working I need to check the fuses

2012 ACURA TL
8,000 MILES
Avatar
CAR456
  • MEMBER
  • 3 POSTS
I accidentally backed into a concrete pole in my parking garage. The damage stopped the brake lights from working I need to check the fuses where are they and how do I check them?

Jul 9, 2013 at 3:53 PM
Advertisement
Repair Safety Notice: This information is for general instructional purposes only. Vehicle repair can be dangerous. Verify all information, follow manufacturer service procedures, use proper tools and safety equipment, and consult a qualified repair shop when needed.
Avatar
JACOBANDNICKOLAS
  • AUTOMOTIVE REPAIR CONTRIBUTOR
  • 110,190 POSTS
Hi,

Checking and replacing fuses really isn't a difficult job to perform. However, the one thing that people often miss is this. A fuse may appear to be good and still be bad. Also, a fuse can be good, but there is no power to it.

So, it is important to not only inspect the fuse itself but also check to confirm there is power to and from it.

Here is a link that explains in detail how it's done:

https://www.2carpros.com/articles/how-to-check-a-car-fuse

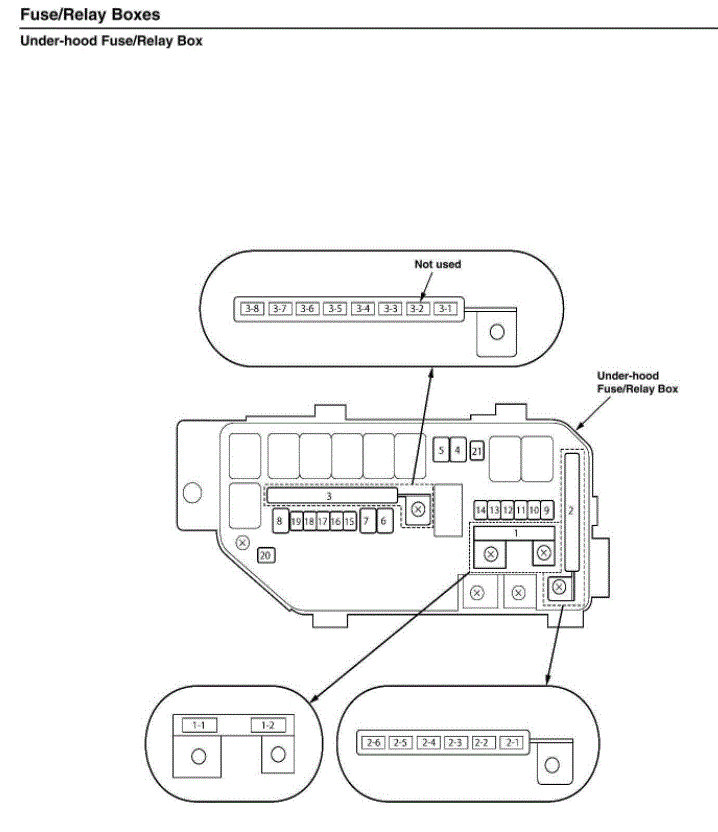
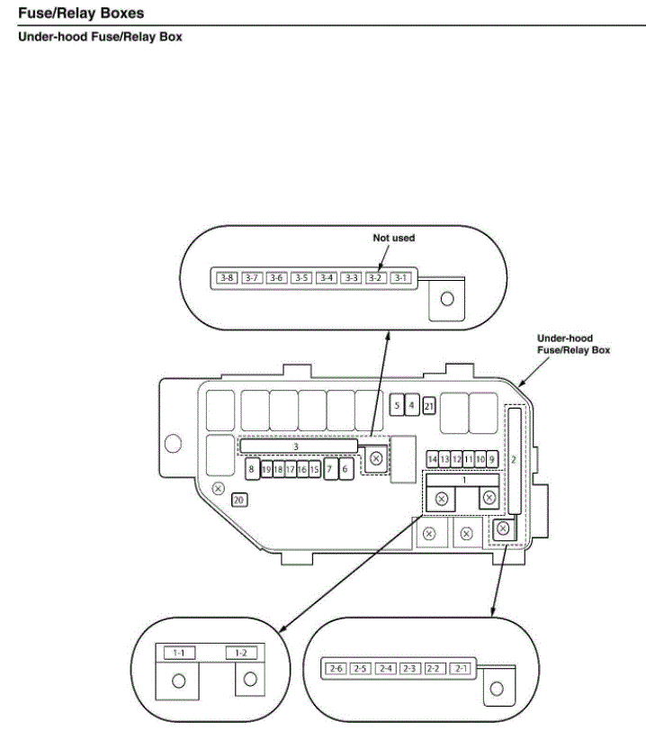
If you look below, I attached the fuse box information and legends related to each.

I hope this helps. Let me know if you have other questions.

Take care,

Joe

See pics below.
Jul 4, 2021 at 10:14 PM